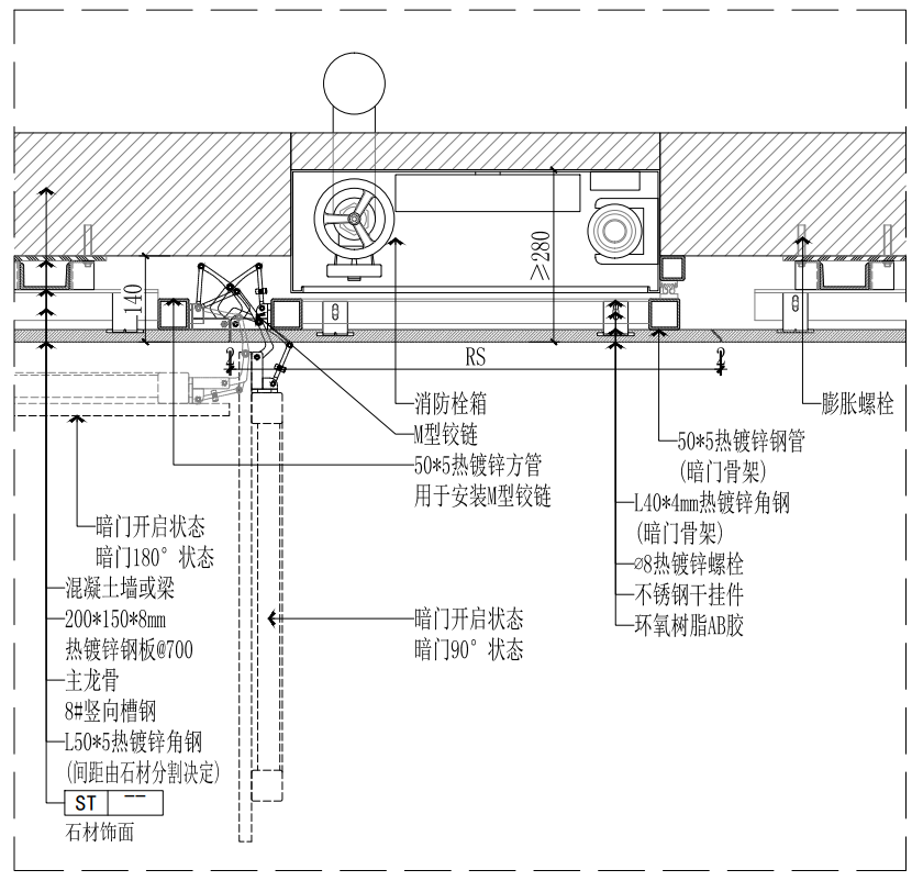
可以开启180°的消防暗门,PDF下载
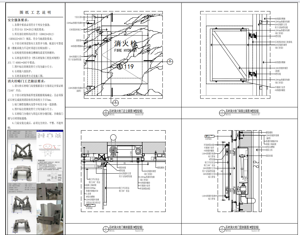
消火栓暗门工艺做法要求:
1.消火栓石材暗门高度根据设计方案而定并保证暗门160°开启;
2.干挂石材装饰面厚度需根据现场确定,且必须保证石材完成面到消防栓的净深度大于275m;
3.暗门钢骨架横向龙骨中间至少加一道斜撑:
4.图中标注的钢龙骨尺寸均为最小尺寸;
5.石材暗门分缝应与周边石材分缝匹配,并确保门缝与石材排版通缝:
6.门扇安装完成后,必须完全闭合、平整、不能外倾;
安全强条要求:
1.各图中要求必须符合下列安全强条:
2.符合(GA533-2012)规范要求;
3.所有部位材料均应符合(GB8624-2012)(GB50222-2017)规范,符合当地消防要求:
4.干挂石材须设竖向主龙骨并与墙、板进行可靠连接(楼板承载力不足时须进行结构加固);
5.结构使用的角钢及槽钢均需采用热镀锌;
6.石材选用须符合《然石材装饰工程技术规程》JCG/T60001-2007中要求;
7.图中标注的钢龙骨尺寸均为最小尺寸:
8.石材做六面防护:
9.石材表面处理方式见施工图;



浏览 246
4
26
收藏 1
