△星标 ☆dop设计,不错过每一篇干货文章
损耗两个字,在精装项目里往往是利润黑洞的代名词。很多设计师把5%的估算值随手填进报价表,直到工地补砖第三趟、色差出现三个批次,才发现真实损耗早已飙到两位数。

今天,我们就用一套实战案例,把瓷砖排版损耗从盲猜变成可复制的标准流程。
首先我们要明白一个概念什么是瓷砖损耗?
瓷砖损耗:因裁切、拼花、对缝、现场误差及破损,导致无法再用而多消耗的瓷砖量。

它的公式通常为(整体的瓷砖面积-实际铺贴面积)/实际铺贴面积*100%。
详细解释:
地砖总数=房间面积÷单片地砖面积+房间面积÷单片地砖面积×5%
① 略算地砖总数=房间面积÷ 单片地砖面积
② 损耗片数=略算地砖总数×5%
③ 地砖总数=略算地砖总片数+损耗片数
注意:计算结果有小数时,应往上取整。
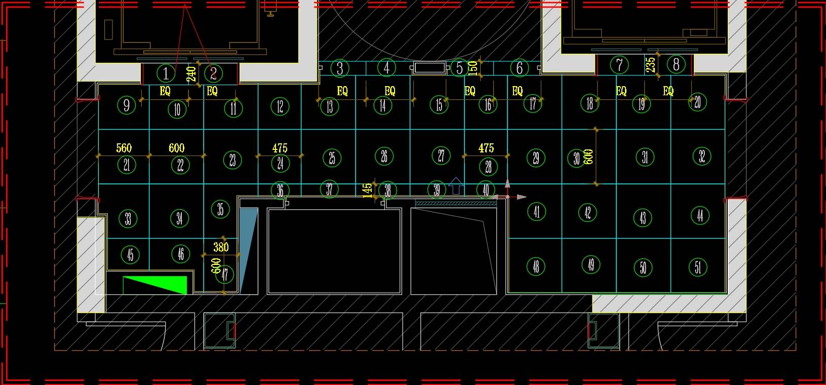
来拿一个住宅公区电梯厅的地面瓷砖排版图举例:


首先要确定排版的方案,对每一块瓷砖进行编号,一共是51块砖:

第二,通过排版图中分析得出有14块砖可以用5块整砖裁切得出,所以得出地面需要的整砖数量为51-14+5=42块:





第三,案例中的整砖规格为600*600。

所以一块砖的面积为600*600=0.36m²。

因此可以得出整体瓷砖面积为42*0.36=15.12 m²。

实际铺贴面积通过CAD圈出面积得出为13.7 m²。

最后,将各个数据套入公式得出瓷砖排版的损耗率为10.4%。

把排版损耗写进你的设计交底,而不仅是施工备注。
本期的dop干货就到这儿,如有帮助,评论区扣“日拱一卒”,支持一下dop~

浏览 230
2
0
收藏 9
