△星标 ☆dop设计,不错过每一篇干货文章
昨天有小伙伴还在纠结:
单层还是双层石膏板吊顶?规范图集多画双层,现场常做单层,只为省钱?到底啥情况必须双层?

1、标准的石膏板吊顶工艺做法, 究竟是单层还是双层呢?
很多人认为使用单层石膏板吊顶,哪怕是用12mm的板子,都认为是偷工减料的做法,不可取。
但真的是这样吗?

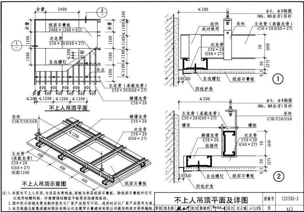
△单层石膏板吊顶图集

查询国家建筑标准图集,可以看到现行的《内装修-室内吊顶》中的石膏板吊顶做法,有采用“单层”石膏板的做法。甚至最小厚度给到了9.5mm。
换句话说,单层石膏板吊顶,是标准工艺做法。
我们都知道,国家标准只是最低标准,是最后的底线。
出于对安全、质量、美观等方面更高的要求,越来越多的项目上采用双层石膏板,行业内广为流传的室内节点规范出于指导施工和广泛应用考虑也将双层石膏板吊顶列为标准的工艺做法。

△双层石膏板吊顶
2、为什么节点图上是双层,现场却按照单层来施工?
图集画双层,现场却做单层,原因有三点:
设计标准高:图集按高标准画,确保安全和质量,设计方也对甲方负责;
规避责任:节点图画双层,若施工方擅自改单层,出问题责任在施工方;
造价压缩:甲方为控成本,现场变更做法,按单层施工。
总结:
单层合规,双层抗裂、防火、防潮、隔音更优,故八成项目自选双层;用几层无强制,看项目“具体情况”。
好了,本期的dop干货就到这儿,如有帮助,评论区扣“日拱一卒”,支持一下dop~
- End -
如有帮助,还请 点赞、在看、转发 支持一下
文中部分图片源于网络,如有侵权,请联系小编~
加dop024,领“dop设计大礼包”

浏览 208
1
0
收藏 1
