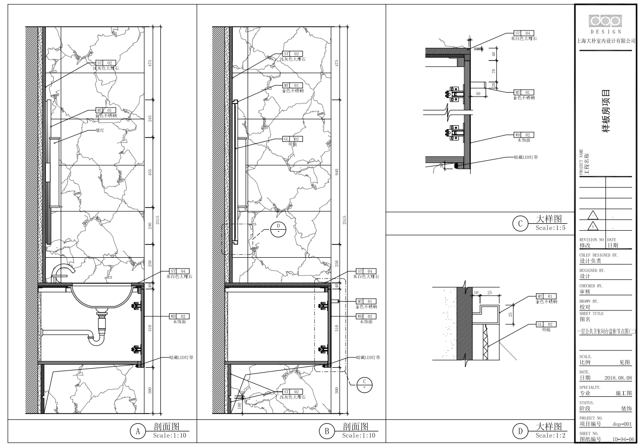
关于一些室内设计方非厂家来画的固定家具图纸的PDF分享。
几个注意点:
1、并不需要画拆单图
2、图纸逻辑跟正常节点图一样,主要强调完成面尺度,框定材质,至于具体的板材型号,选型,都会被厂家拿去二次拆单加工下单;
3、但凡是装饰出图,对于工艺和节点的构造,本质上还是参考内训营提到的室内图纸和工艺节点观来制图
Ps:分享一个我们自己再用的 装饰图纸上固定家具的图纸深度样图,供各位接项目签合同时参考



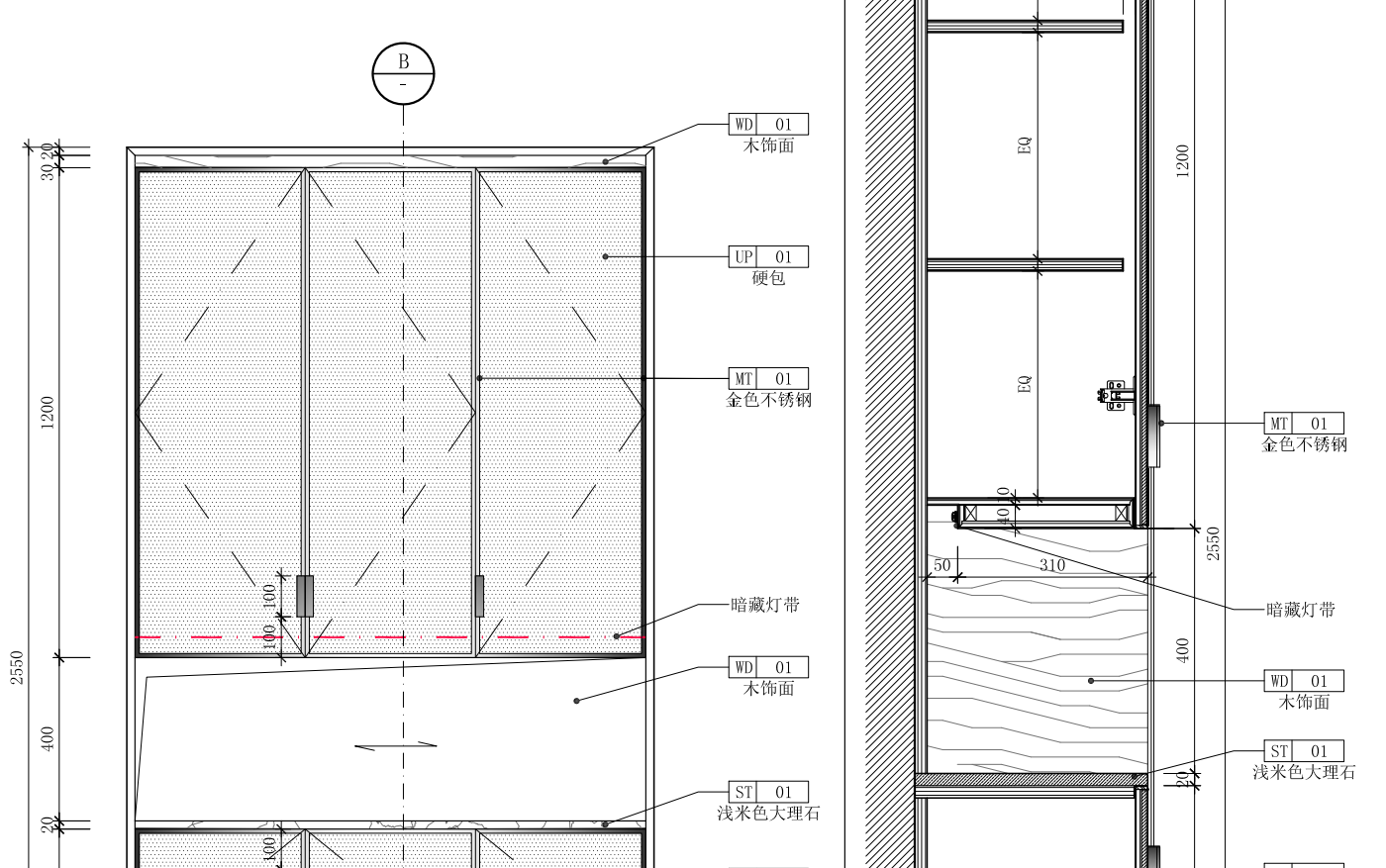
关于一些室内设计方非厂家来画的固定家具图纸的PDF分享。
几个注意点:
1、并不需要画拆单图
2、图纸逻辑跟正常节点图一样,主要强调完成面尺度,框定材质,至于具体的板材型号,选型,都会被厂家拿去二次拆单加工下单;
3、但凡是装饰出图,对于工艺和节点的构造,本质上还是参考内训营提到的室内图纸和工艺节点观来制图
Ps:分享一个我们自己再用的 装饰图纸上固定家具的图纸深度样图,供各位接项目签合同时参考



固定家具.pdf
立即下载
游客