上海油罐工业风展空间改Olivino餐厅,工业基因对话餐饮情感
内容概述
上海油罐艺术中心原工业风展览空间,经无设建筑顾忆团队改造为Olivino艺术餐厅,以“对话而非覆盖”理念融合工业基因与餐饮情感,打造自然互动的米其林级用餐空间。
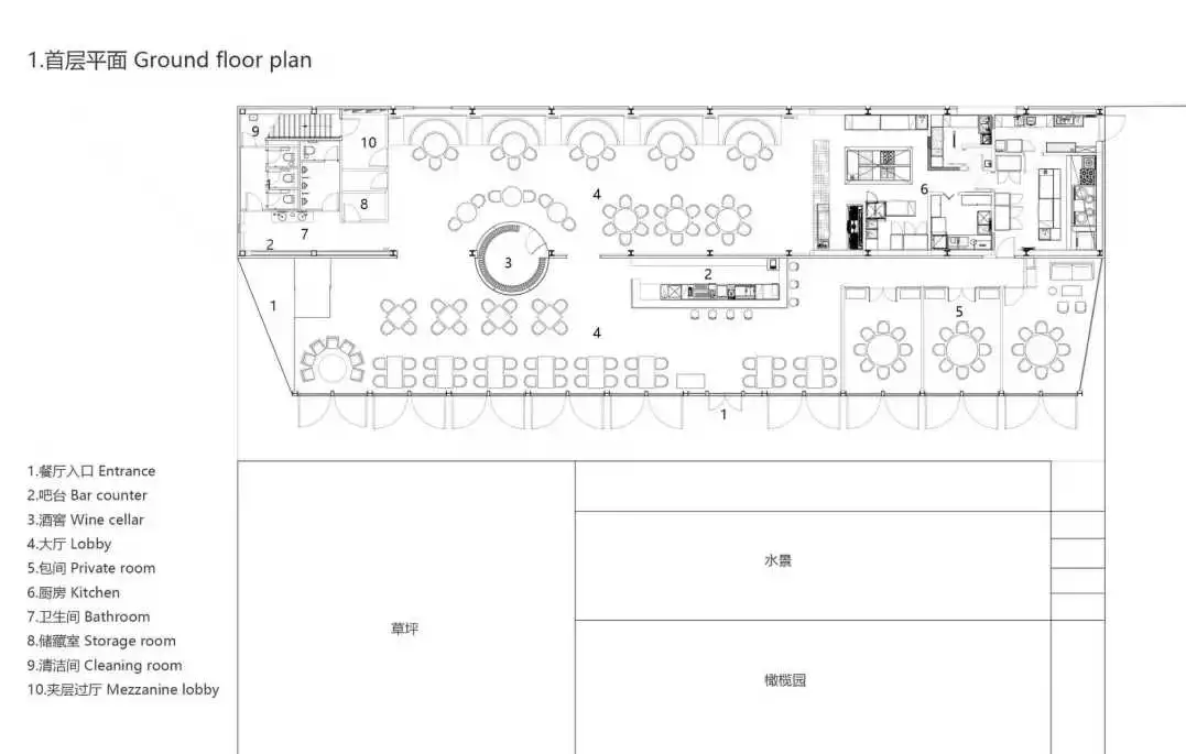
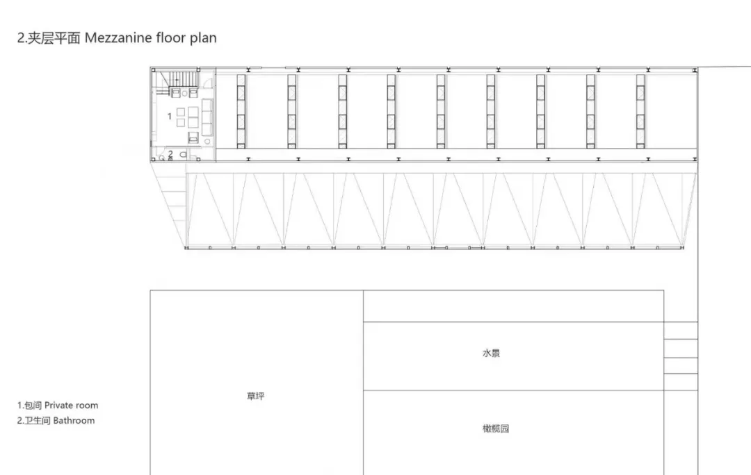
1. 改造以“情感续写”为核心,不破坏原建筑工业底色——优化原有天窗结构隐藏照明、空调设备,保留无隔断的块面特征;收编廊下灰空间扩容,将原旋转门改造成玻璃酒窖作为视觉中心,用入口铜炉呼应形成虚实对比,兼顾功能与仪式感。
2. 光影设计作为“第四维度”,白天通过天窗、格栅窗引入自然光,随时段、天气变化营造明媚或朦胧的情绪;夜晚用低悬吊灯形成桌面聚光圈,顶面倒立金字塔造型强化神秘氛围,平衡公共空间的通透与用餐私密性。
3. 空间布局兼顾大尺度与亲切感,用规整桌椅划分“小聚落”,确保每位客人享江景的同时,通过格栅玻璃将青草地、橄榄林等外景框为动态艺术,重构室内外“观演关系”,让用餐体验延伸至自然与城市。
行业热点
加载中...








