130㎡老房翻新记:两代人与五只猫的“孟菲斯”剧场
内容概述
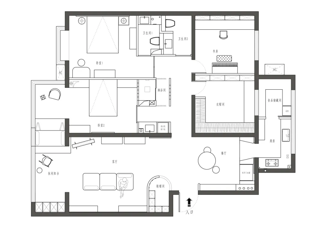
北京海淀130㎡四居老房,以“轻孟菲斯”风格完成情感与功能重塑,解决原户型采光弱、空间割裂等痛点,成为兼顾母女两代人习惯与五只猫咪生活的共生空间。
1. 采光与收纳破局:针对北侧采光差,将厨房、衣帽间等功能区置北侧,用室内窗、玻璃砖引光穿透;入户加封闭式小仓库解决尘区收纳,微水泥墙面+圆形玻璃洞适配妈妈清洁需求,兼顾实用与仪式感。
2. 空间灵活整合:打通南侧老人房与阳台,用可开合艺术门洞提升穿行便利性;客厅设“岛屿沙发”布局强化互动,阳台分收纳与晾衣休闲模块,3D打印罗马柱降本保留艺术质感。
3. 人文细节适配:按两代人习惯设独立卫生间避免“抢厕”,共享淋浴、洗衣区;老人房用素雅配色+弱光灯具适配睡眠,书房兼音乐室满足女儿兴趣,猫咪动线融入开放空间设计。
4. 风格克制落地:以大地色为基底,用黄蓝几何元素呼应孟菲斯,餐厅镜面冰箱、厨房喇叭口门等细节统一风格,3D打印、页岩台阶等细节降本提效,避免风格堆砌。
行业热点
加载中...









