病房嵌入式轨道通用施工图
内容概述
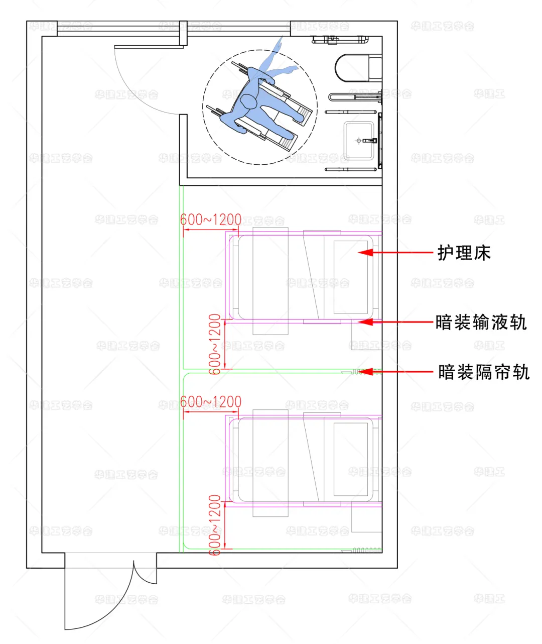
华建工艺学会发布HJSJ-2025病房嵌入式暗装轨道通用施工图,针对现代医院标配的隐蔽式轨道系统(用于输液吊杆、隔帘等),从平面方案、安装流程到各类吊顶施工图,给室内设计师提供落地指导。
1. 轨道核心价值:作为医院“标配”,嵌入式暗装轨道相比传统隔帘杆更无缝美观、静音且遮光性好,能更好保护患者隐私,契合新建医院人性化、智能化设施设计规范。
2. 平面设计要点:需结合房型、天花类型(蜂窝大板、铝扣板等),病床平行采光窗排列,单排≤3床、双排≤6床;两床净距≥0.8m,靠墙床与墙净距≥0.6m;隔帘与床距0.6-1.2m。
3. 安装流程指导:从弹线找吊杆位置、安装龙骨,到调整水平、装天花板,需综合灯盘、风口、消防头等设施位置,确保轨道与天花完美融合。
4. 施工图资源:涵盖高晶板、蜂窝大板、铝扣板等吊顶的嵌入式轨道施工图(可到华建工艺学会下载),配套模型图和实景图,直接助力设计落地。
行业热点
加载中...









