温州四口之家的解构主义住宅
内容概述
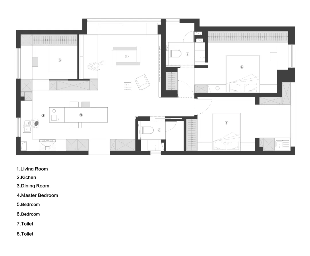
  100㎡三代同堂住宅通过建筑解构主义手法与材质叙事策略,实现功能实用性与精神共鸣的双重满足,为小面积多代居设计提供参考。
1. 摒弃常规空间区隔,以建筑解构主义切割重组100㎡空间,通过连贯视线流动放大空间体验,解决三代人共同居住的功能融合难题。
2. 将材质作为“无声语言”:黄铜地面界定归家仪式感,餐厅“金砖”随岁月沉淀生活痕迹,木纹吊顶营造亲密围合感,雾面金属板强化空间构筑感,用材质特性传递功能与情感,实现“材质叙事”。
3. 功能设计拒绝冗余:定制结构性卡座替代成品沙发最大化收纳,模块化金属茶几嵌生态植物缸兼顾实用与生机,岛台整合收纳与电器,践行现代生活的效率美学。
4. 打造“十字光域+现浇水泥”精神焦点,用光柔化混凝土冷峻感,混凝土赋予光形体重量,构建家的情感核心,实现空间从“物理容器”到“精神场域”的升级。
5. 卧室针对代际需求做氛围设计:主卧“黑色星空”背景墙+半开放卫浴保通透静谧,次卧布艺木艺几何拼接显沉稳温度,满足不同代际的居住体验。
行业热点
 加载中...
  
 







