设计师不只是设计!雅典Lumen顶层复式的“有机奢华”真实生活
内容概述
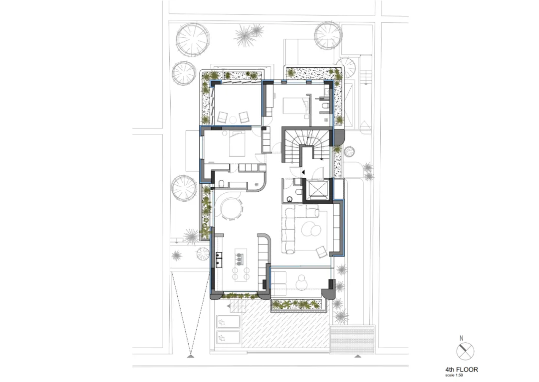
希腊雅典Lumen Residence顶层复式住宅,由雅典建筑室内工作室Block722创始人以设计师兼开发者身份打造,实践“有机奢华”理念,全维度落实“真实生活”设计逻辑。
1. 因设计师亲自开发,项目从建筑外观、结构到室内细节均围绕“真实生活”打造,避免市场化取舍,实现建筑与室内的整体设计贯通。
2. 建筑外观以流畅几何线条结合中世纪现代主义轻盈感,搭配木结构与地中海植物,用院落式木门+绿植柔化几何感,营造宁静私密的入口仪式。
3. 室内约230㎡舍弃冗余装饰,以温润木材、大理石、纹理石膏构建层次感,客厅开放式布局聚焦材质与光线,餐厅定制家具兼顾“有机奢华”与聚餐氛围,厨房木制玻璃门整合橱柜,中岛台强化家庭互动。
4. 阳台种本土植物形成绿意屏障,屋顶露台配泳池与平台,将生活延伸至室外,满足休憩、聚会等多元需求。
5. 主卧、客卧用天然材质+柔和色调营造舒适,卫生间以大理石+木材打造温暖高雅感,均延续整体材质体系与宁静氛围。
行业热点
加载中...









