一层一户,新玩法!! 真正的大平层(300-400㎡面积段)
内容概述
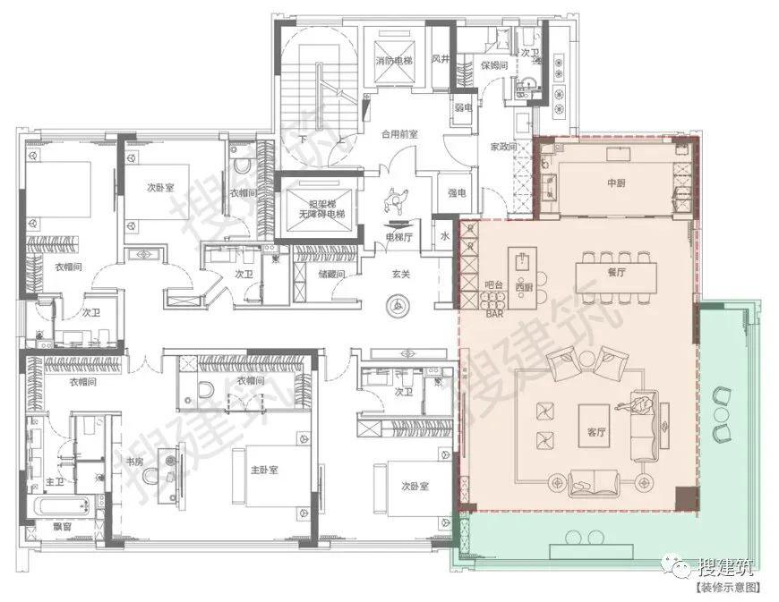
本期分享10个300-400㎡一层一户全平层户型案例,展现鼎豪大平层的空间设计与奢雅质感。
1. 空间布局强化公共区域尺度,如天津融创梅江壹号院11米餐客厅LDK一体化、嘉兴鸿翔东望隽府94㎡餐客厅+超106㎡活动区,通过大面宽(重庆龙湖金茂北岛超30米面宽、嘉兴紫城峰荟里39米采光面)提升互动性与开阔感。
2. 功能设计聚焦高端场景,重庆龙湖金茂北岛打造“一半会所一半私邸”(100㎡CEO私享会所、6.5米IMAX宴会厅),南京颐和天晟府90㎡LDK客餐厅+75㎡行政套房,满足圈层社交与私密生活需求。
3. 景观采光采用270°环幕/IMAX落地窗(天津融创270°飘窗、招商西安序270°环幕)、多阳台设计(盐城招商雍华府15米L型阳台、重庆北岛6米挑高空中庭院),实现空间与城市景观的融合。
4. 材质立面以铝板+LOW-E玻璃为主(嘉兴鸿翔传承印、南京颐和天晟府),部分加入弧形元素(招商西安序飞鸟状立面),呼应奢雅定位,提升整体高级感。
行业热点
加载中...









