商业大平层设计怎么抓高净值客群?
内容概述
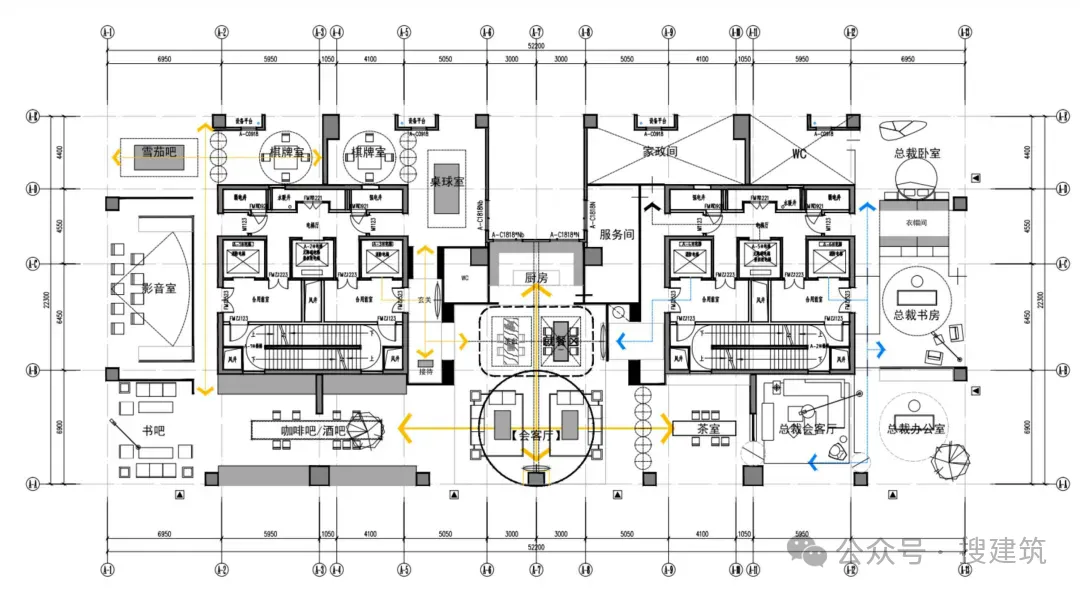
商业大平层作为高净值客群的“第三空间”,设计聚焦尺度、社交、功能及隐私,注重融合生活与圈层需求。
1. 强化空间尺度感:横向以25米以上观景面、38米采光面(如杭州君豪ONE53)拉伸视野,纵向层高提升至4米以上(如君豪4.8米、江一云境4.2米),搭配全景玻璃幕墙(如胤璞700方360°观景、江一云境50米U型阳台),增强通透度与景观纳入度。
2. 放大公区社交属性:公区占比超总面积一半,如重庆江北嘴壹号院100㎡客厅、长沙润和滨江湾138㎡客餐连厅、温州华润雲玺280㎡通厅,打造能承载派对、商务洽谈的“第一会客厅”。
3. 平衡功能与隐私:增设雪茄室、模拟高尔夫、私家屋顶花园(如胤璞300方花园)等精神场景;同时设计全套房(如长沙印湘江90㎡主卧、广州天赋壹号全套房),兼顾开放社交与私密休憩。
4. 融合景观体验:通过270°环幕、无柱设计(如华润置地瑞玺客厅无柱),将钱塘江、湘江等景观融入室内,实现空间与自然的无界衔接,提升居住舒适度。
行业热点
加载中...









