中古风设计落地别踩坑!5大维度拆工艺技巧
内容概述
本文围绕中古风设计的核心落地细节,从墙面、地面、柜体、家具、灯具五个维度拆解施工工艺与设计技巧,助力设计师精准把控中古风的复古质感与现代诠释。
1. 墙面:不用纯白乳胶漆,选奶油色/浅杏色艺术涂料或肌理涂料(用批刀、海绵辊筒做凹凸质感),重点空间加文化石/复古壁纸(需对花准确),阴角用简洁石膏线,避免冰冷感。
2. 地面:首选原木色哑光/半哑光木地板(平行采光方向铺,缝隙0.2-0.3mm),或仿古瓷砖(留2-3mm缝、同色系美缝),忌木纹砖/大花纹亮光砖,保持自然格调。
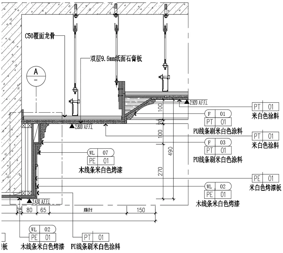
3. 柜体:用胡桃木/柚木等深色木,采用榫卯工艺,配黄铜/青铜几何拉手;拱形门洞可砌筑或木工板+石膏板做(弧度≥300mm),木梁吊顶水平误差≤2mm/2m。
4. 家具:选胡桃木/黄杨木混搭,注重比例(沙发坐高400-450mm、坐深500-550mm),用≤3cm细腿减少视觉重量,隔断用木质格栅/玻璃砖(玻璃砖需专用胶和支架)。
5. 灯具:选复古金属/玻璃灯,主灯3500K暖光,餐桌吊灯距桌面700-800mm,嵌入式灯开孔精确,吊灯用预埋件,可预留调光系统位置,打造分层光影。
行业热点
加载中...







