200平以上第四代住宅露台设计案例解析
内容概述
  本文为室内设计师解析200平以上第四代住宅露台设计案例,提炼不同类型露台的设计逻辑与价值。
1. 南北露台:国投·铂江一品230㎡/280㎡户型用双花园连接客厅、主卧,强化内外空间连续性;西安越秀铁建·樽樾260㎡户型360°巨幕端厅+6米挑高露台,平衡家庭成员休闲需求;御都·珑水雲墅通过LDKBG一体化设计联动户内外,中心楼王奇偶层错位挑空6.3米,提升舒适性。
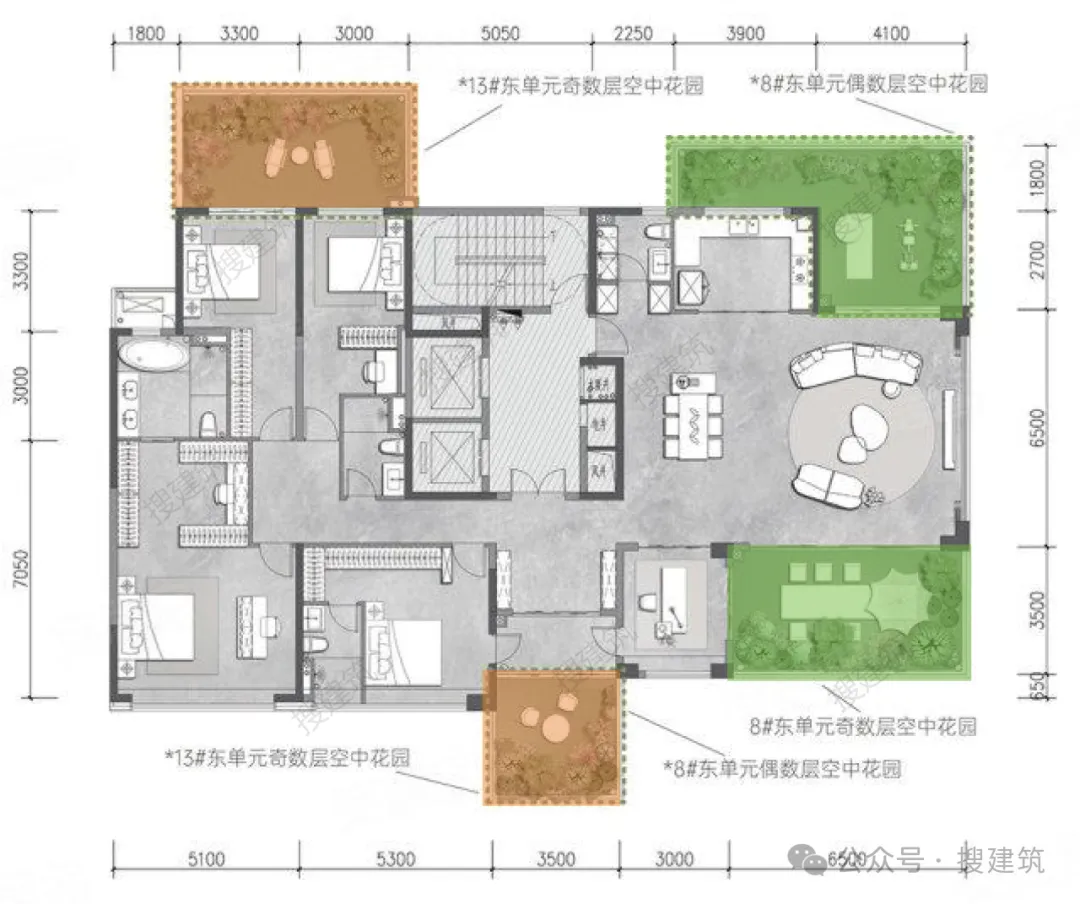
2. 单露台错层设计:南京招商金陵序225㎡户型奇偶层分南向/侧向露台,进深3米、挑高6.5米、面积23㎡(全赠),突破传统阳台尺度;江上云筑240㎡户型挑高6米、外挑4米、面宽7-14米空中庭院,错层让每层都有庭院体验。
3. 环岛式/环幕露台:福清茂华·星河颂206㎡户型双层挑高270°环幕花园,全落地窗衔接客餐厨;福清外滩壹号·观邸278㎡户型30-85㎡环幕露台,客餐厅一体化延伸空间,得房率约140%。
4. 多向露台组合:福州建发灏云230㎡户型奇数层东西侧双露台(含入户花园),偶数层13.4米跑道式露台,通过屋檐斜切45°、隐私板优化采光与私密性。
行业热点
 加载中...
  
 






