泰瑞GIGA工厂:工业建筑也能有可持续+美学+人文?
内容概述
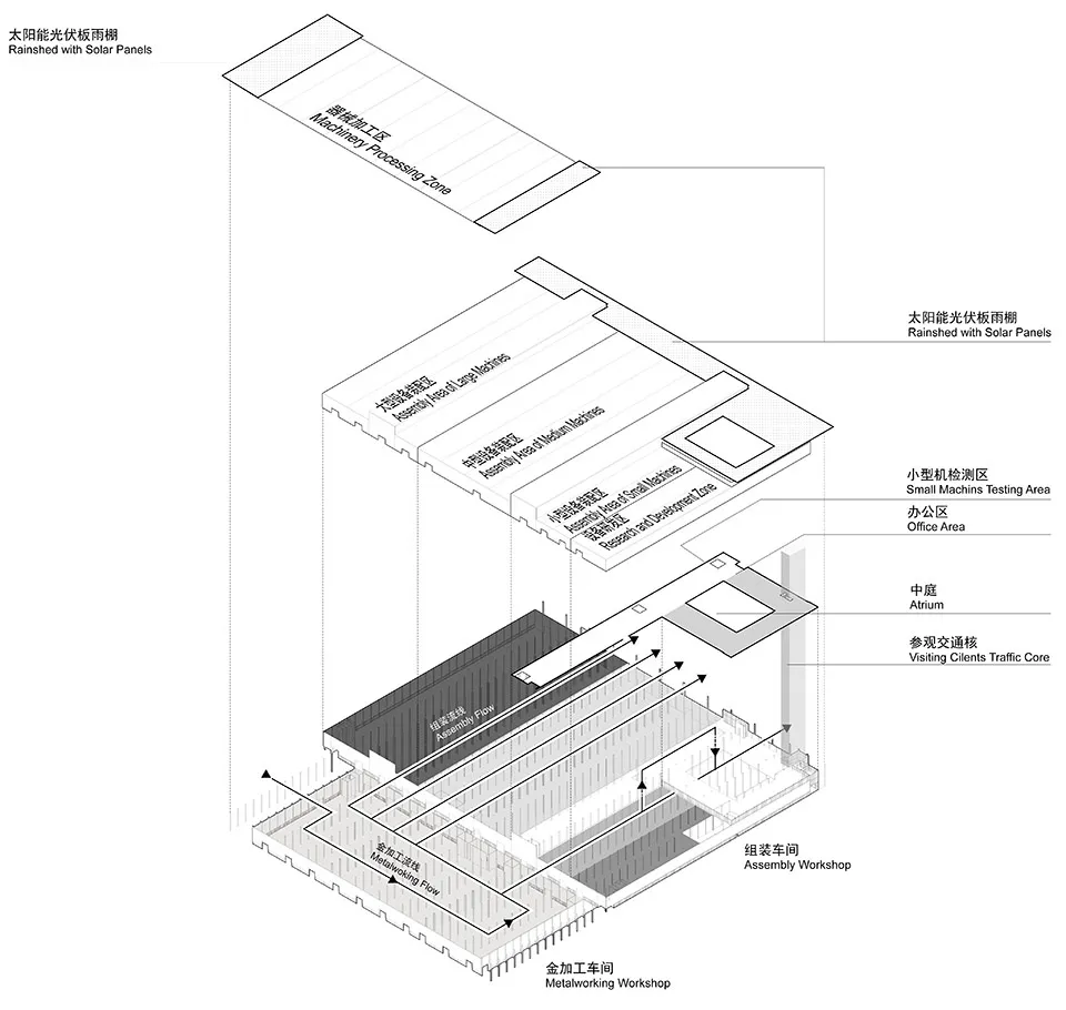
泰瑞GIGA工厂作为未来工业建筑实践案例,以可持续、功能美学与人文关怀重构工业空间价值,为室内设计师提供工业场景转型的具体参考。
1. 零碳可持续落地:通过11.69MW屋顶光伏系统实现近100%能源自供,余电并入区域电网;雨水回收用于绿化浇灌,厂区规划小型农业区,既为食堂提供蔬菜,也为工人打造休闲体验空间,将生态责任转化为可感知的空间功能。
2. 功能与美学融合:用玻璃幕墙+不锈钢瓦楞板组合立面,虚实对比削弱大体量压迫感,最大化自然采光降低照明能耗;屋顶错落层次与体量处理丰富建筑韵律,同时通过非展示区材料替换(瓦楞板替代玻璃)控制成本,破解工业建筑“黑盒子”单调问题。
3. 人文关怀融入生产:首层3米落地玻璃连接车间与外部景观,让工人在封闭空间中看见绿植蓝天;办公区挑空阳台引入绿化,形成舒适休憩区;高效单向生产流线兼顾效率与工人体验,证明工业空间需平衡生产逻辑与人文需求。
4. 成本与价值平衡:整体建造成本与传统工厂持平,却实现了更高能效、更舒适空间与生态价值,说明工业设计可在成本约束下实现多元价值,具备落地可复制性。
行业热点
加载中...







