终极改善新选择!豪宅大平层设计的三大核心揭秘
内容概述
300平以上豪宅大平层正成为终极改善新选择,其设计围绕公区社交化、景观最大化、静区功能化三大核心展开,为室内设计师提供空间创新的实践方向。
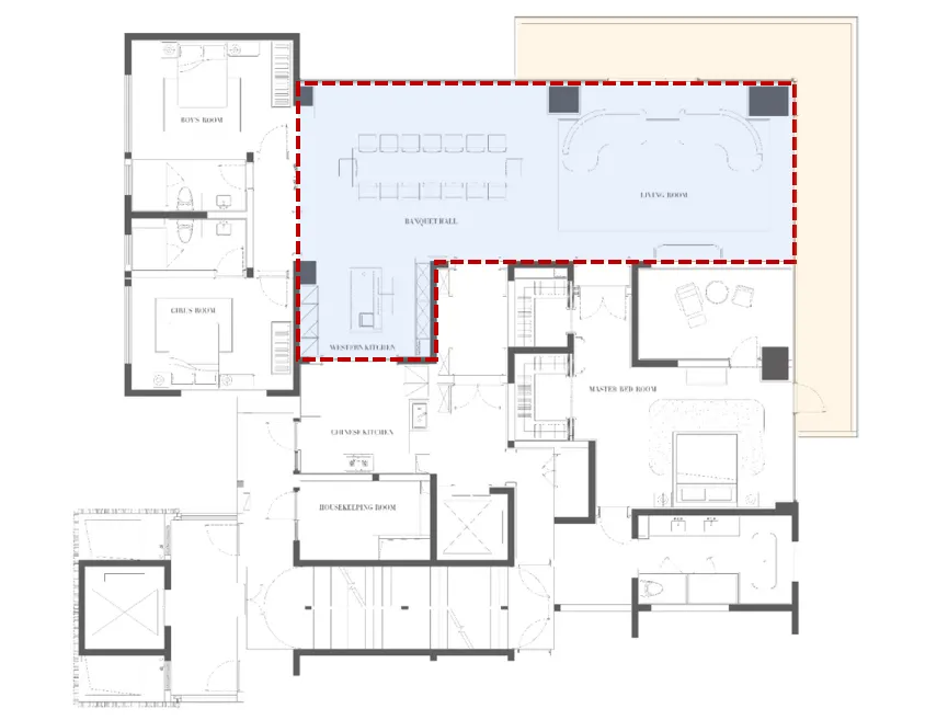
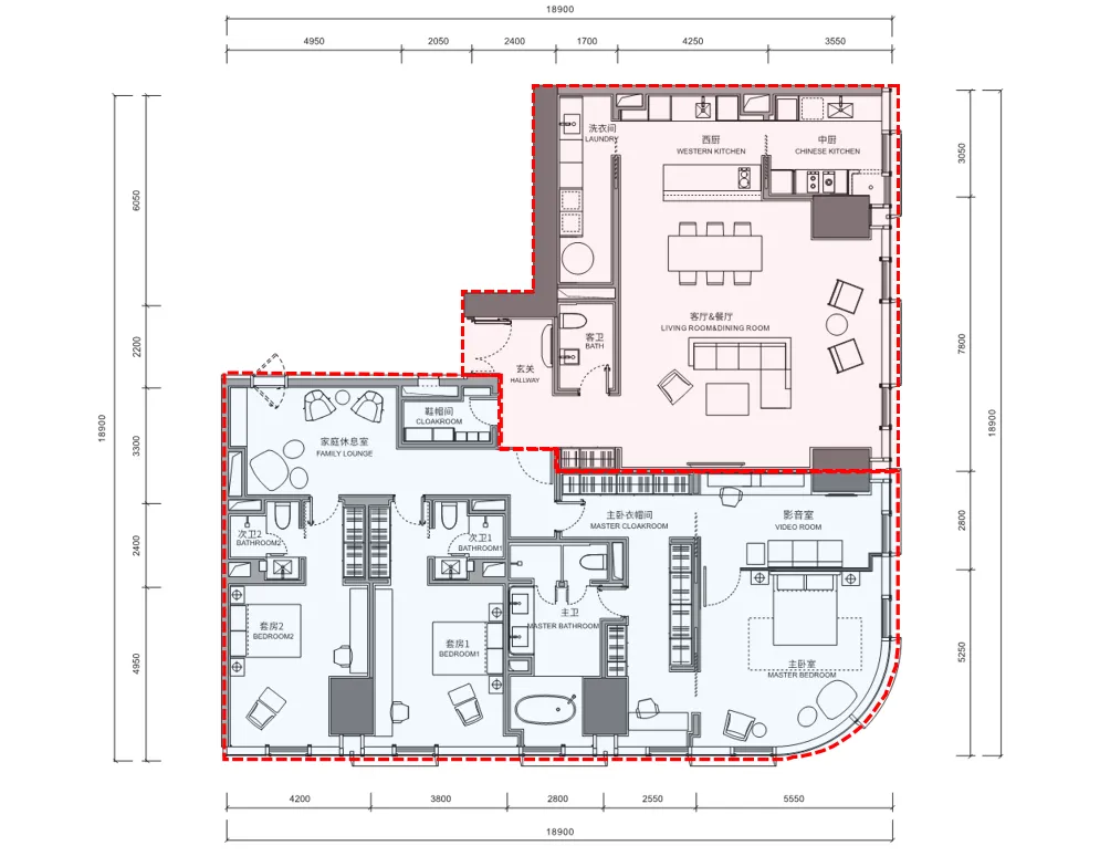
1. 公区成社交化创新重点,通过LDKB一体化、双动线分区、超尺度空间设计提升互动性,如南通万科半岛国际的LDKB轴线+10米面宽边厅、中铁建西派国樾15米宴会级社交区,设计师可借鉴动线规划与空间整合技巧,强化公区的家庭欢聚与待客场景。
2. 景观资源最大化利用是核心卖点,通过全景落地窗、270°阳台、取消阳台滑门等设计将自然/城市景观引入室内,如长嘉汇·两江峯135㎡270°会客厅、贵阳铁建城22.4米阳台+私人泳池,设计师需关注景观与空间的融合,以及工艺细节(如超大玻璃安装)对视觉效果的提升。
3. 静区强调多套房与情趣功能,通过全套房设计、主卧豪华化(如龙湖舜山府100㎡主卧)、男女独立衣帽间、可变多功能室等满足私密需求,如西安星河湾6个全套房、华润悦玺多功能室,设计师可从家庭成员分工(如独立衣帽间)、功能灵活性入手优化静区体验。
行业热点
加载中...









