
dop设计(ID:dopdesign)原创
作者丨予荣
编辑丨予荣
我相信作为一名室内设计从业者,你在学习或者工作期间一定不可避免的课程,就是去借鉴大师们的作品。找找灵感,挖掘思路,提升品位,我们都能从大师的作品中收获很多。
可是,问题就来了。。
怎么看大师们的手稿、草图或者平面图?有的草草几笔,压根看不出画的是什么。云里雾里看了一大堆,功夫费了不少,可实际上啥也没看懂。

△扎哈设计的迪耶索洛马吉察建筑
图片来源:baidu.com
不求形似?没几年设计功底的还真是只能看个热闹了。
别急,今天小编就斗胆献丑一回,手把手教你怎么看大师们的平面图。(虽然我能看懂的也不多。。。献丑献丑)

为什么平面图很重要?
平面图是建筑图纸非常重要的组成部分。它不同于立面图、剖面图关注于某一细节的表达,我们可以通过上帝视角了解特定层面的空间布置,读懂建筑与环境的关系。
项目信息,空间结构,空间关系,功能布置,流线走向,材料关系等我们都能从平面图中得出来。
一张好的平面图,可以通过调整色彩、线型加上后期的处理,准确地传达出设计概念和逻辑语言。
▽为保护颈椎,下图可横屏观看

△cad出图+ps渲染的效果
图片来源:Casa Lottersberger / Estudio Irigoyen
许多设计大师,在有了设计灵感后,甚至单凭一张平面图就能打动甲方,为之买单。
话说赖特在流水别墅要交稿之前,还一直弄,临时在去客户家的出租车上画了一张平面图来交差,没想到效果还不错(得亏是赖特,换成别人,恐怕连饭碗都没了)。

△图片来源:archcollege.com
由此可见,平面图的重要性不言而喻。

为什么要阅读大师的平面图?
既然平面图这么重要,那么建筑大师画的平面图又跟普通的平面图有什么区别呢?我们为什么要去读大师的平面图呢?


△卒姆托——瓦尔斯温泉浴场平面图
图片来源:《建筑大师经典作品解读:平面/立面/剖面》



△扎哈设计的位于威尼斯的迪耶索洛马吉察建筑
图片来源:360doc.com
其实,我们看到大师的平面图最突出的特点是精简。
没有过多复杂的序号,标志或者说明,反而用最精炼的线条将核心概念传达出来。
这也是在告诉我们平面图不在于囊括所有的建筑信息,强调出项目最核心的概念,特色,让人一目了然,再结合立面、剖面来看就是最有说服力的图纸了。


△皮亚诺设计的MUSE
图片来源:360doc.com


△安藤忠雄设计的“光的空间”
图片来源:baidu.com
大师的图纸还有一个最大的特点就是对空间的把控力极强。
这种所谓的把控力说虚也虚,说实也实。虚的说,你说它有它就有,扣上帽子就是了。

△扎哈设计的MAXXI博物馆
图片来源:360doc.com
实的话,每一处细节与用意又是经过深思熟虑,创新性是必须的,技术上,风格上,规划上。
比如说格罗皮乌斯的包豪斯校舍。他从设计到落地建成,所有时间仅用了一年的时间。整栋建筑分为3块,形似风车,各部分之间通过通道相连。后退的立柱和大面积玻璃幕墙的使用在建筑史上都是一项创举。

△图片来源:《建筑大师经典作品解读:平面/立面/剖面》
包豪斯校舍的设计经济节约,材料创新,外观新颖,属实是现代主义杰出的作品。也难怪俄国作家伊尔亚·爱伦堡说它闪耀着“永恒的思想光芒”。

△图片来源:《建筑大师经典作品解读:平面/立面/剖面》
但这种创新有时并不是说功能多好,形式多美,而是暗含深刻的建造理念,个人特色,艺术追求甚至是建筑未来发展的深刻思考。一般人看不懂也真是看不懂了,但你要是懂了,他就是在建筑史上最牛X的。
就比如说密斯,它在设计范斯沃斯住宅的时候一贯沿用了“玻璃+钢结构”的设计材料,整栋别墅比例完美,干净整洁,配合秋日的落叶简直美极了。

△图片来源:archcollege.com
但业主范斯沃斯是个女士,这栋建筑虽然身处山地,但我好在是个女的,也要有点私密性吧,这样四面大敞怎么住?她非要加上几堵墙,密斯没同意,弄了几个窗帘遮一遮。

△图片来源:archcollege.com
另外,密斯知道这栋别墅周围经常会涨洪水,也考虑到了,也抬高了建筑高度,但如图所示,他抬了又好像没抬(密斯肯定心想,建筑的美观和观念最重要啊,管他什么水不水。。。)

△图片来源:archcollege.com
所以,我们看,我们去读大师的作品学得是什么呢?
一方面,我们学习的是大师针对建筑场地,功能、材料、美学的运用,知道什么样的材料最搭配,最有效果,什么样的工艺最省时省力。
阿尔瓦阿尔托的精致和质感。

△珊纳特赛罗市政厅
图片来源:archcollege.com
赖特的生态与有机。

△罗比住宅
图片来源:archcollege.com
扎哈的曲线与逻辑。

△阿塞拜疆阿利耶夫文化中心
图片来源:huaban.com
但另一方面别指望读懂大师,你就可以骁勇善战了。大师的图纸更深刻的是其背后的思想和观念,有些建筑甚至遭到了业主和甲方的反对,但仍然留名万古是为什么呢?就是因为他考虑到了别人考虑不到的,她为后人指了路。
所以,多看一看,读一读,你学到的不一定现在能用上,甚至用上了,你的甲方也会骂你。但这种经典设计对你的影响一定是长久和深远的。你会伴随着大师们的精神感悟到建筑最深刻的内涵和境界。这是更深层次的滋养。

如何读大师的平面图?
让我们来进入正题——怎么去读大师的平面图?
1、了解项目背景
这部分就不用多说了,要想明白这栋建筑是如何设计的,必须要了解项目背后的许多信息。
建筑的面积,场地,建筑用途,项目所处环境(地理环境,人文环境),目标人群,甲方要求,当然还有最重要的这是谁设计的。要对设计师有基本的了解和认识,否则你分析他的方案也只是分析了个寂寞。。

△库哈斯的毕业设计
图片来源:archcollege.com
2、看空间功能布局
如果你是新手,那么建议你从小型建筑出发,小型建筑的体量小,空间结构简单,层次清晰,分析起来比大型建筑更容易上手。
这里给大家推荐一本书——《大师作品分析:解读建筑(第2版)》,可以用来作为分析大师作品的入门书籍。

△图片来源:baidu.com
既然说到小型建筑,对你来说,你能接受的空间最小是多少?嗯。。这好像是一个很难回答的问题。我不能回答说是一个长方形,盖子可以打开的盒子。。
但对柯布西耶来说是:3.66m*3.66m*2.26m。
我们尝试分析一下这栋“小建筑”,希望能得到启发。
这就是柯布一生唯一为自己建造的木屋。它位于法国南部尼斯地区的度假天堂——蔚蓝海岸。这栋小木屋紧邻一家餐馆,老板是柯布以前的旧相识。

△图片来源:douban.com
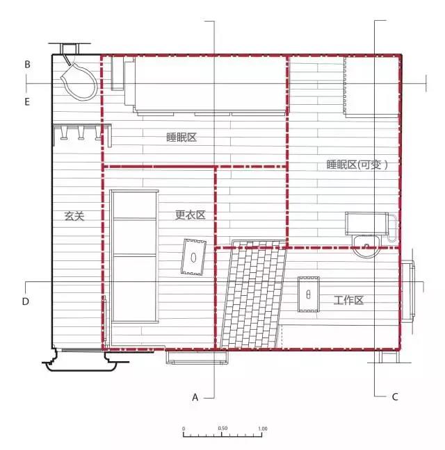
让我们来看看这栋小木屋的平面图。

△图片来源:douban.com
玄关、更衣区、休息区、工作区等分布的井井有条,没有设置厨房,是因为木屋离餐厅很近,这里也就不再需要厨房、餐厅的功能了。所有家具都靠墙放置,为空间预留出了更多的活动区域。
整个平面的布置是一个有着严格数学逻辑的盒子。4个140cm*226cm的长方形呈风车状排列,中间围合成一个86cm*86cm的正方形,成为整个建筑的活动中心。

△图片来源:douban.com
再看这张透视图,就更清楚了。

△图片来源:douban.com
我们可以尝试复述一遍空间的布置,顺时针分别是玄关、卫生间、床、床、工作台、衣柜(当你不了解平面的时候,尝试让自己背一遍布置图,你就会清晰很多)。

复制链接
