平面系统丨自己的软装平面设计就一张白纸,不会画彩平图,怎么办?

关键词:#平面系统 #彩色平面 #技术解析

导读
在工作过程中我们发现彩平图已经成为人手必备的技能之一,但是有些新手朋友却连最基本的彩平图还不会做。本章将让新手掌握80%设计师认可的入门级彩平图制作方式。
本期我们来聊聊关于“彩色平面图”的那些事儿,主要想解决以下问题:
1、为什么要制做彩色平面图?
2、一个好的彩色平面图需要具备什么特征?
3、入门级的彩色平面图如何制作?
彩色平面图
1.
人人都爱彩平图
01 为什么要制作彩平图?
彩色平面方案布置图,简称“彩平图”,是一种在CAD黑白平面图的基础上,添加具有色彩层次以及硬装、软装素材,使其展现出一个整体美观、内容丰富的视觉效果的二维图。它是设计表达的一项重要手段,对于初入室内设计行业的新人,可以算必修课了。

彩色平面图在室内设计中主要应用在方案文本中,其功能是表达空间的整体规划,让我们在为客户讲解平面布局、设计方案时,对空间的功能划分,软装布置一目了然。单纯的CAD黑白平面图一般客户可能看不懂图中所表达的意思,而且相较而言丰富的彩平图更有说服力。
02 一张好的彩平图是什么样的?
方案汇报是签单前的临门一脚,其重要性不言而喻。一套好的彩平图能够为你的汇报文本加分不少,但是彩平图你可填的简单,也可以填得复杂,除了完整的表达方案布置的信息以外重要的是一定要“好看”。
比如:是不是填充了色块,区分开了不同的空间就可了?

这配色……
那是不是填充了材质就行,像这样:

家具都看不清…
色彩分明,材质不同,这样总可以吧?

乡村非主流?
你觉得业主看到上面这样的能相信你一个设计师的审美吗?能把自己家放心给你设计?作为一名专业的设计师,我们交付出去的彩平图不应该只是在这个层次,彩平图也是向客户展现设计能力的一部分。
一张优秀的彩平图,可以简单点做的小清新:

基础版
如果时间不紧张,也可以层次更丰富一点

升级版
或者还可以做成手绘表现的风格,更有艺术感:

手绘艺术版
总之,要结合之前的色彩篇、材质篇的搭配技巧,颜值不能低!
2.
简单易上手的彩平图制作方法
彩平图并不是说一定要做得越复杂越好,可以根据不同的实际需要来选择不同的表现方式。时间太紧张或者有的项目不想花太多精力的时候,基础版的彩平就够用了。
其特点是简单、快速、能表达清楚空间布置。
那么我们来看一下,具体的制作流程

01 CAD文件导出PDF文件
1)打开需要做彩平的cad。删除多余的尺寸标记、墙体填充,保证线段的闭合。(为了在ps里拾取方便)
2) 分层导出;一张完整图纸;一张家具图纸;
3)分别导入PHOTOSHOP软件中。

完整图纸,导出pdf格式

家具层,导出pdf格式
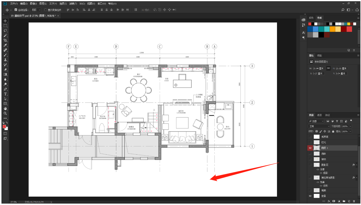
02合并到同一个PS文件中
1)要求中心对齐方式,shift+移动工具(中心对齐)
2)重命名图层
3)将完整的平面图纸与家具层合并到一个PS文件当中

合并两个文件
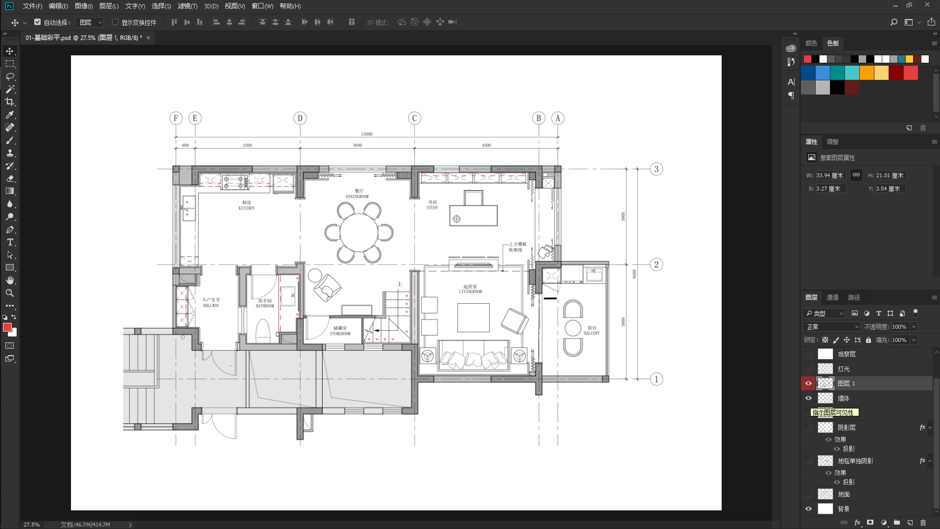
03 新建图层——完成对应内容填充
填充方式:
A 油漆桶——勾选“所有图层”
B矩形选框工具——
ALT+DELETE填充前景色
CTRL+DELETE填充背景色
1)新建背景图层——填充白色

填充个背景色,这里用的是白色
2)新建墙体图层——完成承重墙和非承重墙颜色填充

承重墙深灰色,非承重墙浅灰色
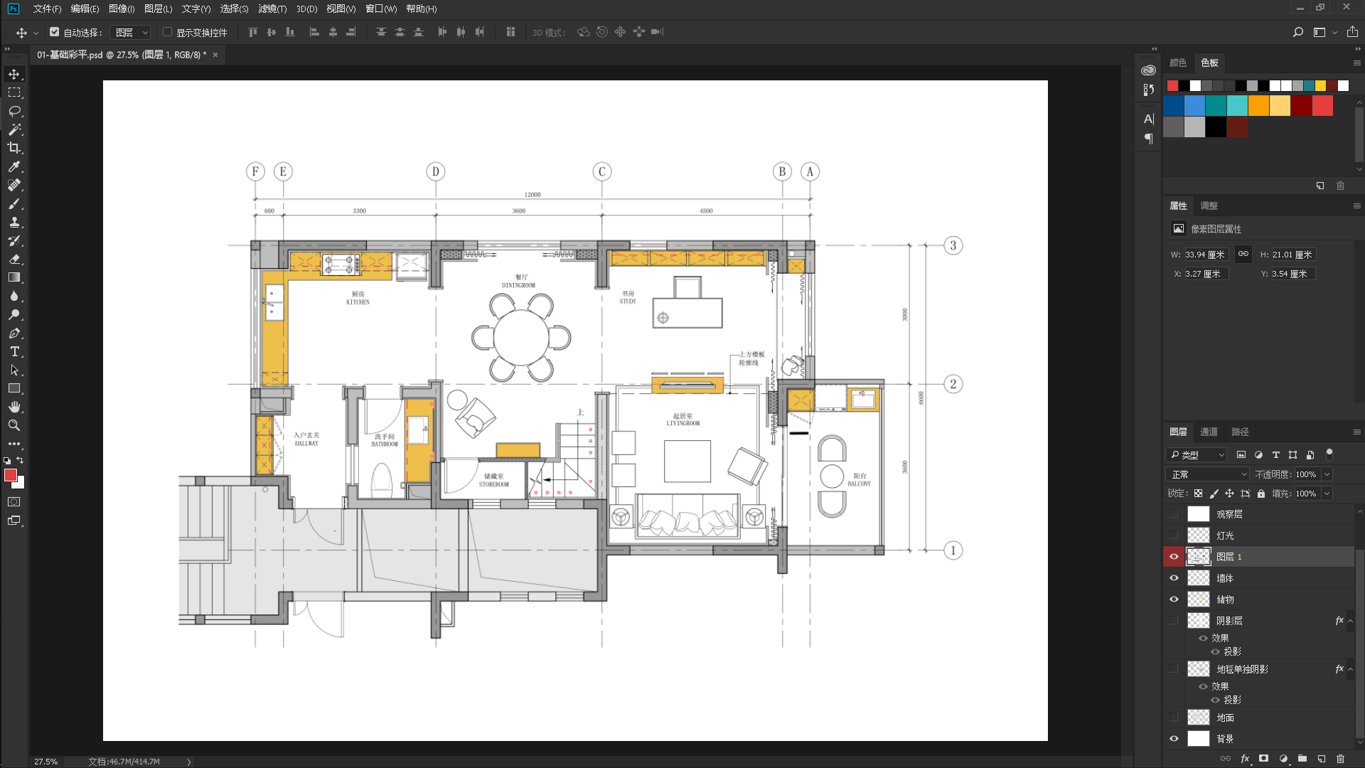
3)新建收纳图层——填充黄色

将固定家具收纳空间填充黄色
04 家具阴影制作
1)处理家具图层——填充家具为白色(反选ctrl+shift+i)

将所有移动家具填充白色
2)添加阴影,双击图层样式调节参数

双击红色箭头,找到投影(蓝色箭头),调整数据(黄色箭头)

家具出现影效果
05 填充地面
新建地面墳充图层——“油漆桶工具″——完成地面颜色填充

填充地毯、水糟

填充地面
06 保存
保存“.psd”源文件,保存“.JPG”图片
简洁大方并且能在15分钟之内就能完成,你学会了吗?更多效果和进阶的制作方法大家可以在设计得到《彩平表现6堂课》中,通过视频学习。
今日得到
好了,本期内容是《软装严选·成长营》平面系统篇,彩平的作用是为了更好的表达设计成果,提升设计价值,而一张优秀的彩平图是给人清晰,大气,高端的感觉,使你在众多对手中脱颖而出。简单总结一下彩平图的流程:
1、分别导出PDF格式的完整平面图和家具图。
2、导入PS,合并两张图
3、新建背景图层、墙体图层、收纳图层分别填色。
4、家具图层填色,加阴影。
5、给地面、地毯、水糟等填色
6、保存
谨记:学习输出的目的不是为了死记硬背,是掌握设计背后的规律,应用方法和底层逻辑,灵活的匹配应用到自己的工作中去,这才是高效学习的严格要求与输出。
今日练习
今天刻意训练的练习题是根据本期课程内容,制作一张彩平图,帮助自己强化理解,每天积攒一点点,让自己养成习惯。
欢迎你在知识星球本文的留言区分享你的作业和观点,如果你觉得本期内容对你的朋友也有帮助,也可以分享给你身边的朋友。
下期预告
1、设计中,不懂软装中的平面布局,怎么办?
2、商业项目,把握不好平面布局设计,怎么办?
这是我们下期的内容,不见不散。

声明:「软装严选 - 成长营」知识星球内所有原创内容的版权归软装严选所有,任何人不得私自转载侵权作为商业用途,违者必承担严重的法律后果。

