石膏板到底用单层还是双层?看看国标怎么说?

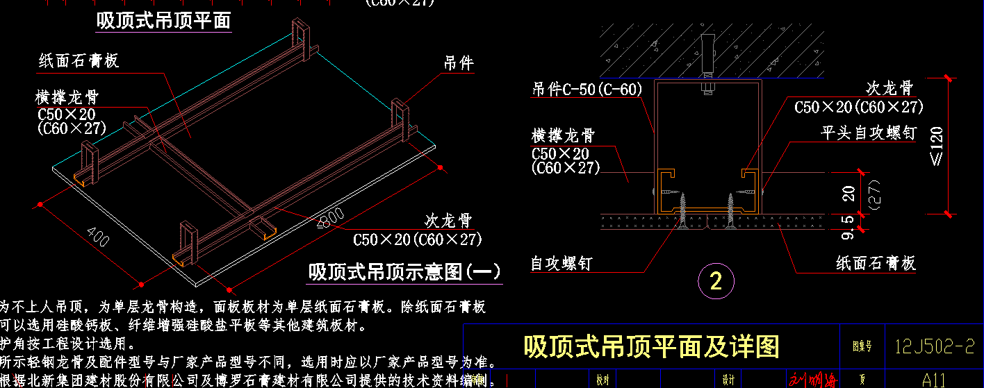
国标院出品的图集《12J502-2内装修-室内吊顶》分享一波

http://public.shejidedao.com/cfcb9e440c344aa5ac44f5f6105fa1c7.png

http://public.shejidedao.com/48528dcf55a348f38c8f5e104bdd846b.png

http://public.shejidedao.com/bbc659a815bc4ef0a7de8c86c0308baa.png

http://public.shejidedao.com/6038534448ad4c798fd1f759d1420ded.png

资料下载详情

该文件仅供学习交流使用 下载记录均已备案 请勿扩散分享 版权归原作者所有

CAD吊顶图集  12J502-2.7z
CAD吊顶图集 12J502-2.7z
下载立即下载
浏览1.2k
点赞0
评论326
收藏4
发布于2025-12-26
评论 (0)
0/9
讨论下载留言
暂无评论,快来留下一条吧~