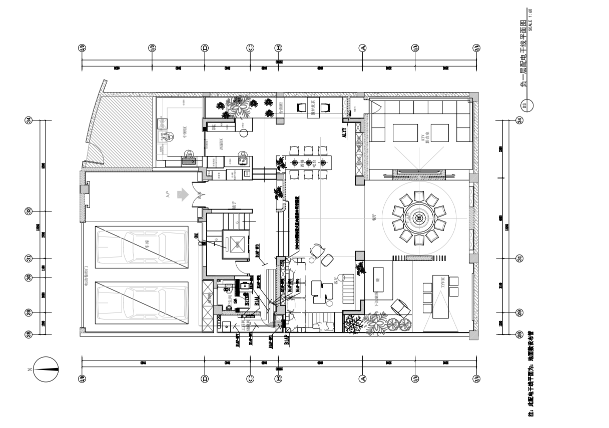
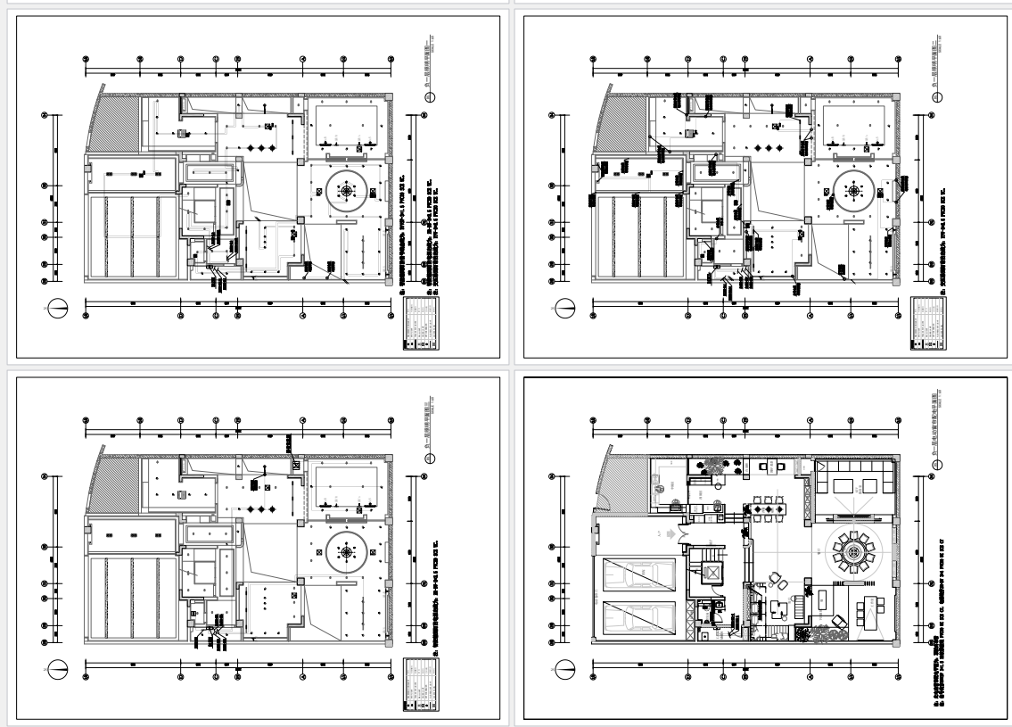
设计很忙近期做的一套别墅的水电施工图(CAD+PDF),供内训营小伙伴参考

包含完整的别墅水电系统图和平面图、原理图。值得参考学习

http://public.shejidedao.com/bd2fa5c248fc444ca546fe3453847e69.pnghttp://public.shejidedao.com/f488a72940f3483f849666370db664bc.pnghttp://public.shejidedao.com/d412b64a4f8844d586dd86bfc9120836.pnghttp://public.shejidedao.com/ca22a504c4f246dc912745097b49b918.png

资料下载详情

该文件仅供学习交流使用 下载记录均已备案 请勿扩散分享 版权归原作者所有

别墅-装饰室内装饰设计水电及PDF.zip
别墅-装饰室内装饰设计水电及PDF.zip
下载立即下载
浏览508
点赞1
评论95
收藏5
发布于2025-10-30
评论 (0)
0/9
讨论下载留言
暂无评论,快来留下一条吧~