国标新规:防火门不是不能装饰,是这些做法不合规!
△星标 ☆dop设计,不错过每一篇干货文章
设计师请注意:《防火门》GB 12955-2024强制性国家标准已正式发布,将于2026年5月1日起全面实施,并替代现行 GB 12955-2008版本国家标准。
作为建筑消防设计的核心依据之一,新规范在防火门分类、性能指标、标识要求、装饰与安装等方面均有重要调整,直接影响方案设计、材料选型与消防验收。
今天我们先讲防火门的基本情况,再重点说装修时能不能改、怎么改才合规,全是通俗易懂的说法,让你一次学会。
一、防火门的组成结构

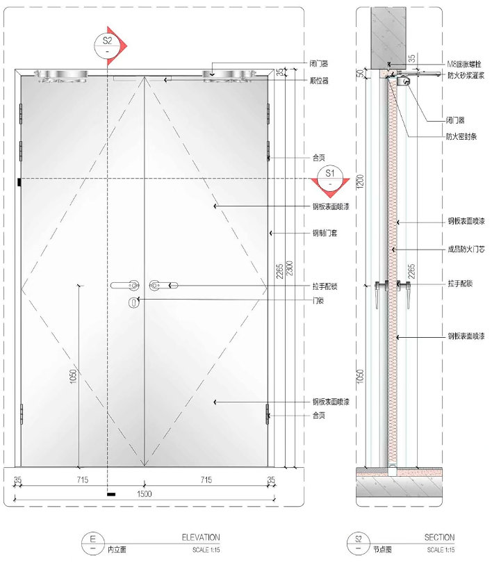
防火门由门框、门扇及五金配件等组成,门组件还可包括门框上的亮窗、门扇中的视窗以及各种防火密封件等辅助材料。
按耐火性能分为三类:

就看门能不能隔热、挡火,分 A、B、C 三类:A 类是能完全隔热的防火门,B 类是能部分隔热的,C 类是只挡火但不隔热的。
重要提醒:
防火门是经过专业消防检测的成套产品,不是随便改的东西,一般情况下不能自己拆改、改装。
二、防火门能做装饰、改外观吗?

装修时想把防火门弄好看点,不是绝对不行,得按消防规矩来,符合要求就可以,不符合就不行。
根据国家标准对装饰处理的核心规定(法规依据)
《建筑内部装修防火施工及验收规范》GB 50354-2005
7.0.6条款:防火门表面加装贴面材料或其他装修时,不得减小门框和门的规格尺寸,不得降低防火门的耐火性能,所用贴面材料的燃烧性能等级不应低于B1级。
《防火门》GB 12955-2024(即将执行的强制性国家标准)


防火门装饰处理的六项核心要求(实操标准)

实操建议与注意事项(落地指南)
不得遮掩永久性产品标志铭牌和提示标志牌,或需重新固定永久性标牌。
1.最好的做法

别自己买完防火门再贴东西装饰,要是觉得门的颜色、外观不好看一开始就跟做防火门的厂家说,让厂家在出厂前直接做好装饰、刷好想要的颜色,这样绝对不会违规,不用担消防验收通不过的风险。
2. 要是已经装好了门,二次装修想改外观

只能用贴饰面板、贴膜这种贴面的方式,而且上面说的6个规矩必须严格遵守,一点不能马虎。
3. 注意地方差异
有些城市 / 地区的消防要求更严,直接不让给防火门做任何装饰,具体要按当地的消防规定来。
三、补充几个关键细节

1.啥是 B1 级燃烧性能?
就是贴的材料得是难燃的,遇上火、高温不容易烧起来,就算烧了也不会快速蔓延,把火拿走之后立马就灭了。
2.啥是门上的永久标识?
就是刻 / 贴在门上的产品信息,比如门的型号、多大尺寸、几级防火、哪个厂家做的,这个是消防验收的重要依据,少了、挡了都不行。
请看一下,下面这个防火门,符合规范吗?评论区讨论。

好了,本期的dop干货就到这儿,如有帮助,评论区扣“日拱一卒”,支持一下dop~


