设计师必懂的6种墙面工艺流程,收好了!
dop设计(ID:dopdesign)原创
作者丨丽子
中午好,在我们的设计交流群经常有朋友问到关于主流墙面材料的工艺流程与细节。今天,我们把之前dop分享过的工艺做个整理,带你看看最主流的6类墙面施工工艺。
1、乳胶漆墙面工艺流程
2、壁纸/壁布墙面工艺流程
3、木饰面墙面工艺流程
4、瓷砖墙面工艺流程
5、石材墙面工艺流程
6、软包墙面工艺流程
ps:本文篇幅较长,先收藏再学习,不迷路
01. 乳胶漆墙面工艺流程
www.shejidedao.com丨联系VX:dop032 回复“公众号”加群
source:google.cn
乳胶漆墙面是墙面工程中最为常见的饰面做法,通常又根据墙体基层的不同分为实墙基层做法和隔墙基层做法。
1、实墙基层做法
source:google.cn
a、施工工艺
施工流程为:
施工准备→涂刷界面剂→找平处理→基层防开裂处理→刮两、三遍腻子,打磨→一遍底漆→找补打磨→两遍面漆→清洁养护
① 施工准备
准备相关的施工材料及设备,然后先将实墙基层表面上的灰块、浮渣等杂物铲除,如表面有油污,应用清洗剂和清水洗净,干燥后再将表面灰尘清扫干净。
source:google.cn
② 涂刷界面剂
界面剂能够增强对基层的粘结力,避免了抹灰层空鼓、起壳的现象。在刷界面剂时,一定都要刷到刷匀。
source:google.cn
③ 找平处理
刷完界面剂后,对于墙面不平的地方要用粉刷石膏找平,使得墙面的误差不超过3mm。
④ 基层防开裂处理
一般非承重墙面基层是需要贴布进行防开裂处理的,尽量选择质地好一点的墙布和白乳胶,如果有条件的话可以用网格布。
source:google.cn
⑤ 刮两、三遍腻子,打磨
刮腻子的遍数可由基层或墙面的平整度来决定,一般情况为三遍,对全屋墙面找平打底。然后用很细的砂纸对全屋墙面腻子进行打磨。
source:google.cn
⑥ 一遍底漆
底漆一定要刷匀,确保墙面每个地方都刷到,如果墙面吃漆量较大,底漆最好适量的多加一点水,以确保能够涂刷均匀。
source:google.cn
⑦ 找补打磨
腻子打磨完毕之后,会留有一些瑕疵,一般情况下很难看清,只有刷过一遍漆之后才会很明显,这时候就需要找补了,一定要打磨平整。
⑧ 两遍面漆
涂刷第二道面漆时必须等第一道面漆干透后方可涂刷,且第二遍面漆须一次成型,不可修补,保证涂层色泽一致,厚薄均匀,不露底,无漏涂,无流挂,无搭色。
source:google.cn
⑨ 清洁养护
施工完成后对现场进行清洁,通常乳胶漆涂刷完之后4个小时就会干燥,但还没有达到一定的硬度,因此,需要养护7~10天,这期不要有擦洗或任何接触墙面的举动即可。
b、注意事项
① 在刷乳胶漆以前,必须保证墙体完全干透,一般应放置10天至半个月以上,以防刷漆以后会起泡。
② 一定要按照乳胶漆产品桶上说明的比例来兑水,不同的产品要求的比例是不同的。
③施工前,应将乳胶漆料剂搅拌均匀,尤其是使用色彩鲜艳的产品时,防止因色浆分散不稳定或由于长时间储存后色浆析出,造成饰面发花,影响装饰效果。
source:google.cn
c、构造做法
source:google.cn
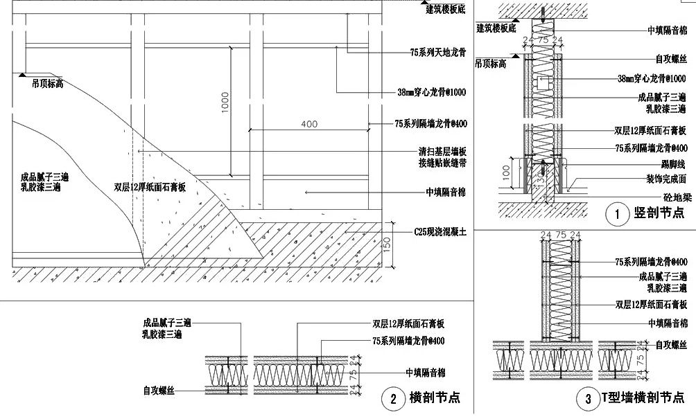
2、隔墙基层做法
source:google.cn
a、施工工艺
施工流程为:
施工准备→弹线定位→安装沿顶龙骨、沿地龙骨→安装门洞框、竖龙骨→安装横向卡挡龙骨→安装排布设备管线→安装石膏罩面板→缝隙处理→乳胶漆饰面
① 施工准备
前期完成设计图纸及施工材料的加工准备等。施工现场除了必要的材料、设备、人员等条件外,还要对地面进行清理,保证地面整洁,无积灰、杂物等。
② 弹线定位
根据设计施工图,在已做好的地面或地枕带上,放出隔墙位置线、门窗洞口边框线,并放好顶龙骨位置边线。
source:google.cn
③ 安装沿顶龙骨、沿地龙骨
按已放好的隔墙位置线,按线安装顶龙骨和地龙骨,用射钉固定于主体上,其射钉钉距为400~600mm。
source:google.cn
④ 安装门洞框、竖龙骨
根据弹线位置,先将门洞框安装完成。再固定端墙竖龙骨,接着将其他的竖龙骨从一端以同间距同向垂直地插入沿顶、沿地龙骨之间,调整垂直及定位准确后固定;靠墙、柱边龙骨用射钉或木螺丝与墙、柱固定。
source:google.cn
⑤ 安装横向卡挡龙骨
根据设计要求,隔墙高度大于3m时应加横向卡档龙骨,采向抽心铆钉或螺栓固定。
source:google.cn
source:google.cn
⑥ 安装排布设备管线
根据设计图纸,对预埋隔断中的管道和有关附墙设备等进行安装排布,并采取局部加强措施来保证设备管线的稳定牢固。
source:google.cn
⑦ 安装石膏罩面板
隐蔽检查,然后先安装一侧的纸面石膏板,安装电盒、电箱等附墙设备,接着安装墙体内防火、隔声、防潮填充材料,与另一侧纸面石膏板同时进行安装填入。
source:google.cn
source:google.cn
⑧ 缝隙处理
缝隙处理主要考虑纸面石膏板接缝做法,通常有三种形式,即平缝、凹缝和压条缝来进行缝隙处理。
⑨ 乳胶漆饰面
纸面石膏板乳胶漆饰面,一般先分层涂刮腻子,最后进行乳胶漆涂料涂刷施工。
source:google.cn
b、注意事项
① 竖向龙骨安装要留伸缩量,超过2m长的墙体要做控制变形缝,隔墙周边应留3mm的伸缩缝,这样可以减少因温度和湿度影响产生的变形和裂缝。
② 安装时局部节点应严格按图规定处理,钉固间距、位置、连接方法应符合设计要求。
③在竖龙骨安装前,要做竖向龙骨分档,通常根据罩面板板材的宽度尺寸模数进行分档,并按分档位置安装竖龙骨。
c、构造做法
source:google.cn
延伸阅读
02. 壁纸/壁布墙面工艺流程
www.shejidedao.com丨联系VX:dop032 回复“公众号”加群
source:google.cn
1、施工工艺
以胶粘式为例,其施工流程为:
施工准备→基层处理→滚刷基膜→壁纸/壁布裁剪→调制、涂抹胶剂→壁纸/壁布铺贴→收边裁边→修整验收
① 施工准备
检查墙面,应干净平整,墙皮表面无松动脱落。使用贴墙纸或其他墙布的专用工具,其中最好选用专业进口墙纸刀。
source:google.cn
② 基层处理
对于墙体基层表面的污渍、不平整、凹陷、松动等瑕疵要进行处理,保证墙面基层满足下一步施工条件。
source:google.cn
③ 滚刷基膜
调制基膜液,用滚筒在墙面上刷满基膜。一般需要等待24小时,基膜彻底干透后才可以进行下一步铺贴。
source:google.cn
④ 壁纸/壁布裁剪
按照墙面高度测量并计算材质高度,一般裁剪出来的墙纸长度比墙面上下多预留10cm左右,以备修边使用。
source:google.cn
⑤ 调制、涂抹胶剂
按比例调好无缝墙布胶,调好壁纸胶后在壁纸背面刷胶。
source:google.cn
⑥ 壁纸/壁布铺贴
壁纸背面刷胶后,用红外线水平仪比对测量,进而开始墙面壁纸铺贴,顺序是由里至边,将壁纸上下贴齐后再按顺序继续进行铺贴。
source:google.cn
⑦ 收边裁边
粘贴后处理干净接缝处的胶痕,裁剪掉壁纸多余的部分,进行细部收边裁边处理。
⑧ 修整验收
整屋贴完后进行全面检查,发现有气泡、鼓泡等情况要进行修整。
source:google.cn
2、注意事项
①基层处理时,必须清理干净、平整、光滑,防潮涂料应涂刷均匀,不宜太厚。
②塑料墙纸遇水呀胶水会膨胀,因此要用水润纸,使塑料墙纸充分膨胀,玻璃纤维基材的壁纸、墙布等,遇水无伸缩,无需润纸。复合纸壁纸和纺织纤维壁纸也不宜闷水。
source:google.cn
③防止因阴角不齐造成壁纸倾斜,其顶端需留出大约10cm余量,作为修剪时用。
3、构造做法
source:google.cn
03. 木饰面墙面工艺流程
www.shejidedao.com丨联系VX:dop032 回复“公众号”加群
source:google.cn
1、施工工艺
以轻钢龙骨结构框架式为例,其施工流程为:
施工准备→弹线定位→安装轻钢龙骨框架→安装基层板→安装挂条→安装木饰面板→清洁养护
① 施工准备
对墙面进行检查,确认墙面的平整度、垂直度、牢固度以及基层含水率是否符合施工要求。对施工材料检查是否有缺陷或色差。若有基层问题或材料问题,都要处理完成后才可以进行下一步施工。
source:google.cn
② 弹线定位
根据深化图纸和现场的轴线、水平基准线等尺寸,确定基层龙骨的分格尺寸,将施工作业面均分龙骨的中心位置,然后用墨斗弹线,完成后进行定位复查。
source:google.cn
③ 安装轻钢龙骨框架
用膨胀螺栓与卡式轻钢龙骨固定在墙面上,安装U型轻钢龙骨与卡式轻钢龙骨卡槽链接固定中距约300mm。
source:google.cn
④ 安装基层板
用自攻螺丝将12mm多层板基层(刷防火涂料三遍)与U型轻钢龙骨固定。
source:google.cn
⑤ 安装挂条
用自攻螺丝固定经防腐防火防潮处理的挂条与多层板基层。
⑥ 安装木饰面板
在板材背面进行弹线,将挂条中的另一条临时固定在木饰面板的背面,进行试装。待将挂片位置调整至合适的尺寸后刷胶,并用自攻螺钉固定在木饰面背面板上。
source:google.cn
⑦ 清洁养护
对1.5m以下容易被触碰的位置进行专用保护,或对施工区域实施封闭保护,直至验收。
2、注意事项
①当安装高度超过3.6m,或板材厚度为9.0mm以上(包含9.0mm)时,建议使用干挂法更安全,同时耐久性更好。
②龙骨框架也可以采用木龙骨,通常是采用木楔及40mm×30mm木方,安装间距为300mm×300mm。
source:google.cn
3、构造做法
source:google.cn
△轻钢龙骨干挂式做法示意
source:google.cn
△木龙骨干挂式做法示意
△扫码入群,一起交流△
04. 瓷砖墙面工艺流程
www.shejidedao.com丨联系VX:dop032 回复“公众号”加群
source:google.cn
1、施工工艺
以湿贴式为例,其施工流程为:
施工准备→基层处理→选砖浸砖→配制搅拌瓷砖粘结剂→墙面批刮粘结剂→铺贴瓷砖→勾缝清理
① 施工准备
准备好所需的施工材料及工具,同时要检查核对施工材料的数量、规格、颜色等是否符合设计要求。
source:google.cn
② 基层处理
将基层表面浮灰、污渍等处理干净,去除找平层上多余的砂浆结块,保证墙面基层平整干净,再用水湿润墙面。
source:google.cn
③ 选砖浸砖
将存在色差、裂纹、破损、缺角等瑕疵瓷砖挑出,再将品质完好的瓷砖完全浸入水中,浸泡半个小时以上。
source:google.cn
④ 配制搅拌瓷砖粘结剂
将瓷砖粘结剂倒入空桶中,根据厂家提供的配比进行调制,经过电动搅拌、静置、再搅拌等操作后,完成待用。
source:google.cn
⑤ 墙面刮批粘结剂
将搅拌均匀的瓷砖粘结剂,用齿型抹刀的直面,用力均匀批刮至墙面基层上。再用齿刀的齿面批刮纹路,使其均匀饱满。
source:google.cn
⑥ 铺贴瓷砖
将配制均匀的瓷砖粘结剂用齿刀均匀的批刮在瓷砖背面,并刮出纹路,瓷砖背面纹路要垂直于墙面纹路。然后将瓷砖粘贴于墙面,进行压拍,使其与墙面完全贴合,再用橡皮锤微调,保证墙面平整。
source:google.cn
⑦ 勾缝清洁
铺贴完成48小时后,可进行瓷砖勾缝,用橡胶挂板将调好的勾缝剂均匀饱满地刮在砖缝位置。处理完成后,清洁瓷砖表面多余的勾缝剂及其他污渍,后期需对墙面进行养护。
source:google.cn
2、注意事项
①基层处理和瓷砖铺贴前,都要对墙面及瓷砖背面进行清洁整理修整,去除灰尘、污渍、不平整等缺陷,防止因粘贴不牢固而产生空鼓脱落等情况。
source:google.cn
②在铺设瓷砖的时候,要预留足够缝隙,通常不小于1mm,但要注意不是所有的瓷砖都留一样大的缝,应根据需要及美观性控制缝隙的尺寸。
3、构造做法
source:google.cn
05. 石材墙面工艺流程
www.shejidedao.com丨联系VX:dop032 回复“公众号”加群
source:google.cn
1、施工工艺
以干挂式为例,其施工流程为:
施工准备→弹线定位→埋板安装→安装轻钢龙骨框架→安装挂件→石材开槽切割→安装石材→嵌缝处理→清洁养护
① 施工准备
对石材进行排版、编号,对基体墙体进行检查,确认是否需凿除、修整。
source:google.cn
② 弹线定位
根据设计要求放样并弹出骨架、饰面轮廓线和墙上水平基准线,并放好各部位的槽钢线。
source:google.cn
③ 预埋安装
按照竖龙骨槽钢位置,确定预埋镀锌钢板位置,在混凝土梁、墙上用膨胀螺栓固定埋板。
source:google.cn
④ 安装轻钢龙骨框架
按照所弹的分割线合理布置钢骨架的竖龙骨,与埋板四边满焊连接。横龙骨采用镀锌角钢与竖龙骨满焊连接,安装前根据石材规格在角钢一面预先打孔以备挂件固定用,同时龙骨所有焊接部位防锈处理。
source:google.cn
⑤ 安装挂件
在钢骨架上插固定螺栓,镶不锈钢或铝合金固定挂件。用胶剂嵌入下层石材的上槽,插连接挂件,嵌上层石材下槽。
⑥ 石材开槽切割
根据设计尺寸,将石材固定在专用模具上,进行石材上、下端开槽,背面开一企口以便干挂件能嵌入其中。
source:google.cn
⑦ 安装石材
用胶剂嵌入下层石材的上槽,插连接挂件,嵌上层石材下槽。
source:google.cn
source:google.cn
⑧ 嵌缝处理
用泡沫棒塞缝,并用专用填缝剂擦缝,完成后进行完成面的清洁。
source:google.cn
⑨ 清洁养护
将地面以上2m范围覆膜,进行成品保护。
2、注意事项
①当干挂石材幅面尺寸>1㎡时,上下排挂点间距不宜超过700mm,石材中间应增加挂点,以免石材受力不足而脱落。
②石材干挂必须使用环氧干挂AB胶(严格按照1:1比例进行配比施工),云石胶只能作为临时固定。
3、构造做法
source:google.cn
06. 软包墙面工艺流程
www.shejidedao.com丨联系VX:dop032 回复“公众号”加群
source:google.cn
1、施工工艺
其施工流程为:
施工准备→底板(基层)铺设→弹线定位→制作并安装软包装饰板→安装分隔条或装饰压条→清洁保护
① 施工准备
确认水电及设备,顶墙上预留预埋件,房间里的吊顶、地面、预埋木砖等是否已基本完成,并符合设计要求。根据现场实测和设计图纸的要求,进行用料计算,底衬板、填充料、面料套裁工作,施工工具的准备等。
source:google.cn
② 底板(基层)铺设
抹水泥砂浆找平层,对墙体作防潮、防腐、防火处理。基层骨架采用轻钢龙骨,底板可采用阻燃板基层板。轻钢龙骨通过U型支撑件与墙体预埋木砖连接,底板铺钉在轻钢龙骨上。
source:google.cn
source:google.cn
③ 弹线定位
据设计图纸要求,把该房间需要软包墙面的装饰尺寸、造型等通过吊直、套方、找规矩、弹线等工序,把实际设计的尺寸与造型落实到墙面上。
source:google.cn
④ 制作及安装软包装饰板
按照设计图纸和造型的要求把弹性填充物粘贴固定在预制软包装饰底板上。再把面料按照定位标志及设计要求粘贴。然后将软包装饰板,按设计图纸及试拼效果,用专业胶粘剂粘贴在底板(基层)上即可。
source:google.cn
source:google.cn
⑤ 安装分隔条或装饰压条
材料拼接收口可采用金属嵌条或木线条等分隔条或装饰压条。用结构胶或玻璃胶将分隔条或装饰压条粘贴牢固。
source:google.cn
⑥ 清洁保护
安装完成后,要对整体软包墙面修整处理,例如除尘清理、处理钉粘保护膜的钉眼和胶痕等。并用塑料薄膜覆盖,做好成品保护。
2、注意事项
①在备料时,注意同一房间、同一图案与面料必须用同一卷材料和相同部位(含填充料)套裁面料。
source:google.cn
②粘贴或铺贴时,必须横平竖直、不得歪斜,尺寸必须准确等,以保证精致效果。
3、构造做法
source:google.cn
(本文的图片均来源于网络,版权归原作者所有)
好了,今天的dop干货就到这儿,如有帮助,还请点赞,在看,转发支持下。
设计得到年费会员,8000+知识点、4000+vip专属教学视频、4322篇干货技术类图文,海量会员专享设计资源任你挑选。希望这些资源,能让每位设计师都能用专业能离打败行业的不景气,升职加薪!
年费会员免费观看的课程大概还有这么多↓
并且还在持续更新ing…
△上下滑动查看完整课表△
老规矩,一张图,总结本文:
△点击保存图片,欢迎转发分享
△扫码入群,一起精进
dop设计&设计得到 正在招聘中
△扫码联系穆清,加入dop设计x设计得到△
dop设计、设计得到也正持续招聘中,有兴趣的小伙伴,欢迎加入我们。
招聘岗位:深化设计组长、深化设计师/助理、设计类管培生(互联网新媒体方向)、设计类实习生
工作地点:上海宝山区智慧湾科创园15号楼
- End -
如有帮助,还请 点赞、在看、转发 支持一下
文中部分图片源于网络,如有侵权,请联系小编~
加dop032,领“dop设计大礼包”
更多设计干货,请登陆设计得到网站
www.shejidedao.com或点击“阅读原文”开始学习!
👇👇👇

