墙体撞玻璃幕墙?2种收口解法,避坑90%设计师!
△星标 ☆dop设计,不错过每一篇干货文章
在室内设计中,当墙体或吊顶直接与玻璃幕墙相遇时,收口处理成为许多设计师面临的常见难题。

不当的收口不仅影响美观,还可能因热胀冷缩或建筑沉降导致墙体开裂或幕墙玻璃位移,存在安全隐患。
本文将深入解析两种主流收口设计思路,并结合实际工艺要点,为室内设计师提供实用参考。
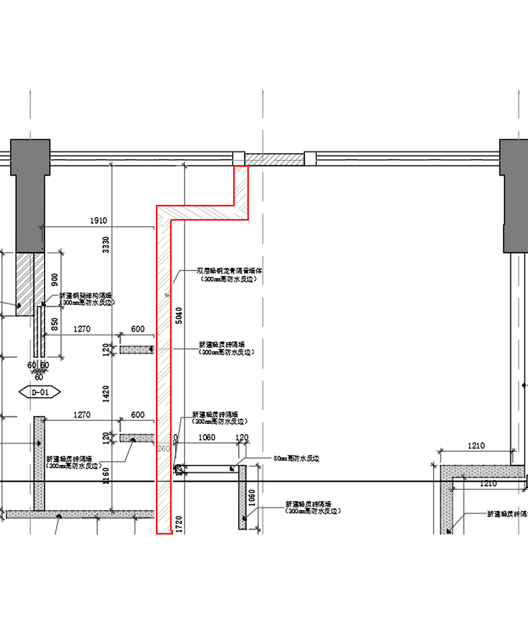
1、墙体与幕墙金属框收口
2、墙体与玻璃硬收口与软连接
01. 墙体与幕墙金属框收口
www.shejidedao.com丨联系VX:dop024 回复“公众号”加群
最安全、高效的收口方式是通过折边处理,让墙体或吊顶的末端固定在幕墙的金属框架上。

错误的收口方式↑
玻璃幕墙的金属框是结构支撑部分,能够承受一定的压力,而玻璃本身则非常脆弱,直接受力极易引发破裂。折边收口的本质是将室内装修的荷载传递给幕墙金属结构,而非玻璃。

正确的收口方式↑
具体操作中,需在墙体或吊顶接近幕墙时,将其端部向内转折,形成与幕墙框平行的接触面,再通过螺丝或结构胶与金属框固定。

墙体与幕墙收口大样↑

三维节点示意图↑
这种方式不仅牢固可靠,还能有效规避因温度变化引起的伸缩应力,从根本上杜绝了玻璃受损的风险。
02. 墙体与玻璃硬收口与软连接
www.shejidedao.com丨联系VX:dop024 回复“公众号”加群
当墙体或吊顶与幕墙金属框之间的距离过大,无法实现折边收口时,设计师不得不采用硬收口结合软连接的方案。


此工艺要求先用基层板(如石膏板或木工板)将隔墙端部收平,随后在基层板与幕墙玻璃之间预留10-20毫米的缝隙。

该缝隙需填入弹性缓冲材料,如橡胶垫片或发泡聚乙烯条,形成一道“软连接”层。软连接的核心作用是吸收微小的位移和振动,缓解热胀冷缩对玻璃的瞬间冲击。
然而,这一方法需谨慎使用,设计师常忽略两大问题:
其一:在低楼层(尤其1-3层),从室外可直视墙体内部基层,严重影响建筑外观。解决方案是增加金属挡板或型材在缝隙外侧进行遮丑处理,保持内外视觉统一。

其二:软连接的缓冲能力有限。若建筑沉降或温变幅度较大,仍可能积累应力,逐步挤压玻璃。因此,该工艺仅建议用于5层以下的多层建筑,且需严格控制缝隙宽度与材料弹性模量。
最后:
室内墙体与玻璃幕墙的收口,本质是平衡安全性与美观性的过程。折边收口因其直接、可靠,成为首选方案。而硬收口与软连接则是在特定约束下的补救措施。无论采用何种方式,设计师均需牢记:永远避开玻璃受力,预留缓冲空间,并针对建筑高度与视觉要求细化构造。
好了,本期的dop干货就到这儿~


