GRG要被淘汰?UHPC成为异形造型之王?
△星标 ☆dop设计,不错过每一篇干货文章

GRG↑
近年来,GRG作为室内复杂造型的王牌材料,似乎正遭遇前所未有的挑战。

发泡陶瓷↑
一方面,发泡陶瓷等新材料以成本仅GRG的一半、安装如搭积木的强势姿态,抢占市场。

UHPC↑
另一方面,UHPC(超高性能混凝土)凭借结构装饰一体化能力,不断侵蚀GRG的传统领地。
许多设计师开始担忧:GRG是否已被推至淘汰边缘?
今天,我们就着重来了解一下UHPC这款材料,主要从下面两个问题来帮你理解:
1、什么是UHPC?
2、UHPC如何施工?
01. 什么是UHPC?
www.shejidedao.com丨dop设计公众号回复“社群”加群

UHPC全名:超高性能混凝土,是指一种具有超强力学性能、高韧性、超高耐久性和优良浇筑及成型性能的水泥基混凝土材料。UHPC通过选用高活性的微细材料,采用最紧密积和纤维增强技术配制而成。

通常会采用硅酸盐水泥、硅灰、石英粉、细硅砂、高效减水剂、水、钢或有机纤维等高强度韧性材料为原料。

UHPC与GRG的区别:
UHPC是一种水泥基复合材料,通过添加钢纤维、硅灰等组分,实现紧密的分子结构。GRG以改良石膏为基材,加入玻璃纤维增强,本质上是石膏基复合材料。
材料特点:
可塑性强:密度大、表面光洁度高、质地细腻,有温润如玉之感,加上其优异的物理性能,且可塑性极强,可以实现更多复杂多变的造型。

强度高韧性:强高抗压抗弯折(可做悬空屋面)、低收缩、背栓抗拔性能高,同时总重量轻,强度高,无需另加结构支撑,可做大规模板。具有超高的韧性,实现了抗压强度和抗折强度的有效平衡。
耐久性强:具有超高密实度和超高耐久性,在氯离子侵蚀、硫铝酸盐侵蚀等条件下,能长时间阻止有害物质渗透,还具有较强的自愈能力,防水抗渗抗污效果非常好。
材料规格:
超高性能混凝土标准板的常用参数如下:
尺寸规格:标准板通常为1600mm×3000mm,可实现规格尺寸900mm×1200mm等递增排版。

△ UHPC标准板(部分材料示例)

UHPC标准板具有极高的耐污性、高抗压抗弯折(可做悬空屋面)、低收缩、背栓抗拔性能高 、高白度及高光度、并可做大规模板、纯无机材料可达到顶级防火。
裂而丝连,UHPC标准板断后在纤维的作用下不会直接掉落,安全性拉满。

技术参数

(以上为市面上大部分产品材料常用参数,仅供参考)
表面呈现方式
表面呈现方式如亮面、麻面、喷砂面、火烧面、异性加工等石材表面方式都能与其匹配,还可根据使用环境进行定制化的服务。

△ 表面呈现方式示例(部分示例)
材料类型
UHPC常见的材料类型有UHPC透光混凝土、UHPC艺术混凝土、UHPC镂空板等。



△ UHPC透光混凝土(部分材料示例)


02. UHPC如何施工?
www.shejidedao.com丨dop设计公众号回复“社群”加群
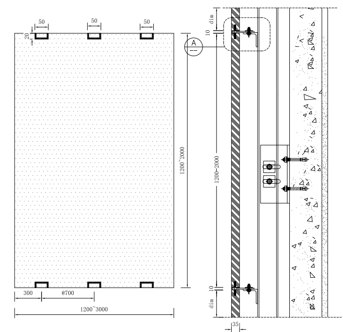
超高性能混凝土在室外墙面工程中最为常用,下面就以外墙干挂工艺为例,聊一聊它的施工工艺,具体流程为:
施工准备→钢连接件与龙骨连接→T型钢竖向龙骨吊装安装→T型钢横向龙骨安装→横梁上安装铝角码→测量调整铝角码位置→UHPC板吊装安装→调整就位后固定→修复安装孔→清洁验收




△ 节点详图示意


△ 安装节点图
案例应用
UHPC在建筑、景观、桥梁、市政工程等项目中广泛应用,其最大亮点在建筑幕墙的应用,让建筑的表皮立面可以实现超高穿孔率,还可以得到传统材料难以达到的造型及图案。

法国马赛塔大楼
法国马赛塔大楼的立面是由UHPC的遮阳结构组成,主要采用了3850个超高性能混凝土预制板作为建筑立面的栅栏遮阳构件,其细腻的质感和优异的耐候性成为地中海强烈的日光和海风浸蚀最佳的材料选择。


法国巴黎Jean Bouin体育场
法国巴黎Jean Bouin体育场采用了23000平方米的UHPC超高性能混凝土做表皮,主要应用于三大部分:立面采用自承重镂空面板,立面与屋面之间的交界处的镂空面板,以及600块嵌入玻璃的屋面面板。


随着UHPC行业标准的不断完善,《超高性能混凝土》GB/T 31387-2025等规范为材料质量提供了可靠保证。未来,我们可以期待更多创新应用,从智能调温UHPC到集成光电系统的发光UHPC,进一步拓展室内设计的边界。
对室内设计师而言,掌握UHPC意味着掌握了塑造未来空间的钥匙——它不仅改变着我们创作的元素,更改变着空间本身的语言。
好了,本期的dop干货就到这儿,如有帮助,评论区扣“日拱一卒”,支持一下dop~


