2026年墙面材料,不要只用乳胶漆了!!

墙面装饰材料是室内设计中的重要元素,不仅构成了空间的背景和基调,更是体现设计风格与品质的关键。随着材料技术的不断发展,室内设计师可选择的面越来越广泛。
本文将依据由基础到特殊的顺序,系统分析乳胶漆、壁纸(壁布)、木饰面、瓷砖、石材、软/硬包、PU墙板、不锈钢蜂窝板、艺术玻璃、陶瓷薄板等常用墙面材料要点,为你提供可靠的墙面材料选择。
1、乳胶漆墙面

乳胶漆是以合成树脂乳液为基料,加入颜料、填料及各种助剂配制而成的一类水性涂料,亦称为合成树脂乳液涂料。
具体施工工艺:
施工准备→基层处理→涂刷界面剂→裂缝处理→找平处理→基层防开裂处理→刮2~3遍腻子,打磨→1遍底漆→找补打磨→两遍面漆→清洁养护



2、壁纸(壁布)墙面

壁纸和壁纸统称为墙面装饰织物,是我们最为广泛的墙面装饰材料之一。它们以多变的图案、丰富的色泽和独特的柔软质地产生的特殊效果,能够柔化空间、美化环境。
具体施工工艺:
施工准备→基层处理→滚刷基膜→墙纸(墙布)裁剪→调制胶剂→涂抹胶剂→墙纸(墙布)铺贴→收边裁边→修整清洁→验收养护



3、木饰面墙面

木饰面是通过将木皮与基层板合成的人造板材,可以拼接装饰整个空间墙面,也可做背景墙的局部装饰。木饰面自带温润质感,表面自然肌理感强,有利于营造出温馨舒适的居住氛围。
常用干挂式施工工艺:
施工准备→基层处理→弹线定位→安装轻钢龙骨框架→安装基层板→安装挂条→安装木饰面板→清洁养护



4、瓷砖墙面

瓷砖是以耐火的金属氧化物及半金属氧化物为原料,经过研磨、混合、压制、施釉、烧结等过程形成的耐酸碱建筑装饰材料。其原料多由粘土、石英砂等混合而成。
常用湿贴式施工工艺:
施工准备→基层处理→选砖浸砖→配制搅拌瓷砖粘结剂→墙面批刮粘结剂→粘贴瓷砖→勾缝清理



5、石材墙面

石材墙面,特别是大理石,能赋予空间天然奢华的质感。大理石是一种变质岩,由石灰岩或白云岩在地壳深处经高温高压作用重结晶形成,主要成分为碳酸钙。

常用干挂式施工工艺:
施工准备→弹线定位→埋板安装→安装轻钢龙骨框架→安装挂件→石材开槽切割→安装石材→嵌缝处理→清洁养护



6、软/硬包墙面
软包和硬包是提升空间质感和舒适度的墙面装饰方式。

软包:由基层板、填充海绵(或其它柔软材料)和面料(布艺、皮革等)三部分组成,触感柔软,具有优异的吸声、保温和防撞功能。

硬包:吸声、防霉、阻燃等功能性面料,进一步扩大了其应用范围。设计时需考虑图案拼接、缝线设计等细节,这些元素显著影响最终效果。
具体施工工艺:
施工准备→测量、弹线→安装基层龙骨→龙骨验收→安装基层夹板→制作软/硬包板→安装、粘贴软/硬包板


除了以上最常用的一些材料墙面外,在实际工程中以下材料的墙面也广泛应用,我们一起来简单了解一下。
7、PU墙板墙面

PU墙板是以高分子聚氨酯为原料制成的装饰线条或板材,质地轻盈,可塑性强,能复刻石膏、木材的复杂造型,且防潮防蛀,安装简便。适用于需要欧式、法式等复杂线条造型但担心重量的场合。


8、不锈钢蜂窝板墙面

采用不锈钢面板与铝蜂窝芯复合而成,具有强度高、平整度极佳、防火防潮的特点。表面可做镜面、拉丝、镀钛、喷砂等多种处理。安装多采用干挂系统,适合用于现代、科技感的商业空间或家居点缀。



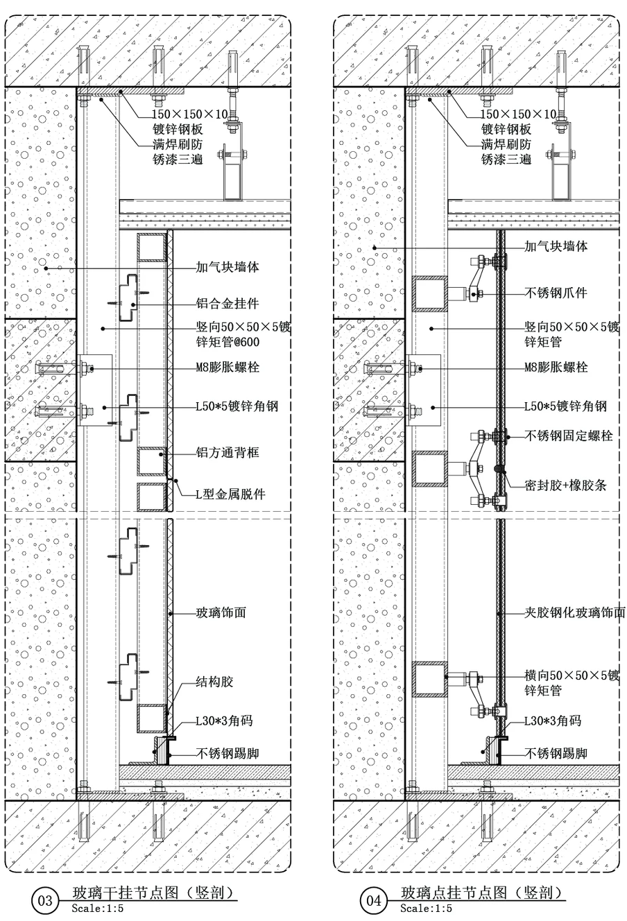
9、艺术玻璃墙面
包括烤漆玻璃、镶嵌玻璃、雕刻玻璃、UV打印玻璃等,能为空间带来现代感、通透感。具有透光、易清洁的特点。安装需确保基层平整,大面积使用需采用钢化安全玻璃。常用于背景墙、空间隔断,能有效扩大视觉空间。



10、陶瓷薄板墙面
一种新型瓷质材料,由天然原料经万吨级压机压制和高温烧结而成,厚度薄、规格大,可实现少缝或无缝效果。具有防火防水、耐酸碱、耐磨刮、环保等优异性能。
安装需用专用粘结剂,对基层平整度要求高。适用于室内外多种空间,尤其适合追求连续、统一界面效果的设计。


最后:
每种墙面材料都有其独特的纹理效果,现代设计趋势更注重多种材料的组合创新,通过质感的对比与衔接,创造丰富的视觉层次和空间体验。
好了,本期的dop干货就到这儿,如有帮助,评论区扣“日拱一卒”,支持一下dop~

