报价从明确工作范围开始(确定工作范围)

△项目:云山奢酒店 摄影:Pan Jie, zystudio
你好,我是疆莱,欢迎来到《项目流程管控》课程。
这个课程一共分为3个阶段(项目的前期筹备、中期执行、后期服务)。这一讲,是前期筹备阶段中的第一部分内容,确定你的设计范围。
我的一个设计师朋友老王(请大家记住他,后面他会一直陪伴在我们的学习过程中)接了个餐厅项目,甲方了解了一下他的过往案例后让他报个价格。老王根据公司之前的类似项目经验,给了甲方一份报价,甲方对比了一下发现价格可以接受,没过多久双方就签订了合同。
过了几天老王去给甲方汇报方案,甲方发现居然没有厨房的方案。于是老王跟甲方解释:因为厨房的方案是需要由厨房专业的设计师进行设计,所以厨房的设计并不在设计范围之内。

△红色:厨房区域 蓝色:实际设计范围
对于甲方来说完全无法理解,在甲方看来,说好的设计费就应该包含餐厅的所有设计,怎么又冒出来一个厨房设计,这种情况下你觉的项目还能愉快的进行下去吗?
就好比你买了一份保险,当患病了去找保险公司报销时,对方却说你所患的病并不在我们的保险范围内,你会不会有一种被骗了的感觉?
没错当老王的甲方遇到厨房不包括在设计范围内的时候,业主也会感觉被骗了,那这个问题到底怪谁?
一定是设计师,因为设计师作为更专业的一方:有义务把设计范围和非设计范围明确的告知甲方,而不是默认他知道,这样才能让大家的信息同频,减少不必要的误会。
可能有人会说,我们做的项目甲方都会提供设计范围说明的,按他给的范围报价就好了。
如果甲方已经提供了设计范围的参考,对于设计方来说要做的就是复核工作:第一,复核设计范围是否全面,有没有遗漏。第二,复核设计范围有没有含糊不清的边界。
下面我们一起来看一下这个案例,这是一个博物馆项目的一层和二层。

△一层

△二层
甲方在项目初期只提供了这样的两张建筑平面图,并提供了一份项目任务书。在项目任务书当中对于设计范围只提供了文字描述,例如:设计范围为一层与二层的会议室、报告厅、过道、卫生间、大堂、连廊......
请问这种情况下,应该怎样来确定设计范围?如何报价?如果因为设计范围的不准确,导致设计报价的损失,又由谁来承担这个责任?
实际的情况是,我们在和甲方沟通后发现,甲方自己对于整个设计范围也是模糊不清。
我们只能帮他一起进行梳理,通过多次沟通大家最终才达成了一个共识,确定了哪些是精装的设计范围、哪些是专业分包的设计范围、哪些是建筑的设计范围,准确的边界到底在哪里。
经过这一轮的沟通,甲方对整个项目的情况有了更加深入的了解,也让我们的设计报价更加的精准,同时我们的专业程度也得到了甲方的认可。

△一层

△一层

到底什么是设计范围?
说了那么多,那到底什么是设计范围?其实这里所说的设计范围特指室内设计所覆盖的平面面积,不管是方案设计的取费也好,还是施工图设计的工作量计算也好,一般都是以这个面积作为取费的标准。
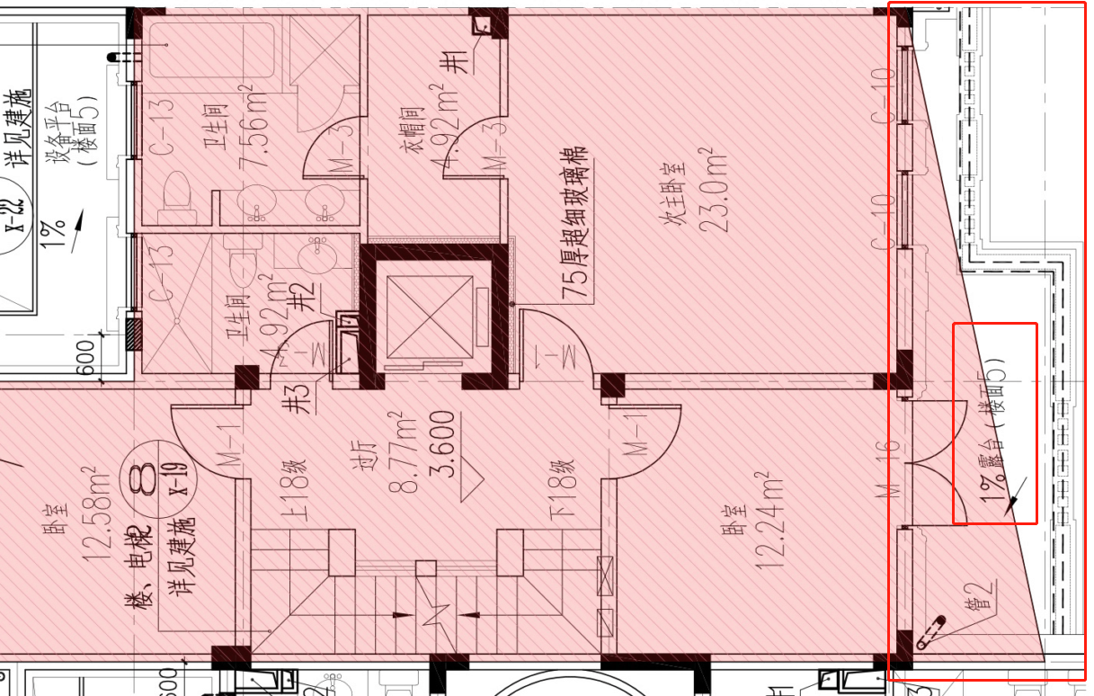
比如下面这张图,它是一套住宅项目的二楼,当中红色阴影部分就是我们所说的设计范围。这种表现形式,普遍被用于和甲方方确认项目的设计范围中。

有人可能会有所疑问,为什么这个边界不是把所有的二层平面都覆盖在内呢?为什么不能往里或者往外一些?这个设计范围的边界标准到底是什么?
在回答这些问题之前我们需要先了解一下行业背景,国家对于建筑面积的计算和边界是有比较明确的规定,但对于室内设计来说,这些国家规定只起到一定的指导作用,并不完全适用。
由于地区或项目类型的不同,设计范围边界的标准界定,并没有一个明确的规定,它更像是一种约定俗成的行规,了解完这一点以后,我们再来回答上面的问题。

首先,我们可以看到左上方的位置,建筑图标明的是设备平台,它本身不需要进行设计,所以不属于我们室内的设计范围,这一点应该比较好理解。

其次,右侧的阳台为什么不全部包含在内呢?根据标准来说,阳台由于是半封闭空间,所以只计算一半的设计范围。如果阳台做成全封闭空间,则会被全部计算进设计范围内。
最后,如果你看的比较仔细,会发现红色区域的边界线刚好是在墙体的中间,这也是根据大多数设计公司所遵循的行规来确定的。
那是不是知道了设计范围,就可以计算出工作量给出相应的报价了呢?
如果你所做的项目只是住宅项目,那么了解设计范围的大小已经就够了。
但如果你做的是商业项目,只了解设计范围的大小还不够,你还需要知道设计范围中有什么不同,该怎么区分。
下面就让我们一起来了解一下设计范围的划分形式。

设计范围的划分
在具体讲设计范围的划分形式前,我先给你讲一个案例。

老王又问我了,一个精品酒店的施工图项目,3000㎡左右应该收多少钱。
我想了一下说,光知道一个大概面积这个价格没办法报。他无法理解,说这有什么报不了的,你们公司酒店设计费收多少钱一个平方告诉我不就好了!
顿时我也有一些无语,我想了一下我告诉他:酒店项目如果是按单平方米均价,乘以面积来计算并不合理。所以我们一般在计算酒店项目的时候,对于不同的设计区域会收取不同的费用。
比如:按照dop的报价要求,所有的精装区是一个取费标准,非精装区域是另一个取费标准。
同时精装区又分为公共区域和客房区域,收费标准也不一样。如果你只提供给我一个酒店的大概面积,我无法划分这些区域的大小又怎么给你报价呢?
他听我说完以后感觉更有点蒙!不就是一个报价吗,你们怎么搞的这么麻烦,给一个平均价格不是挺好的么。
可能很多设计师也都会这么认为,但实际上这种报价方式过于简单粗暴,也缺乏说服力。因为不同区域的工作量完全不同,相应所投入的人员和时间也不一样。一份合理的报价中应该体现出这之间的区别,而不是简单的将全部设计范围混在一起。
假设我们共同竞标这个项目,甲方看到了报价他会怎么选?单从报价的角度来考虑,甲方一定会选我,因为我的报价是有依据的,对于甲方来说更有说服力。
有人会觉的我平时做的项目也就是个样板间、售楼处、小办公或者小餐饮什么的,我们都是按面积算均价,甲方也都认同,还有必要了解这些吗?
首先,这些项目本身不管体量的大小,只要是商业项目都会涉及到不同设计范围的划分,同时精细化的思考对你后续的工作安排也会有所受益。
其次,机会往往是留给有准备的人,平时常用正规的思考方式训练自己,一旦有机会接触更优质的项目你才会比别人更有竞争力。
那么设计范围到底应该怎么划分呢?
常见的设计范围划分形式有2种:一种是按精装区与非精装区进行划分的,另外一种是按标准户型与非标准户型进行划分的。
1、精装区(前场)与非精装区(后场)
精装区与非精装区是根据装修程度的差异来进行划分设计范围的一种形式。
比如餐厅项目当中的前台、包间和卫生间都属于精装区(前场),我们可以简单的理解为客人可以到达的区域。而仓库和厨房则属于非精装区(后场),可以简单的理解为客人不能到达的区域。
再比如酒店项目中的大堂、客房、电梯厅这些都属于精装区,而办公室、员工更衣室、布草间等区域则属于非精装区。

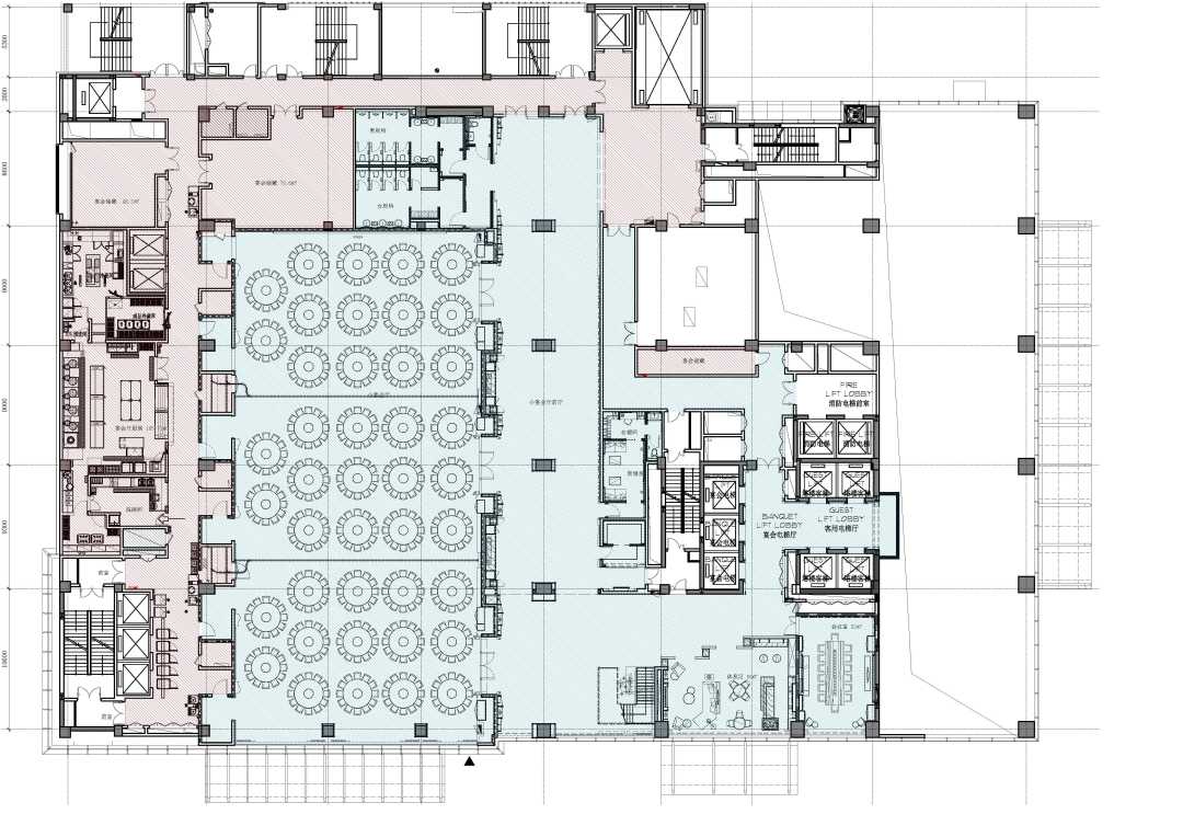
以这张酒店宴会厅图纸为例,图中被红色和蓝色阴影覆盖的部分就是我们的设计范围,在这个设计范围当中蓝色阴影覆盖的部分就是精装区(前场),也就是客人可以到达的区域。
而红色阴影覆盖的部分就是非精装区(后场),比如这里的储藏室、上菜通道、厨房等空间。
对于设计方而言,精装区与非精装区的划分形式有2方面的意义。
a、首先,是设计报价上的区别,以酒店为例:酒店的前场施工图报价往往是后场的3-4倍。
b、其次,可以很好的解决设计精力的投入问题。比如一个项目的设计周期比较赶,设计方就可以先将全部的精力放在精装区的设计上,而非精装区可以放缓或滞后。
2、标准户型与非标准户型
a、标准户型,是指一个项目中数量最多,并且平面布局和标准一致的户型,我们平时工作当中的酒店标准客房和住宅精装房的标准房型都属于这个范畴。
对于标准户型来说,只要完成一套标准户型的设计,其余相同户型就可以完全复制,大大降低了设计方的工作量,提高了整体的工作效率。
b、与标准户型存在差异的户型,我们称为非标准户型。
非标准户型的不同主要体现在建筑结构、平面布局和方案设计的各各方面。
对于非标准户型来说,需要判定的是它与标准户型的差异到底有多少?差异越大收取的费用也会相应越高。

我们以上图为例,这张图是一个酒店项目客房层的平面图,图中一共有21套房间,红色覆盖的A户型算是一个标准户型,蓝色覆盖的B户型算是另外一个标准户型,黄色覆盖的C户型算是第三个标准户型,而剩下的11套房间就是我们所说的非标准户型。
在计算设计范围的时候,虽然A户型一共有五套,可我们只按一套计算,B户型和C户型也同样如此。因为同样的户型我们只会出一套方案和一套图纸,你的工作量也只计算一次。
当然一套标准户型的报价也比平米均价高出很多,因为它还能套用在和它一样的房型中,这种计算方式对于业主来说才更有说服力。
如果你接触过大型的酒店或办公项目,会发现除了标准户型和非标准户型以外,还会延伸出另外⼀种划分形式,标准层与⾮标准层。划分原则与标准户型和⾮标准户⼀致,唯⼀的区别在于一个单位是「户型」,一个单位是「层」。
那么划分标准户型与非标准户型的意义是什么呢?对设计师来说最大的意义在于,能够客观判断图纸实际工作量,从而准确指导我们的设计报价。
设计范围的划分,其本质在于根据不同的设计投入,将不同区域进行分类,从而根据不同的工作量设定不同的取费标准。
那在平时工作当中,我们应该怎样和甲方确定设计范围呢?

怎样来确定设计范围
在与甲方确定设计范围的时候一般有2种情况:具备确定条件和没有图纸不具备确定条件。
1、具备确定条件
确定设计范围的条件具备,比如业主已经有相应的平面图纸,并且平面不会做太大的变动。这种情况的设计范围的确定如下:
a、第一步,确定项目中的设计范围
在平面图中将项目的设计范围圈定出来。

b、第二步,对不同的设计范围进行划分
根据之前所讲的设计范围划分形式,将不同的设计范围用颜色或图案进行区分并计算面积。

c、第三步,将设计范围图交由设计主管确认
对于设计范围的判断远比我们想的要复杂,尤其是没有相关项目经验的时候,经常会被业主套路。
比如项目前期设计范围比较小,后期由于建筑的改动会慢慢增加设计范围,如果合同当中没有进行说明,后期的工作会很被动,而且这种问题的风险等级也比较高,所以最终的设计范围必须由公司的技术主管进行核实确认。
d、第四步,最终的设计范围图必须作为合同附件提交给业主
无论是什么项目,最终的设计范围最好是以图纸的形式出现(可参考我们课程当中所展示的所有平面图案例),然后作为报价或合同的附件一起提供给业主。
因为设计方单方面划定设计范围,对于业主是没有任何的约束力,如果在这方面产生纠纷,对设计方非常不利。
2、没有图纸不具备确定条件
我们会碰到业主说目前没有图纸,只有一个项目的大概面积,但是急要报价。
遇到这种情况,我们可以在上面4步之前添加一个步骤:先与业主确定不同设计范围的单价。
比如,可以先将精装区和非精装区的单价报给业主,具体设计范围可以根据后续资料的补充进行完善,同时在合同当中对这种情况加以说明,最终报价以实际设计面积为准。

好了,今天的内容就先到这。这一讲,我们讲解了项目前期阶段,项目分析部分的第一块内容「设计范围」。
下一讲,我们将继续讲解项目前期阶段,项目分析部分的第二块的内容,设计中的工作内容。

最用,用一张导图来总结一下今天的内容:

-END-

