真的要被逼疯了,卫生间台盆设计成这样,怎么绘制?怎么施工?

时代在进步,社会在发展,现如今卫生间都改头换面,不光颜值爆表,连造型都一个赛一个的别致。但有人欢喜有人愁,对于设计师来说,有趣的造型别致的设计都是精心设计出来的,设计出来了要能做出来才行。那么,如上图所示的异形卫生间台盆,到底要如何绘制怎样施工落地呢?
今天,我们就通过具体案例来讲解异形台盆在图纸中到底该如何表现绘制。本文主要解决以下问题:
1、面对复杂的室内装饰构件,我们应该如何分析其图纸的构成?
2、如何去分析商场卫生间台盆需要的功能需求?
3、如何画出异形台盆柜的施工图?方法是什么?
01.
施工图
绘制分析
在开始绘制施工图之前,应当先对绘制的对象进行分析;比如:对象由哪些构件组成?应当满足哪些功能性需求?使用的材料是什么?是最优的吗?结构稳定吗?是否存在安全隐患?
1、造型分析
从图中可以看出,台盆由三部分组成:悬空镜柜、异形台盆柜、碗盆(洗手台)
2、功能分析
除了常规功能洗漱、照镜理容功能外,抽纸盒、皂液器、垃圾篓是设置在哪个位置
3、材质分析
古铜金属管、银镜、镜柜旁的LED灯带、大理石台面
4、结构分析
从图中可以看出,台盆深挖安装固定是比较大的问题,其难点在于镜柜的固定、台盆的单点固定以及检修问题?
a、采用一根方管顶天立地的贯穿固定:金属管会做到天花之上的结构楼板,要考虑这样做镜柜是否会旋转变形;
b、台盆内采用钢架支撑:完整固定台面要考虑台盆底部受力,也就是台盆柜的结构支撑,需要测算底部受力面积;

△内部结构分析
c、检修:若抽纸盒、皂液器是嵌在镜柜中,就需要考虑检修,除了整个镜柜的检修还要考虑LED灯带的检修;另外台盆柜中有垃圾篓,还需在隐蔽处预留检修口。
02.
异形台盆
施工图绘制
异形台盆的结构、功能分析清楚后,最终的落地施工还需要进行施工图纸的绘制,以确保构思能够实现。接下来从制图逻辑出发,一步一步的进行讲解。
1、对异形台面进行定位,图纸施工放样
异形台盆一般都是现场制作的,不是厂家直接加工好的,所以需要详细的施工图纸。可以运用「网格法」来定位异形台面的弧形尺寸、位置,以此来实现异形图纸的绘制(100*100网格)。定位数量越多,台盆形体定位越精准。
2、台盆柜平面定位

△台盆柜平面定位图
平面图功能部分表达:碗盆、抽纸盒、皂液器,图示意为抽纸盒与皂液器是嵌入式
3、台盆柜触底面定位

△台盆柜触底面定位图
第一条虚线表示台面下方暗藏灯带,第二条内圈虚线表示金属与石材交界线,根据台面外围尺寸往里偏移100mm即可;
具体台面触底部位同样是根据100*100网格来进行定位;图中还确定了中心位置,也就是与镜柜相连的中心柱的具体位置;以及废纸篓的位置,是在面层开孔嵌入台盆,开孔大小是根据废纸篓的选型来定。
4、台盆柜内部结构

△台盆柜内部结构示意图
图中内部结构是大概的绘制,在现场施工时还需施工方进行二次深化,才能清楚地表达内部结构,以确保可落地实施。但在前期图纸中一定要表达清楚所用材质及施工规格。
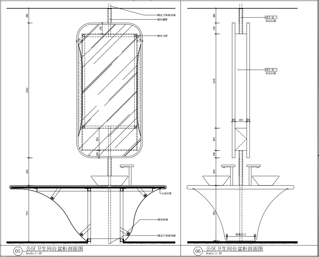
5、立面、剖面图

△台盆柜立面图
立面部分表达出整个镜柜的造型。需要注意的是:与镜柜相连的中心柱尺寸不能过窄,若不确定尺寸可稍微加宽,并咨询专业的结构承重分析。内嵌的抽纸盒与皂液器用虚线表示。
并用立面剖面图表示清楚整个台盆的内部结构,镜柜的结构支撑一定要考虑清楚。

△台盆柜剖面图

