一面是科技,另一面是艺术,玻璃的黑科技了解下?


导读 :
一面是科技,另一面是艺术,同时具备天然石材瑰丽的纹理和玻璃剔透的表现效果,让玻璃变得如玉石般华丽,玉石如玻璃般晶莹。
本期我想跟你聊聊这「石材界的黑科技」的设计应用以及施工解决方案。
正文:
在大阪府大阪市中央区心,由路易威登j集团的服装店和办公室组成的复合大楼,喧嚣中,放了一个“闪亮的石头箱子”。
而且这个闪光的盒子还和其它建筑不太一样
我们通常想到的建筑的设计是各种各样的两项对立的组合,例如墙壁对窗,透明对对开,商业华丽的法三与办公室的坚固的立面等。
但是,在这个计划中,来自日本的建筑师 Yoshio Taniguchi设计师解除了两项矛盾,并向城市提出了“连续的光谱”的概念。
为此他们准备了3种微妙不同的“透光石头”
通过将厚度为4mm、7.5mm、30mm的3种组合进行设计,从两边用两片玻璃夹住巴斯干产的绿色奥尼克斯的4mm石头,将图案转印在薄膜上的7.5mm厚石头上,看起来像极了两块玻璃做的三明治石榴石。
就像下图这样:
3种“透光之石”,乍一看是同一材质的样子,但是它们的表面可以根据夜晚和白天,光的方式改变表情,逐渐转换为抽象的透明的材料连续过程,表现出了令人惊讶的视觉效果。
而远在德国的一个项目也用到了此类材料:
2012年9月落成的图书馆位于德国最大的综合性音乐大学—福克艺术大学,Max Dudlerde 的建筑语言高度统一,板正且整体,让部分人会觉得 十足“硬”派。
但是在这个规整的音乐学院图书馆中,那可以将光线轻柔过滤的半透明表皮,却将建筑变得温柔起来。
外立面设计与摄影师Stefan Müller合作,每一片玻璃的纹样都通过特殊的技术,真实的还原了摄影师拍摄的采石材石块样式,这使得建筑表皮几乎和石材一模一样。
完全光滑的半透明表皮仿佛不经意的打破了室内外的界限,并柔和的过滤光线,在白天使
得图书馆有充足的光线,夜幕降临便照亮院子。
钢筋混凝土结构。竖框横梁系统,樱桃木内墙装饰。并非所有的柱子沉重,有的柱子
内部设置是暖通管道。
图书馆的家具譬如桌子,椅子,货架等,也由Max Dudler设计。
这里使用的“光线轻柔透明的建筑表皮”材料正是本期我们的主角——「热熔复合石材玻璃」。
热熔复合石材玻璃:
这种华丽的玉石玻璃的学名叫热熔复合石材玻璃,是采用高分子中间层材料,通过高温高压的加工方式将3-5mm石材薄片与玻璃夹胶而成的新型产品。
它同时具备强度大、耐候性能优异、抗紫外线、保持石材的天然纹理等特点,配合不同的灯光设计,可以产生非常独特的光影效果,这是其它材料难以表现的一点。
↑ 纹样漂亮的一层单面的石材薄片与玻璃夹胶紧密的贴合在一起;
↑ 双面的玻璃,同夹心饼干一样夹住中间的天然石材;
因为热融玻璃在成型时色彩及花纹的变化灵活,用大理石的华美、沉稳与热融玻璃精致、亮丽结合,使得产品的变化更趋多样性。
↑ 原产品系列增加了层次感和金属质感的光影效果。
↑ 将丝布的纹理同石材与玻璃神奇的结合在一起
接下来,我们来了解它的材料适用场合以及独有的材料特性。
材料主要性能:
1、独特的表现性,既保留了天然石材本身原有的纹理和质感,又增加了光线照射下的石材纹理显示效果。
2.、具有强大的阻挡紫外线功能,防止室内炫光现象。
3.、采用耐高温的高分子材料作为中间层,大大提高了大理石和玉石的使用范围,可以放心使用在建筑幕墙上。
4.、最大规格可达1200*2800mm,提高整体装饰效果。
5.可以使用在建筑外幕墙,室外景观和墙体、隔断、吧台、吊顶、发光地面等部位。
看完了这么漂亮的玻璃夹石材的“透光石头”,从施工落地上它的安装工艺又是怎么实现的呢?
安装实现:
其实“热熔复合石材玻璃”的安装方式基本与普通玻璃一致,铺贴的夹胶玻璃可以采用点式安装、明框外包式安装和隐框式安装,那么这种新型材料同样可以。
不过需要注意的一点是如果采用LED灯光配合照明,其光源距离玻璃夹胶石材产品的距离不宜小于300mm,并需保留电源的维修和更换的空间。
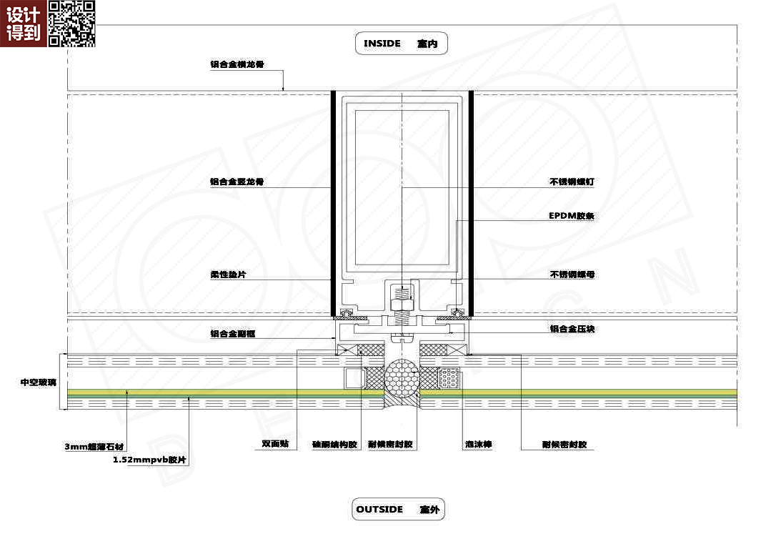
去年的网红项目——「苏州中心8号公寓」的幕墙外立面就是使用的这种新型材料,采用的配置为10mm钢化玻璃+1.52PVB+5mm玉石+1.52PVB+10mm钢化玻璃。
典型的明框式安装,内部通过钢索链接的框架将玻璃玉石固定,整体受力更均匀,内置LED灯带,夜景下的视觉效果分成漂亮。
它的安装节点可以参照下面:
如果你对石材的应用感兴趣;
或者在寻找靠谱的石材品牌;
欢迎联系我
一起探讨关于石材的相关知识:
宋晓杰个人二维码 ↑
dop寄语
欢迎把本期内容推荐给身边的朋友,只有当更多的人知道我们后,才会有更多高手愿意参与进来给大家提供更好的知识服务。愿我们一路前行;



















