简单四步教你画出门表图!

关键词:软知识# 通识# 门表图#
本期我们要解决的问题是:
不知道门表图是由哪些项目构成的,
怎么办?
不知道门表图的绘制流程,
怎么办?
不知道门表审图时的那些坑,
怎么办?
写在前面:
我们在每天的文章后面都会留下一道思考题,很多积极参与的朋友都会把解题过程中碰到的问题留在打卡区;
在此,我们强烈建议,大家可以把习题的答案写在打卡区,如果是单纯的提问,请大家在留言区提,这样方便我们周五的时候统计,避免遗漏大家的问题。
门表是什么表?
谈到门表图,很多设计师并不陌生,但是又不是那么熟悉,有的新人甚至认为门表就仅仅只是excel上的编号信息或者绘制的节点装饰门节点,因此;今天咱们就来扒一扒门表图。
1、门表图是对一个项目中存在的成品门进行统计与统一管理的图表;
2、门表图中需要统计的门的类型,包含但不限于:标准空间装饰成品门,特殊空间装饰成品门,防火门,管井门等等。

厂家深化图↑
5、在设计项目正式开始大面积施工后,相关的成品门生产厂家会直接根据施工蓝图上所列的门表图,进行成品门的深化以及生产,以防火门的管理为例,厂家会根据施工图的门表出具如上图所示的深化图;

6、现在国内大部分中大型设计项目都是使用厂家定制生产成品门进行装饰,很少会出现现场木工自己动手做门的情况了。(最不济也是在商店购买成品门进行装饰)
门表解析
在国内的设计项目中,不同公司有不同的规范制度以及说明方式,但是如果我们回归门表的本质,即:门表是方便对设计空间中的成品门进行统一管理的表格;那么为了达到统一管理的目的,一套可用于施工的门表图必须包含以下三个板块:

由此可见,门表的构成比较复杂,下面我们先理清门表的底层逻辑,再看看门表的标准图纸;
1、门的说明板块
简而言之,门的说明板块就是对门的详细信息进行说明,让各专业配合人员,拿到这张表,就能马上理解这个门的所有关键信息,并能一一对应上平面图上的门表编号。
在一套标准的门表图中,门的说明板块必须要包括如下要素:

标准参考图如下:

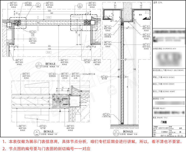
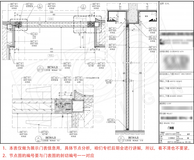
2、门的图纸板块
光有门的说明了还不够,上文已经提到了,门的生产厂家会直接拿着门表图来进行生产,那么生产厂家会要求设计师给他们出具相应图纸,他们在这个图纸的基础上再一次进行深化。因此,门表图的第二个板块“图纸板块”就这样诞生了。
门的图纸板块主要包含下列因素:

标准参考图如下:


注:设计师出具的门表图纸板块侧重点在于表达门与周边材料的收口关系以及尺度大小等,厂家是基于这个图纸的预留尺度和收口关系进行二次深化的。
3、五金配置板块:
经过前面的两大板块的梳理,基本上可以满足门厂家的生产要求了,但是还有一个问题,成品门总应该有五金配件吧,每种门的五金配置都不相同,我们应该怎么在门表上表达?
如果在每张图纸上都画上五金配件,是可以解决这个问题,但是这样的话是不是增加了无意义的工作量?(因为厂家还会根据我们的图纸深化),而且,如果后期门的五金配件有所调整,那修改起来也会很麻烦;
因此,为了解决这个问题,门表的第三个板块诞生了。如下图所示:


有了上面提到的三大板块,一套合格的门表就诞生了;




现在是不是感觉门表其实也没有想象中的那么难以理解?
四步绘制门表图
理解了门表的构成,你可能会有个疑问:不同部位,不同形式,不同类型的门都有不同的五金配置,而且每个厂家的五金配件都不一样,种类又那么多,我应该怎么搭配呀?
其实这个问题你在绘制门表图时完全不用担心。
第一是因为咱们专栏后期会详细的讲到五金配件与门的关系,
第二是因为门表里面的五金配置,通常情况下,都是由厂家来帮忙搭配的,设计师只需要在示意图上预留好五金构件的位置就可以了。
聊到这里,就必须要对门表图的绘制过程以及界面划分来进行一次详细说明,让你彻底理解在平时的门表绘制工作中,你应该怎么做才能更高效的完成工作。我称这套方法论为:“四步门表法”

第一步:平面编号:

1、在开始正式绘制门表前,我们应该在平面图纸上对要通过门表管理的门进行统一的编号;
2、编号原则是:同一种类型的门,编号应当相同,不同类型的门,编号不同,切勿搞混淆。
3、编号时,千万要细心,严格按照一定的逻辑(如:顺时针,逆时针,z字型等)排布,如果遗漏了某一扇门,那么势必会对后面的造价合同造成影响。
第二步:门表梳理:
1、在平面图上把所有的门编号编完后,就需要对门编号进行梳理。把同一种门的数量,位置,规格尺寸等等信息全部统一汇总起来,编绘成上面提到的门的说明这个板块。
2、这里推荐一个快速梳理的方法:可以把编完号的平面图打印出来,然后直接用笔圈注,然后根据圈好的图纸进行编绘,这样做的效率会比在电子版上梳理高很多。
第三步:节点绘制:
1、门表的说明板块完成了,接下来就是对门表进行统一的立面图和节点图绘制,迅速把门表的第二个板块完成。
第四步:五金配置
怎么管控?
在门表图的绘制过程和审核过程中,最常会出现下列问题:(深化设计师和现场施工人员应重点留意)
1、门的规格尺寸与门洞或装饰尺寸冲突;如:门表上门扇的尺寸为2100mm高,结果图纸上的门洞就只有2100mm高,门表上门套宽50mm,立面图上的门宽宽30mm等等。
2、门表图的五金配置不合理;如:玻璃门搭配了木门的闭门器;原锁具型号配有门把手,结果门表上多了个把手;需要配置自动插销的门,配成了手动插销等等问题。
3、门的数量与使用部位对不上号:如:17层客房区域总共用17樘平开门,结果门表上只填写了15樘等。
因此,在对门表的管控与审核或者成品门下单时,我们重点应该排查这些内容:
1、 门表的格式是否完善:该包括的三大板块内容是否全都包括在内,有否遗漏必要信息?
2、 门的数量、表示编号与使用位置是否与施工平面图一一对应,有无冲突?
3、 规格尺寸,样式选择、饰面材料是否与施工图纸一一对应,有无冲突?
4、 门的节点图和立面图是否表示清楚,必要尺寸是否标注齐全。
今日得到:
1、门表图是对一个项目中存在的成品门进行统计与统一管理的表格,也是一套完整的施工蓝图中必须具备的一张图。
2、通常情况下,一份标准的门表图主要由门的说明、门的图纸和五金配置表,三大板块构成,缺一不可。
3、设计师对于门表的管控主要体现在严格检查它的三大板块之间有无遗漏,以及每个板块的信息是否与施工图或者五金配置表冲突。
一张图回顾要点:

今日练习
请结合自己的经验,谈谈你过去是怎么理解门表的?通过今天的学习后,对于门表有了那些新的看法?为什么?
咱们打卡区见。
下期预告
最让设计师头疼的门表以及物料表咱们聊完了,下期一起来聊聊洁具档案和电器档案是什么?长什么样?,应该注意什么?
- 今天是dop陪你成长的第22天
和我们一起,每天5分钟,解决一个设计问题







