dop设计丨精装商业项目:越界3.0二期、锦和尚城T9公寓

dop设计(ID:dopdesign)原创
作者丨dop设计
编辑丨丽子
深化设计作为建筑装饰行业专业化分工的关键环节,承载着整合施工可行性、工艺技术转化及美学落地实施的核心价值。
在建筑装饰行业精细化发展的当下,上海大朴室内设计有限公司(dop设计)依托14年的技术沉淀,通过过硬的专业技术实现设计创意精准落地,让空间美学在毫米级工艺精度中彰显匠心温度。

我们始终坚信,深化设计是以技术理性守护艺术理想的专业实践。dop设计致力于构建"技术+艺术"的标准化体系,让每一个构造节点都成为传递人文温度的载体。
01. 项目概况及亮点
www.shejidedao.com丨联系VX:dop024 回复“公众号”加群
1、项目概况
越界3.0二期项目位于上海市徐汇漕河泾开发区,是集“办公、创意、休闲”三大功能于一体的城市更新代表性建筑集群。
设计打破传统办公概念,基于未来发展趋势,将办公与公园相结合,打造出休闲、商业、社区无缝连接的花园式办公园区。

source:baidu.com

source:baidu.com

source:baidu.com
设计引入Office Park概念,基于未来发展趋势,将共享办公空间、商业街区与开放的花园等结合,营造出利于工作、生活的健康环境。

source:baidu.com
而本项目主要设计范围为T4-T8商业办公精装区域及T9公寓,项目面积总计约18905.15㎡;其中T9公寓主要包含地下一层电梯厅、一层大堂、接待、会议,二至十层的公寓客房等。

source:baidu.com

source:baidu.com
设计探寻了“探索与发现、相交与相织、剪切与折叠”的方法,将“剪切和折叠|隐藏和展现”的设计理念贯穿整个室内部分,为T9公寓设计提供一个整体的设计解决方案。

使用剪切与折叠的设计语言对室内空间进行分层设计,旨在创造一种鼓励社会互动和成长的空间体验,同时尊重安静、独立的孵化需求。该空间被设计成一种鼓励在繁华疯狂的上海大都市环境中孵化和成长的公共精神。




作为深化设计方,上海大朴室内设计(dop设计)的任务很明确:让设计团队的创意方案完美落地。
2、项目亮点
设计通过切分折叠的方式,打造出雕塑般的阳台和阶梯露台空间,为办公室打造出社交中心,而访客可以在立体多层的通廊中,体验各类活动。

source:baidu.com

source:baidu.com
将低层办公塔楼的会议室打造成为悬浮于玻璃中庭的盒子,容纳共享办公设施和会议设备,形成相互联系的办公空间。

source:baidu.com

source:baidu.com
室内空间选择不同质感及肌理的材料做碰撞、融合,将不同功能或空间通过材料的变化而形成区域的自然分割或过度。通过"和而不同"的处理手法,让每种材质都成为空间叙事链的有机环节。

如T9公寓首层的地面材料,大堂采用大理石;休息区大面积采用木地板,局部休息区卡座采用大理石;用餐区/会议室地面采用广场砖。
在一个完整的开敞空间中将多材料通过统一色温、相似肌理呼应等设计方法建立隐形关联而形成空间的平横及和谐。





客房区延续首层设计风格,实现空间叙事连贯性。提取大堂主色调作为客房基础色系,客房卫生间的石材地面与卧室区的木地板的材料延续,都实现了色彩和肌理的跨空间对话,从而实现了风格的体系化延伸。




而这细节效果的精准呈现,与背后的施工图深化团队的专业能力密不可分。
02. dop设计在项目中的价值
www.shejidedao.com丨联系VX:dop024 回复“公众号”加群
dop设计团队负责从概念方案到实际施工,这中间需要经历无数细节的转化与衔接。这正是我们深化设计存在的意义。dop设计深化团队,在酒店、商业、办公空间领域深耕十余年。



我们深知:深化设计在项目中必须扮演着"创意翻译官"与"工程护航者"的双重角色。



将创意方案转化为可施工的精准图纸,将概念方案转化为可量化的施工节点图,并解决图纸与现场差异、成本控制与效益优化等各方问题。


作为从业14年的深化团队,我们最深的体会是:项目品质的终极较量不在于概念层面的视觉冲击,而在于系统性工程细节的精准把控。


在建筑装饰行业进入"毫米级工艺控制"的时代,深化设计已进化为融合BIM技术、材料工程学、装配式施工等多维知识的价值创造中枢。
它不仅是用CAD图纸串联创意与现实的翻译官,更是将设计理想转化为可实施、可量化、可追溯的工程解决方案的转换器。
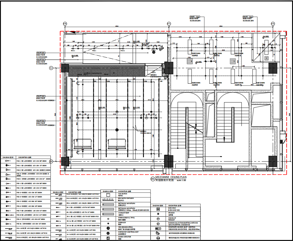
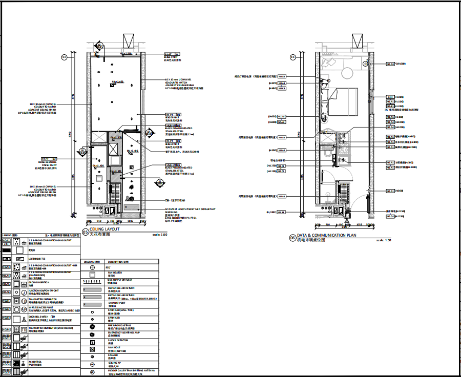
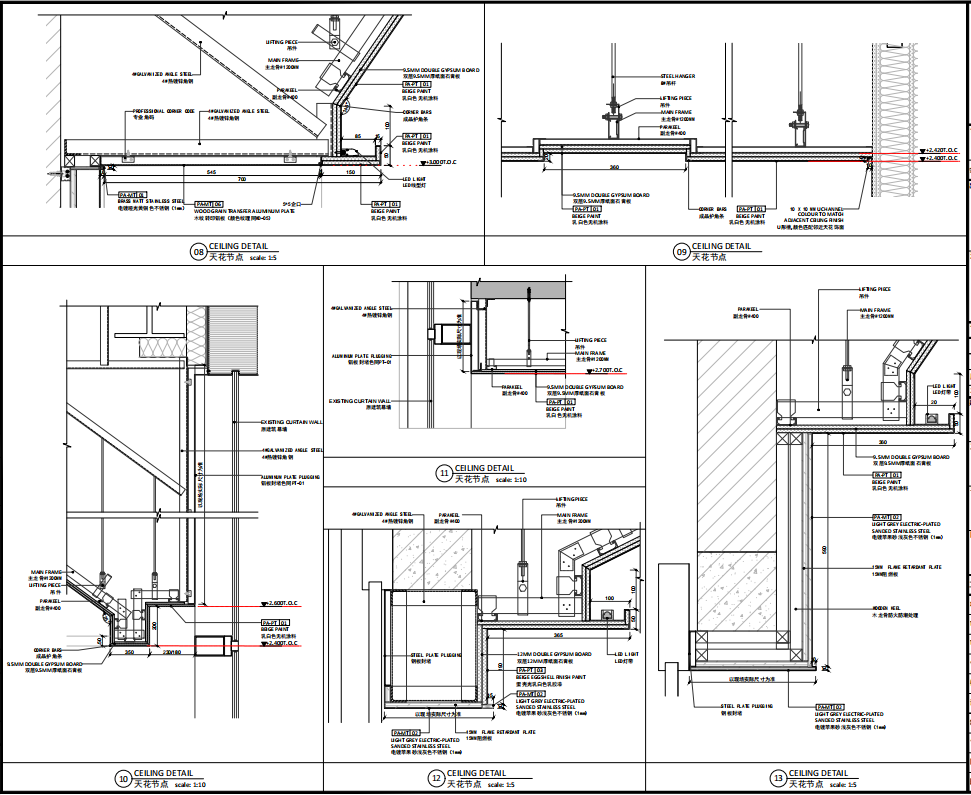
项目档案
-End-
文中部分图片源于网络,如有侵权,请联系小编~
dop设计
2010年成立于上海,是百强设计企业中,唯一一家入围的深化设计公司;公司合作伙伴主要为全球知名的设计公司、地产公司以及其他知名企业。

dop设计项目案例展示

△重庆怡置光环

△上海黄浦——新天地南里商场改造

△上海漕河泾——赵巷园区科技绿洲

△上海W酒店

△蔚来汽车展厅

△苏州四季酒店

△杭州之门

△松江印象城

△嘉兴五芳斋
- End -
文中部分图片源于网络,如有侵权,请联系小编~


