零基础看懂水电图:图例 + 三步法
发布于2026-03-17
零基础看懂水电图:图例 + 三步法





🔌 核心图例(必记)
开关插座:单控、双控看联动线(双控多1条);16A插座(空调/热水器专用)标有“16A”,区别于普通插座。
灯具定位:吸顶灯/筒灯为圆/方形,灯带为长条状,智能灯具加“智能”标注。
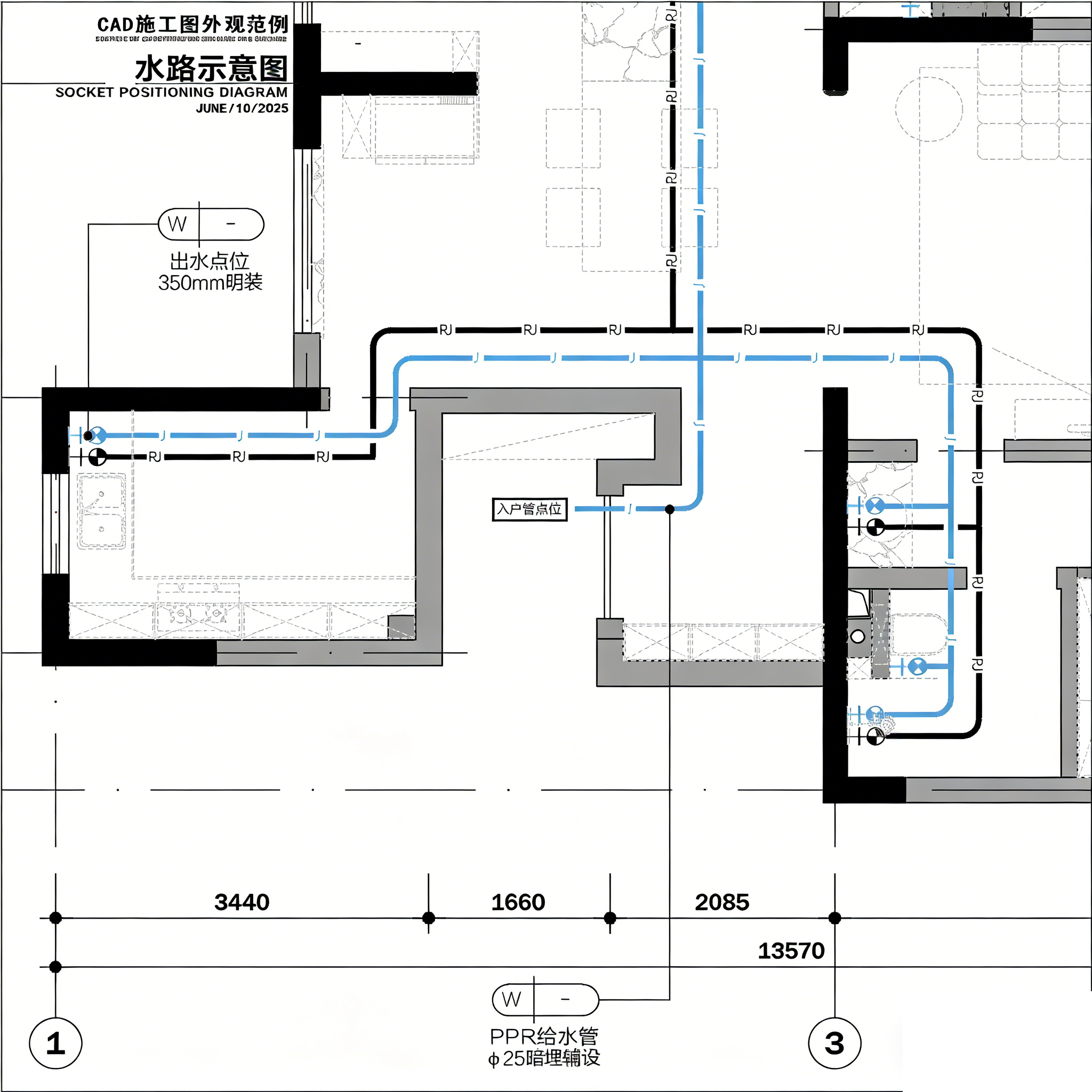
给排水:蓝线=冷水管、红线=热水管;地漏图例带网格,存水弯带弯管标识,勿混淆。
强弱电:强电箱、弱电箱图例不同且标注明确;网线标“CAT5/CAT6”,电视线标“TV”。
📐 图纸识读3步法
先抓主干:找到配电箱、主给水点,追踪主要管线走向。
再查细节:确认开关控制关系、插座与家具定位适配。
最后验证:检查水电点位是否冲突,核对完成面标高与管线关系。
浏览115
点赞0
评论0
收藏2
评论 (0)
暂无评论,快来留下一条吧~

