石膏板吊顶开孔要注意什么?
△星标 ☆dop设计,不错过每一篇干货文章
昨天,在我们的深化设计群里,有小伙伴晒出了吊顶开孔的翻车案例。师傅按照灯具点位图纸开孔,发现有几个孔洞都撞到了龙骨。

吊顶开孔撞上龙骨↑
开孔遇到龙骨,导致射灯无法正常安装。开孔大了,灯具安装边缘有缝隙。


开孔尺寸过大↑
石膏板吊顶的开孔工序,是咱们完成项目的一个重要环节。许多现场问题,皆源于此环节的疏忽与失准。
今天,就从以下几问题带你系统解读吊顶开孔的技术全貌:
1、为什么要在石膏板吊顶开孔?
2、各灯具的开孔尺寸是多少?
3、吊顶开孔需要注意哪些?
01. 为什么要在石膏板吊顶开孔?
www.shejidedao.com丨联系VX:dop024 回复“公众号”加群
从功能层面而言,安装嵌入式设备时,就需要在石膏板吊顶上开孔,来完成安装,主要有以下设备:
照明系统:嵌入筒灯、射灯、线性灯等。
暖通:预留出空调风口、回风口及检修口。
消防系统:烟感探测器、喷淋头等安全设备。
智能家居系统:需布置扬声器、传感器等。
目前,越来越多的业主,要求家里做无主灯设计,这意味着,天花吊顶主要以嵌入式筒灯或射灯实现空间照明。

这些嵌入式灯具,需要精准开孔才能确保可以安装进去。

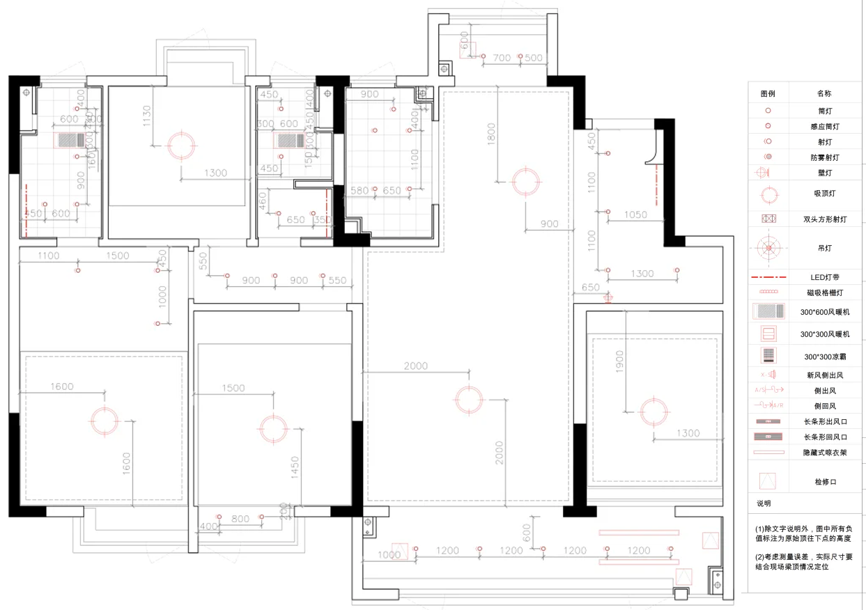
石膏板吊顶开孔,由木工根据灯具定位图纸和灯具尺寸,使用专业开孔器在石膏板上进行精确开孔,为后期灯具安装做准备。
任何失误都可能导致开孔过大、过小、过多或位置不正确等问题,影响最终效果。
02. 各灯具的开孔尺寸是多少?
www.shejidedao.com丨联系VX:dop024 回复“公众号”加群
不同灯具需要不同的开孔尺寸,设计师需根据所选灯具精确确定开孔直径,筒灯与射灯是吊顶最常见的灯具类型。

一般而言,筒灯、射灯的常见开孔尺寸为Φ55、Φ65、Φ75mm 三档。具体尺寸需严格按照所选灯具的规格确定。

防眩射灯/高显指博物馆级:Φ75–Φ95mm,需额外留5mm散热环缝,现场用Φ100开孔器一次成型,避免二次扩孔崩边。

7W(瓦)射灯开孔尺寸通常在60mm-85mm之间,随着瓦数增加,开孔尺寸也需相应增大。

特殊灯具如线性灯、检修口等需要非标准开孔。检修口的尺寸没有统一规定,若需要上人进入天花内部,开口尺寸建议为500×500mm。


检修口↑
不需要上人的情况下,300×300mm即可。现在多采用成品检修口,更加美观规整。
03. 吊顶开孔需要注意哪些?
www.shejidedao.com丨联系VX:dop024 回复“公众号”加群
精确定位是开孔作业的首要步骤。灯具定位必须在水电阶段确定好,开孔前需再次确认灯具开孔尺寸和位置,严禁盲目开孔。

开孔作业应在纸面石膏板安装结束后、刮白之前进行。

工序顺序:封板 → 弹线 → 开孔 → 自检 → 腻子,严禁先刮腻子后开孔,否则边缘纸面会起皮,修补痕迹在300lx照度下肉眼可见。
针对不同孔形选择合适的工具:


开圆孔时,必须使用开孔器,这样可以保证开孔尺寸精确,且不会破坏石膏板芯体结构,保持板材强度;

一般来说,筒灯预留深度在5cm-10cm之间,因此安装筒灯的吊顶深度通常应在10cm以上。若吊顶太浅,可考虑安装明装射灯或选择超薄型防眩光灯具。

开孔前应查看吊顶图纸,确认龙骨位置,确保开孔位置避开龙骨。如果因开孔导致主龙骨断开,则需要在距断口300mm处加装吊杆,以保证龙骨框架的强度与稳定性。
最后:
吊顶开孔需要我们与施工人员的高度配合。不仅需要提供精确的开孔图纸,还需对施工过程进行有效监督与指导,确保每个细节都符合设计预期与技术规范。
好了,本期的dop干货就到这儿,如有帮助,评论区扣“日拱一卒”,支持一下dop~


