
△source:榫卯建筑摄影
项目:扬州运河大剧院
dop设计(ID:dopdesign)原创
作者丨dop设计
编辑丨丽子
精心设计的天花吊顶最能够成为点亮空间的关键元素。而好的天花设计是如何实现的?如何做好天花布置的?如何通过图纸表达清楚的?更是作为设计师该掌握的一种技能,也是实现设计效果的关键!
今天,我们就从以下几个方面来聊一聊天花吊顶:
1、什么是天花吊顶?
2、天花吊顶的设计细项
3、天花吊顶的构造做法
4、案例展示

什么是天花吊顶?
△source:形在摄影HereSpace
项目:成都兴隆湖中信书店
1、天花吊顶的概念
天花吊顶,其实是一种“假天花”,是通过这层“假天花”,将顶面相关设备,比如空调、检修口、管道等隐藏起来的装饰措施,为了保证空间装饰的美观性而存在吊顶工艺。

source:google.cn

source:google.cn
而真天花自然就是建筑楼板了,那么通常我们设计中说的天花,也是指吊顶这层“假天花”。

source:google.cn
2、天花吊顶的功能
a、隐藏遮挡
隐藏顶面的复杂管线和突出的梁,使顶面看起来形成一个整体。
source:google.cn
b、空间限定
起到强化设计关系,划分功能分区的作用。通过一些设计变化来作为空间的界定或过渡。

source:google.cn
c、美化装饰
具有艺术装饰性,起到点缀空间、美化空间的作用。
source:dinzd.com

天花吊顶的设计细项
△source:形在摄影HereSpace
项目:成都兴隆湖中信书店
对天花吊顶有了一个大体的了解以后,我们再来看看实际设计中,与天花吊顶设计有关的“确定性影响因素”。
1、平面布置图
首先,天花设计肯定要遵循平面中的空间动线走向,划定功能区的的分割等等这些关系。

△平面和天花的功能关系图
而除了平面中的墙体之外。影响天花很重要的一个因素还有“家具”,天花造型是选择居家具中心,还是居空间中心。

source:google.cn
另外,通高到顶的固定家具,如衣柜、书柜,以及到顶不到地的家具,如吊柜等,在天花设计中也是需要注意的,因为它必然是影响天花造型的一部分。

source:google.cn
2、结构
结构梁的位置及大小,往往会对吊顶高度、造型位置、层次关系等天花设计有一定的影响。所以,需要核实结构图,以此为参考,考虑“梁”对天花的影响,如一些异型梁,斜梁,垂下来高度很高的梁等。
如果有一位设计师很喜欢用图一的灯槽的设计手法,在没有检查结构图纸的情况下做了图一的设计。

但是当核对了结构的梁位置和高度之后,就只能改方案做了如下图的设计。

而且当有垂下来的突出梁横在客厅和餐厅区域时,很多客户会选择牺牲掉空间的整体感,而希望层高不受影响,所以结构中的梁,设计师需要重点注意。

source:google.cn
3、机电
顶面上的设备一般会有空调管道、喷淋管道、强弱电桥架走线、水管等,这些都会影响到室内装饰吊顶的设计,因此重点需要核对机电图纸,避免出现造型和管线冲突的设计。
source:DECORATION
还有就是暖通 “设备”的影响,如空调和风管机等大体积比较占层高的设备。

source:google.cn
前期在定标高时,也要注意各个空间的是否有设备,相关的设备可以查看各个专业的图纸提资内容,吊顶高度也是影响吊顶设计的重要因素之一。
4、规范要求
天花吊顶的材料选择,必须根据国家标准GB 50222-2017《建筑内部装修设计防火规范》要求严格执行。
source:google.cn
特别是当我们的天花设计选用比较特别的材料时,需要考虑消防要求。
例如软膜天花,传统的软膜材料达不到防火等级的要求,那么,可以采用特殊处理的玻璃纤维和氟树脂及维纶纤维来制成的软膜天花,是属于A级防火的材料。

source:google.cn
同样的如果天花用的是木饰面材料,而木饰面材料达不到防火等级要求,我们也需要寻找替换材料,如木纹转印铝材,或者复合板木饰面材料。

△source:形在摄影HereSpace
项目:成都兴隆湖中信书店
关于天花设计的荷载,如按照规范要求,设置龙骨、吊顶空间大于3000mm需要设置转换层等内容都是保证天花质量的基本要求。
5、灯光和声学因素
一些天花吊顶设计对灯光效果要求很高,需要结合专门的灯光设计公司做灯光分析。

△source:榫卯建筑摄影
项目:扬州运河大剧院
如果在音乐厅和体育场等特殊空间,天花设计则会有特别的吸音造型,还需要结合声学顾问对天花设计做出分析。
△source:google
项目:哈尔滨音乐厅

天花吊顶的构造做法

source:dinzd.com
作为设计师,我们知道90%以上的装饰工程都是采用轻钢龙骨+石膏板的做法,所以理解了这种“通常”做法的相关内容,可以帮助我们更好地理解设计、落地设计。
下面,我们就分别从平面天花吊顶和曲线(面)天花吊顶这两个方面具体讨论下其对应的相关构造做法吧!
1、平面天花吊顶
平面天花吊顶的做法,大体上可以分为以下两类:原顶刷漆做法、轻钢龙骨+双层石膏板做法。
a、原顶刷漆做法
这种在建筑原顶面(上层楼板面)经处理直接刷漆的做法,多在工业风格和loft风格空间中运用,很好的保留了空间原始的粗旷感。

source:google.cn

△节点工艺图
b、轻钢龙骨+双层石膏板做法

source:google.cn
轻钢龙骨+双层石膏板的做法,也是目前市场主流的做法。基本上大部分吊顶的做法都是这种,后面会比较详细的介绍一下!构造做法可以可以简单的分为撑卡吊顶、38卡式吊顶、悬挂式吊顶三类。
① 撑卡吊顶

source:google.cn
△节点工艺图
② 38卡式吊顶


source:google.cn
△节点工艺图
③ 悬挂式吊顶
悬挂式吊顶是轻钢龙骨+双层石膏板做法中常用的做法,几乎适用于任何室内空间。


source:google.cn
△节点工艺图
而悬挂式吊顶的做法中,我们最常用的是跌级的构造,很多时候还会加上灯槽,简单的跌级吊顶不仅在极简和复杂空间均适用,更可以使原本单调的天花添彩。
这种做法通常是普通平面吊顶的一个变形升级,底层逻辑是一样的!

△节点工艺图
简单的跌级可以通过骨架的不同做调整,复杂的跌级造型可以通过成品的石膏线条实现。

△节点工艺图
2、曲线(面)天花吊顶
线型天花(曲线),曲面天花(二维和三维)的构造做法分为以下3种,主要变化是“骨架”材料的不同。
a、通过木板做侧板,木龙骨做主龙骨形成曲面造型的做法。

b、轻钢龙骨骨架,木板做侧板形成曲面造型的做法。

c、全龙骨做法,通过烧制钢架,形成造型的做法。

其实无论是曲线造型的天花还是曲面的天花造型,都是通过“骨架”搭建出造型,然后覆基层板,粘贴饰面材料或涂料处理,复杂的造型还需要在地面搭建骨架做完之后,吊装到天花板上去。
3、"轻钢龙骨+石膏板"吊顶具体做法
前面提到了,90%的项目中都采用轻钢龙骨+石膏板的做法中的悬挂式吊顶,下面我们就一起看一看具体的施工工艺流程。
具体流程为:
测量放线→安装吊筋及主龙骨→安装副龙骨、横撑龙骨→隐蔽工程验收→安装纸面石膏板
a、测量放线
根据施工图纸标高,在墙面、柱面用墨线弹出天花标高水平线,在顶棚上画出吊筋位置,考虑灯具位置,防止吊筋与灯具冲突。
source:google.cn
b、安装吊筋及主龙骨
根据吊筋在主龙骨长度方向上的间距在主龙骨上安装吊挂件,吊挂件的方向依次正反安装。根据标高控制线使龙骨就位。

source:google.cn
较大面积的吊顶主龙骨调平时,应注意其中间部分应略有起拱。
c、安装副龙骨、横撑龙骨
依次安装副龙骨及横撑龙骨,副龙骨间距一般为400mm,横撑龙骨为600mm,副龙骨挂件也需要依次正反安装,消除受力变形。

source:google.cn
d、隐蔽工程验收
对天花内机电及龙骨等隐蔽工程进行验收,待验收合格后才可以进行下一步操作。
source:google.cn
e、安装石膏板
石膏板安装从顶棚中间顺主龙骨方向开始,石膏板长边与主龙骨方向一致,向两侧伸延分行。固定罩面板使用镀锌自攻螺钉。

source:google.cn

案例展示
1、圆拱型天花案例

△平面放大图

△局部放大图

△节点工艺图
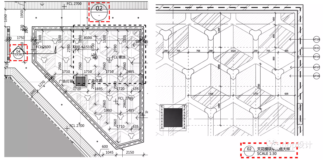
2、“参数化”天花,格栅天花案例

△平面放大图

△吊顶局部剖面图
3、“参数化”天花,曲线格栅天花案例
参数化的曲面天花一般由设计方出具可以作为电脑放样依据的图纸,然后交由专业厂家深化,在工程定制完成,现场需要每一段进行标高,标号,依次的工序安装。

△案例效果图
4、复合型天花(软膜+石膏板天花)案例
△模块放大图

△节点工艺图
(本文的图片均来源于网络,版权归原作者所有)

有关天花吊顶设计的内容就先给大家讲解到这里了,还与其他想看的工艺做法,可以到设计得到官网、app搜索相关关键词进行观看。
设计得到平台涵盖了室内设计全领域:材料工艺、制图技巧、方案设计、设计管理等10大专业板块知识点。

△年费会员十大专业板块
设计得到年费会员,8000+知识点、4000+vip专属教学视频、4322篇干货技术类图文,海量会员专享设计资源任你挑选。希望这些资源,能让每位设计师都能用专业能离打败行业的不景气,升职加薪!
年费会员免费观看的课程大概还有这么多↓
并且还在持续更新ing…
△上下滑动查看完整课表△
最后,还是用一张导图来总结一下今天的内容:
△点击保存,欢迎转发分享
△文中部分图片源于网络,如有侵权,请联系小编~
- End -
看完记得点赞、转发、在看3连
找dop032,领“dop设计大礼包”

点击“阅读原文”,为自己的实力加分!
↓↓↓

复制链接
