风铃幕墙,该注意哪些设计事项?

source:google.cn
dop设计(ID:dopdesign)原创
作者丨dop设计
编辑丨丽子
逼格满满的风铃幕墙,赋予立面一种动态的装饰效果。更因其惊艳的、极具趣味性的感官体验,使风铃幕墙成为一种设计优势。那么,风铃幕墙的设计要点和施工工艺又是怎样的呢?
今天,我们就从以下几个方面来聊一聊风铃幕墙:
1、什么是风铃幕墙?
2、风铃幕墙的设计要点
3、风铃幕墙的安装工艺
01. 什么是风铃幕墙?

source:google.cn
1、概念
风铃幕墙,也叫风动幕墙,是由风动片排布而成的,原理是利用动力学的风力来模拟风吹的效果。

source:google.cn
△风铃幕墙风动原理示例
通常是指用金属构件把风动片连接起来,固定住风动片的单边或中轴,使其可以在力的作用下进行移动的幕墙。

source:google.cn
△风铃幕墙风动效果示例
风铃幕墙的设计使得墙面呈现出随风飘舞、轻盈灵动、自然流畅的装饰效果。

source:google.cn
△风铃幕墙示例
2、风铃幕墙的应用
在建筑景观领域,风铃幕墙主要应用于建筑外立面、景观墙面、室内墙面等。

source:google.cn
△建筑外立面应用示例

source:google.cn
△景观墙应用示例

source:google.cn
△室内墙面应用示例
160个工艺节点在文末找哦
02. 风铃幕墙的设计要点

source:google.cn
风铃幕墙,随风而动,独特的金属光泽,流动的墙体外观,让建筑大大增色。其装饰效果往往与材料形状、材料材质、尺寸规格、安装结构、排布方式等有关。接下来,咱们就一起来看看相关的设计要点有哪些吧!
1、材料形状的选择
材料形状的选择,主要是指选择风动片(板)的形状。那么随着工艺的提升,风动片(板)的形状也越来越丰富,市面上主流的形状有长方形、正方形、三角形、六边形、菱形、圆形、异形等等。

source:google.cn
△长方形风动片(板)示例

source:google.cn
△正方形风动片(板)示例

source:google.cn
△三角形风动片(板)示例

source:google.cn
△六边形风动片(板)示例

source:google.cn
△菱形风动片(板)示例

source:google.cn
△圆形风动片(板)示例


source:google.cn
△异形风动片(板)示例
通常可以根据设计风格、风动效果、照明设计、施工工艺、成本造价等因素考虑具体,选择合适的形状。
2、材料材质的选择
材料材质的选择,主要也是指选择风动片(板)的材质。一般最常用的就是金属材质,作为风动幕墙的板材是最合适的,极强的反光力和独特的金属光泽会使得风铃幕墙更惊艳。
市面上主流的风动片(板)材质有不锈钢、铝、铜、PET、PC、亚克力等等。

source:google.cn
△不锈钢风动片(板)示例

source:google.cn
△铝风动片(板)示例

source:google.cn
△铜风动片(板)示例

source:google.cn
△PET风动片(板)示例

source:google.cn
△PC风动片(板)示例

source:google.cn
△亚克力风动片(板)示例
通常可以根据设计风格、材料性能、施工工艺、成本造价等因素考虑具体,选择合适的材质。比如说想选用铜质的,但如果大面积应用的话,就要考虑下成本造价是否合理了。

source:google.cn
3、尺寸规格的选择
尺寸规格的选择,主要也是指选择风动片(板)的大小、厚度等尺寸规格。同样形状、材质、安装结构、排布方式的风动片(板),其尺寸规格的的选择不同,也会有不一样的效果。
比如选择长方形的风动片(板),其他因素都一致,不同的大小会导致肌理比例、起伏程度等不同,因此效果就不同。

source:google.cn
△大尺寸风动片(板)示例

source:google.cn
△大尺寸风动片(板)示例
同样地,风动片(板)厚度也对效果有影响,风动片(板)太厚,风动幕墙不能动起来,风动片(板)太薄,风动幕墙浮动太快,这些效果都不好。需要根据不同的场景和预期效果进行选择。
4、安装结构的选择
安装结构的选择,主要是指选择风动片(板)、配件及龙骨的安装固定的方式。通常有拉索式、挂片式、横杆龙骨式、中轴式等。

source:google.cn
△拉索式示例

source:google.cn
△挂片式示例

source:google.cn
△横杆龙骨式示例

source:google.cn
△中轴式示例
根据需要的风动效果来选择安装结构,比如中轴式,那么就属于旋转式的风动效果了。

source:google.cn
5、排布方式的选择
排布方式的选择,主要也是指选择风动片(板)的排布方式。在最常用的单片式的安装结构中,一般可分为平行式、错位式、重叠式、镂空式等。所产生的肌理质感及飘动效果也会有很大的差异。

source:google.cn
△平行式风动片(板)示例

source:google.cn
△错位式风动片(板)示例

source:google.cn
△重叠式风动片(板)示例

source:google.cn
△镂空式风动片(板)示例
还可选择不同的飘动方向,一般分为水平飘动和竖直飘动等。

source:google.cn
△水平飘动风片(板)示例

source:google.cn
△竖直飘动风动片(板)示例
在安装结构、排布方式、飘动方向等的选择上,立面各个部位一般都是规则的、统一的。通常不会选择两种及两种以上的类型,会影响整体的风动效果。
03. 风铃幕墙的安装工艺

source:gooood
前文提到了,风铃幕墙的安装结构有很多种,下面就以最为简单常见的长方形不锈钢风动板拉索式安装为例,看一看风铃幕墙的安装工艺吧!
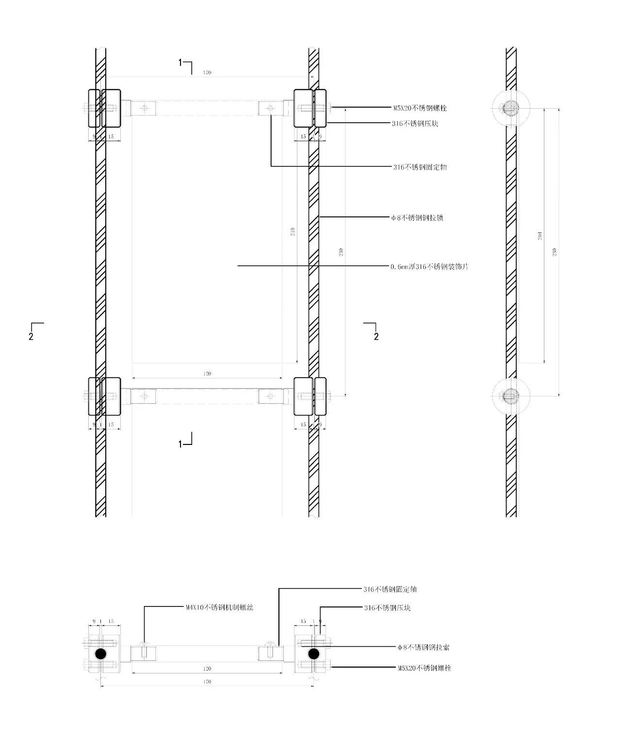
1、结构组成

source:google.cn
其安装结构组成主要包括不锈钢风动片、面板、中空长管、限位套头、凸部、竖龙骨、插芯、密封胶、连接座、穿连螺栓、连接件、架设板、固定件、限位穿管、限位槽、固定槽、垫片等。
2、安装工艺

source:google.cn
其安装工艺并不复杂,具体流程为:
施工准备→安装龙骨框架→安装不锈钢拉索→安装不锈钢风动片→检查整理
a、施工准备
施工前要确定好施工环境是否符合标准要求,检查施工材料是否完好、工具是否准备齐全、施工人员是否做好技术交底工作等。

source:google.cn
b、安装龙骨框架
根据设计图纸及现场测量情况,确定好龙骨框架的安装尺寸及位置,通过连接件与墙体或幕墙立柱进行固定,并检查安装是否安全牢固。
c、安装不锈钢拉索
根据设计图纸及固定件定位点,用拉索固定件将不锈钢拉索依次安装固定在龙骨框架上。

source:google.cn
d、安装不锈钢风动片
将风动板顶端的套管套接在芯轴上,在芯轴两端分别设有螺杆,在其根部开有钢索孔,保证该钢索孔轴线与芯轴轴线垂直,在螺杆上套接有紧固垫圈,螺杆外端旋接有紧固螺帽;
在芯轴上还卡接有上盖板,上盖板两端分别设有卡口,卡口的位置与钢索孔位置相对应安装。

source:google.cn
e、检查整理
每安装一片不锈钢风动片后,需手动检查其灵活度,轴芯与不锈钢拉索是否垂直等,待全部安装完成后整理施工现场。


source:google.cn
f、相关图纸

source:google.cn

source:google.cn

source:google.cn
(本文的图片均来源于网络,版权归原作者所有)

△ 加入设计得到交流群,连接行业资源 △
小结.
好了,本期的dop干货就到这儿,如有帮助,评论区扣“日拱一卒”,支持一下dop~
留言超超过10条,明天dop设计来带你“云看展”,盘一盘《第28届中国国际家具展览会,精彩看点》,敬请期待~
最后一张图,总结全文,拜了个拜~
△点击保存,欢迎转发分享
△文中部分图片源于网络,如有侵权,请联系小编~
文章仅代表作者观点,如有不足欢迎指出。
如有任何疑问和建议,欢迎在评论区告诉我们
或者加入设计得到交流群和我们一起交流更多设计知识
资料

找大师姐时备注:160个节点
- End -
如有帮助,还请 点赞、转发 支持一下
文中部分图片源于网络,如有侵权,请联系小编~
加dop050,领“dop设计大礼包”



