dop设计丨海旅免税城5F潮牌空间

dop设计(ID:dopdesign)原创
作者丨dop设计
编辑丨丁渝
在建筑室内逐渐一体化的今天,设计创新并落地永远是行业的发展核心。
作为一家专业的深化设计公司,上海大朴室内设计有限公司(dop设计)自2010年成立至今,一直用严格的标准来要求自己,秉持着严谨的工作态度,将每一个空间与其所表达的精神理念融合、碰撞,打破传统,不断地探索新的空间的可能性。
接下来,由我们向你介绍,我们在商业空间设计领域的落地项目,海旅免税城5F潮牌空间深化设计项目。
01. 项目概况及亮点
www.shejidedao.com丨联系VX:dop024 回复“公众号”加群
1、项目概况
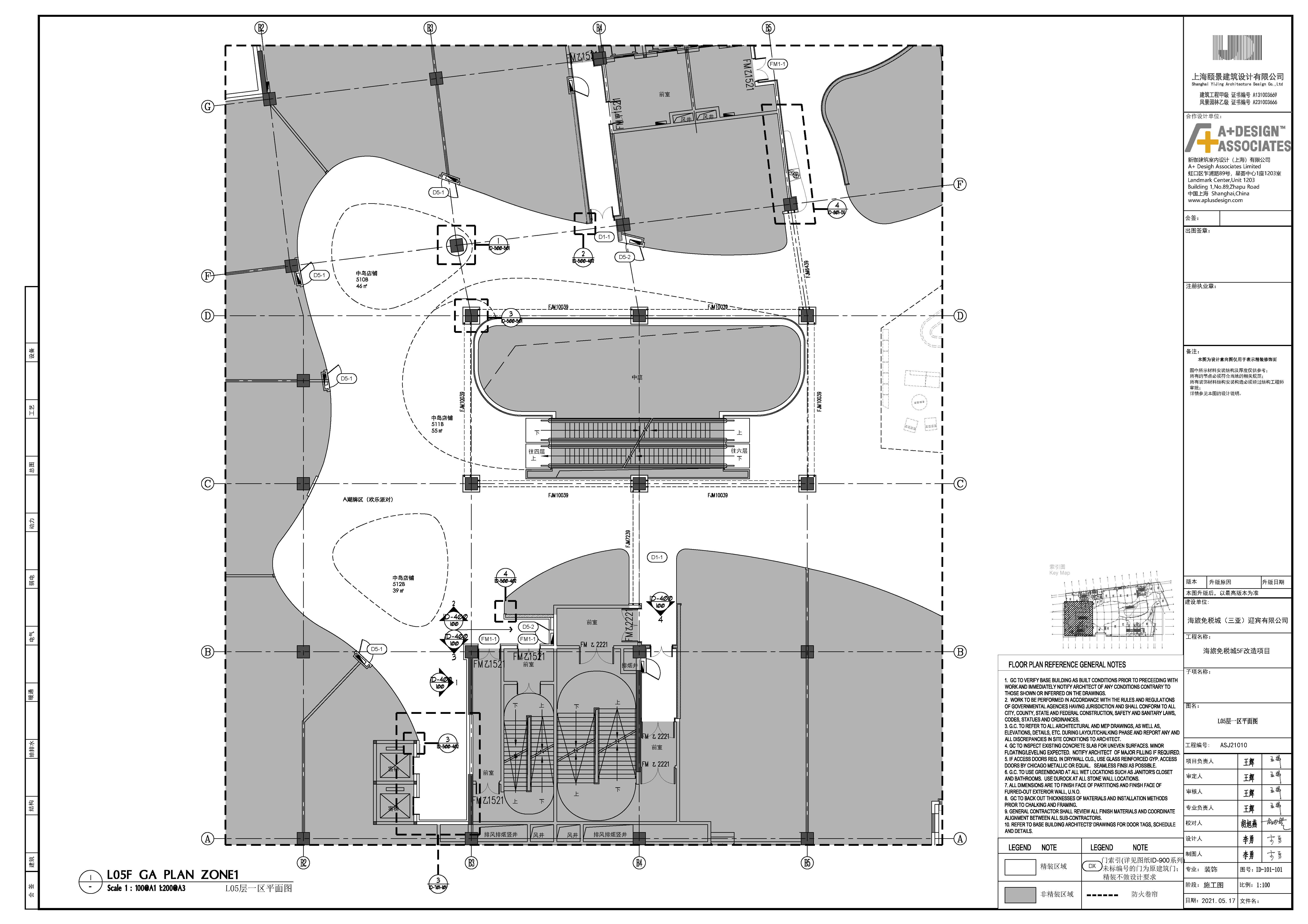
本案是海旅免税城5F潮牌空间深化设计,属于商业空间施工图深化设计项目案例,主要对内部装修的布局、材料选型以及整合相关专业设计顾问资料等进行深化设计。

来源:网络
项目位于全世界最大的单体免税城——海口国际免税城,主要设计空间为5F潮牌空间设计,装修设计面积约3752㎡,整体建筑造型曲线灵动飘逸,本次设计主题融入错落延绵的海浪曲线以及海洋色系。
2、项目亮点
a、材质色系碰撞
空间需把握好材质与色彩的平衡,表达上具备连续性与协作性。

本案空间中穿插海洋蓝色调,大胆的撞色让材质特性更加突出,地面白色灯带、金属线条等材质过渡,划分功能区的同时保持空间整体感,流畅的线条引导顾客自然的穿梭于各个区域。

室内效果图



深化施工图
运用金属、艺术玻璃等材质增加空间层次感,过渡衔接自然,运用光影增强材质层次且风格统一。

室内效果图



深化施工图
丰富的色彩及镂空的铝隔栅天花以具像化的镂空结构,生命力在其中穿梭,柔软、坚韧、灵动、冒险,打造会呼吸的商业空间区域。

室内效果图



深化施工图
b、室内与建筑呼应融合
本案有清晰的轮廓、宏大的建筑、有机的组合、起伏的第五立面…大众目之所及或身处其间都深感震撼。
空间内部线条感与建筑体相互呼应,内外空间融合视觉重量的平衡。

室内效果图


深化施工图
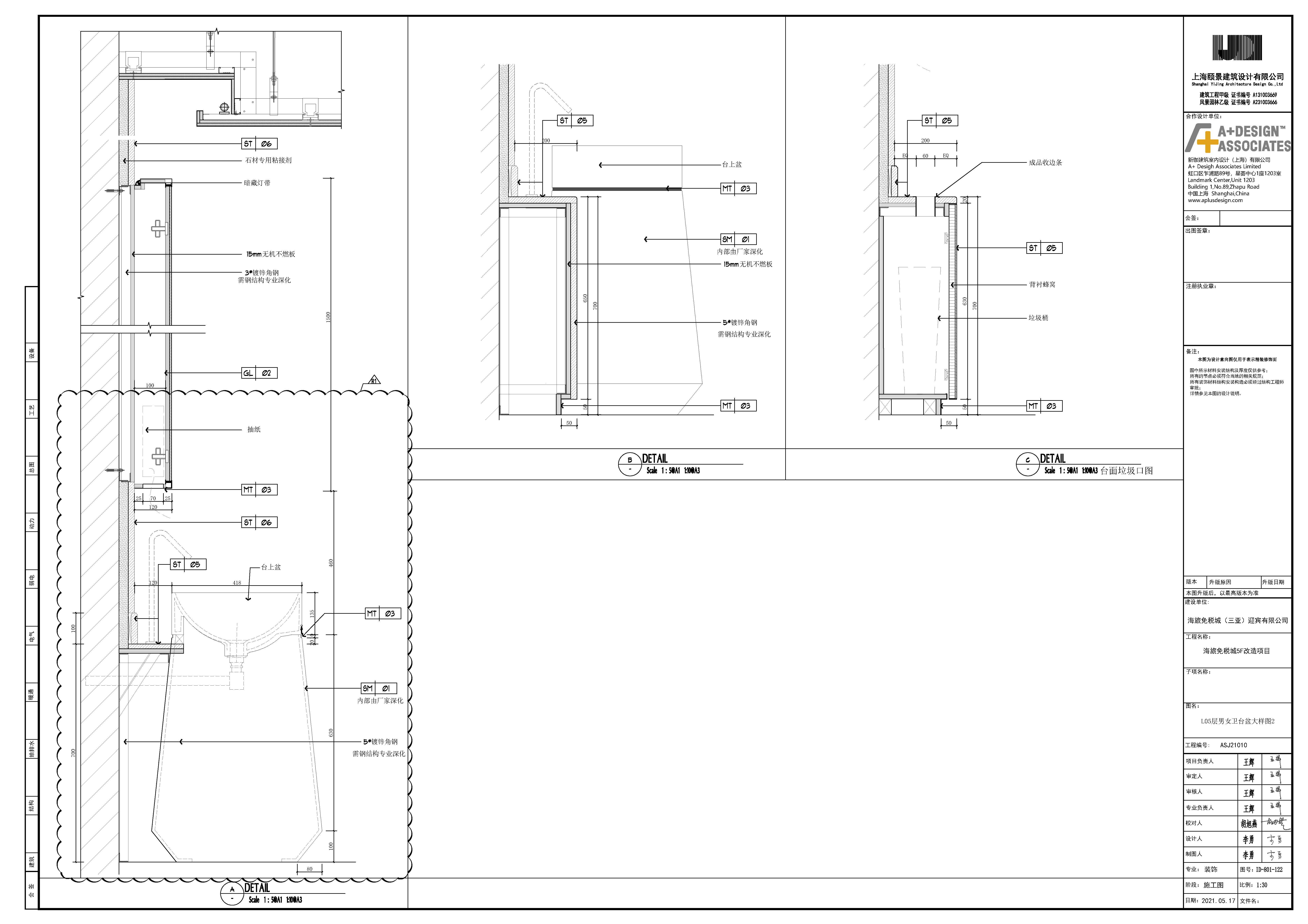
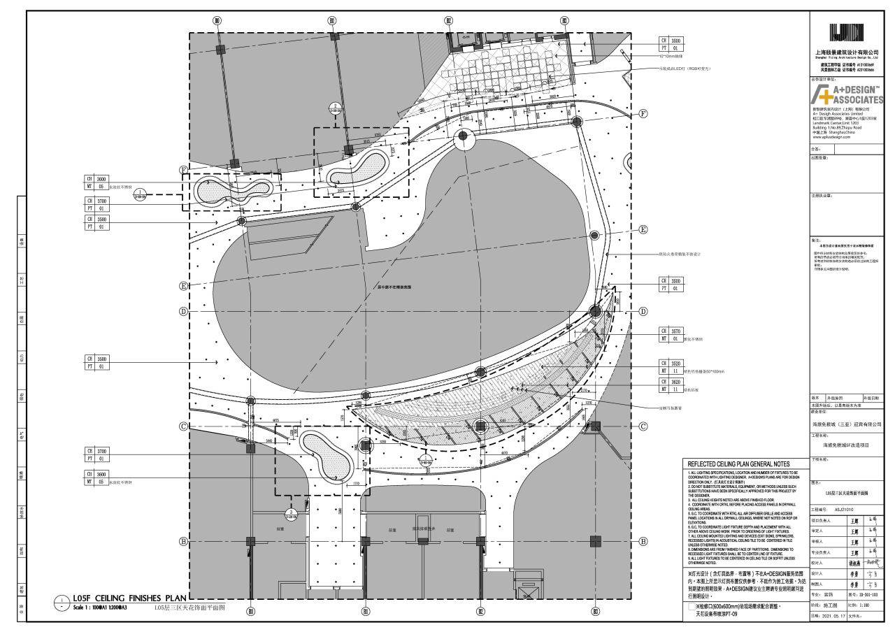
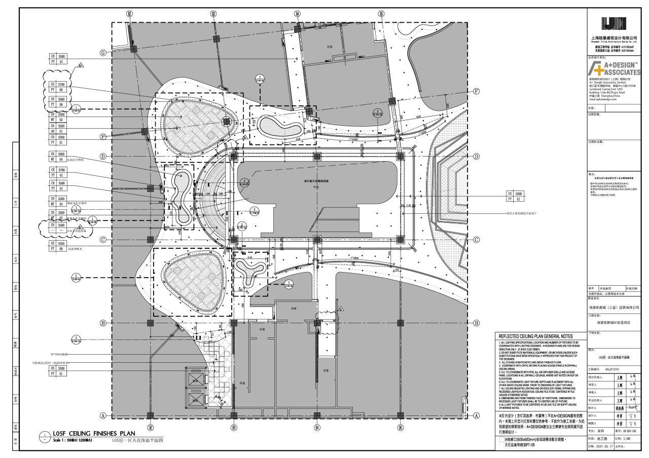
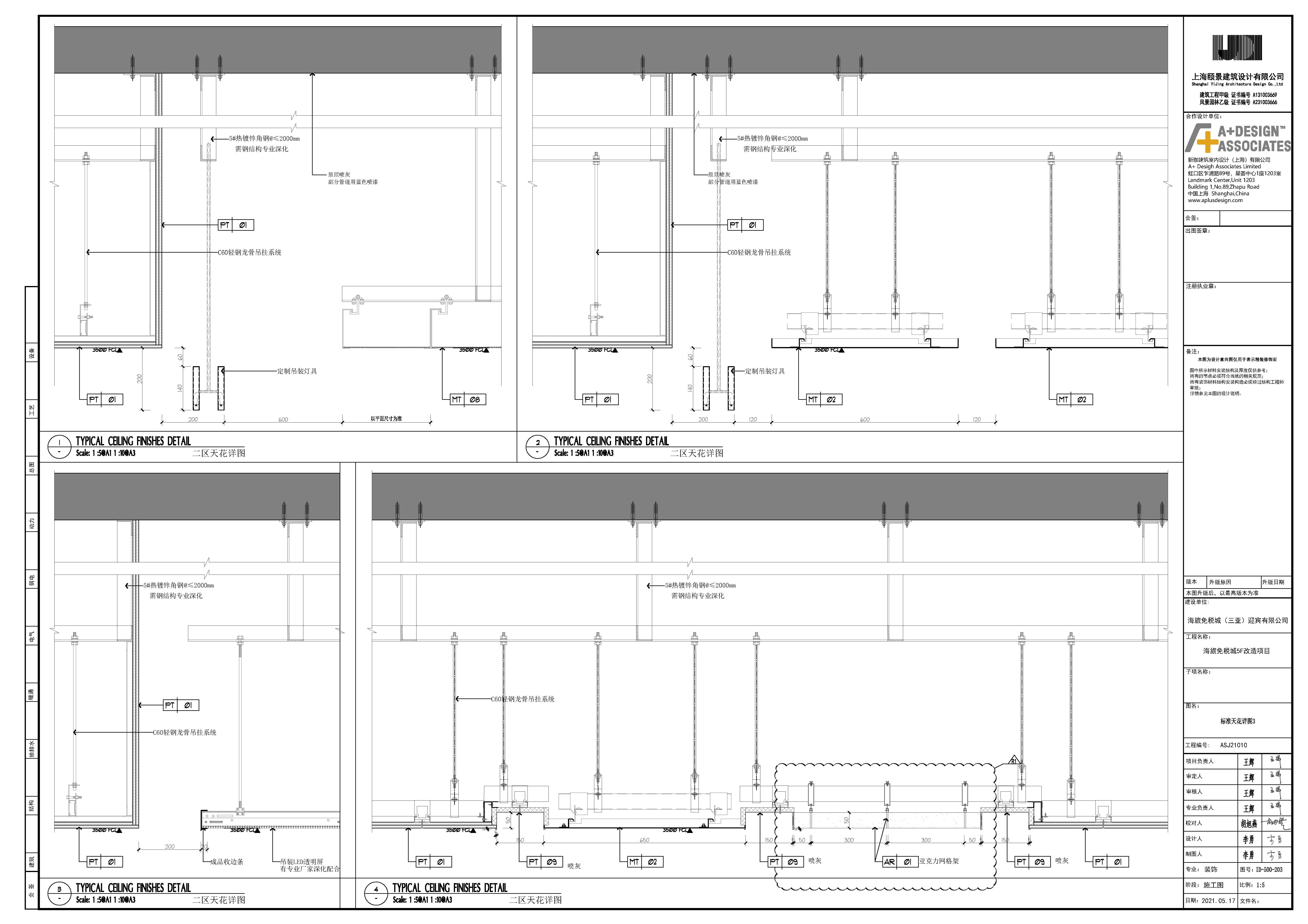
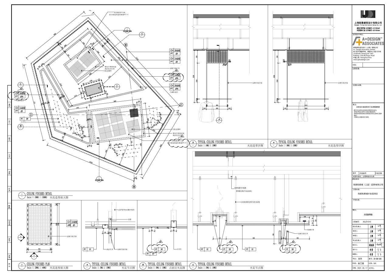
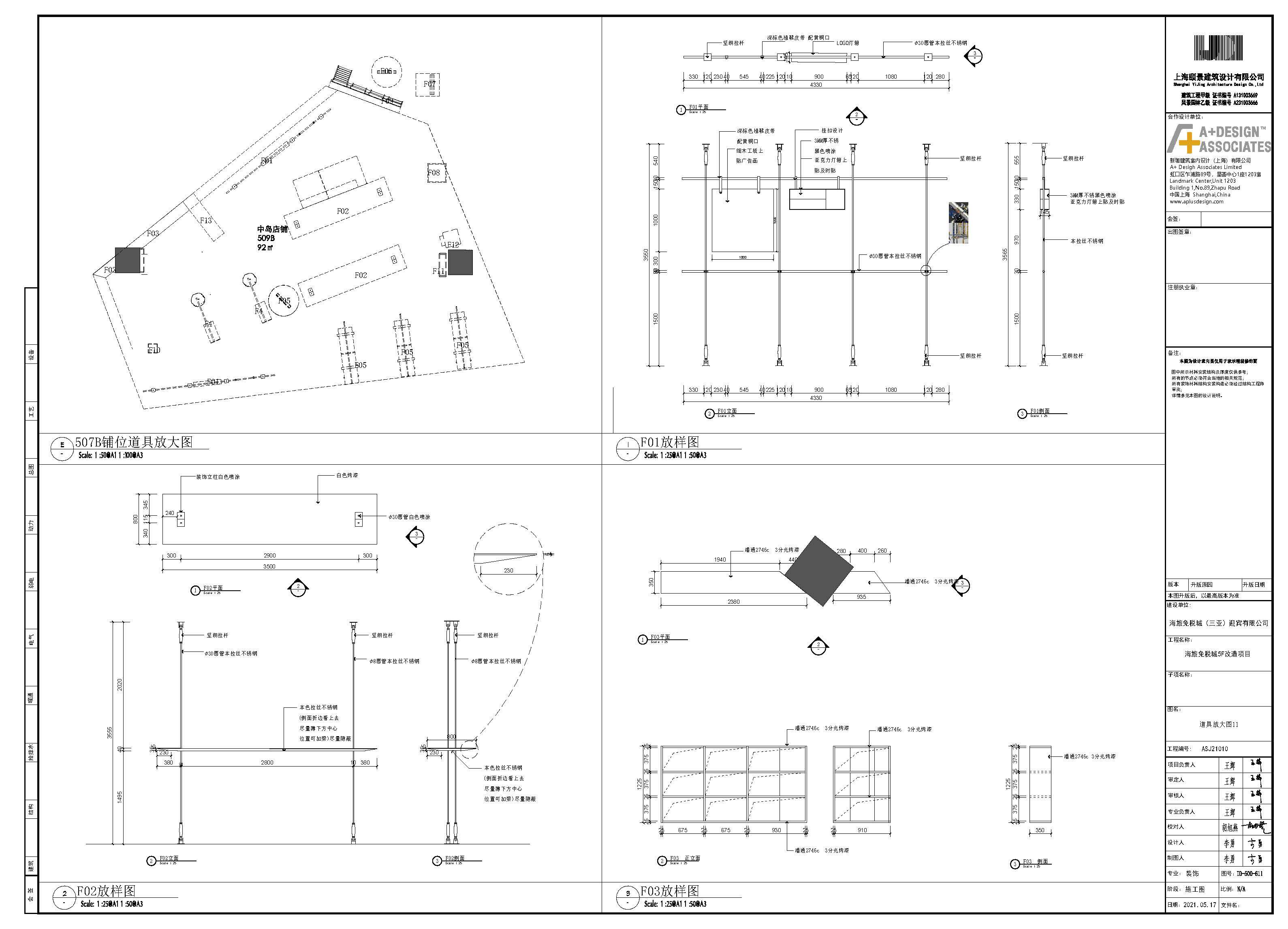
c、局部细节设计
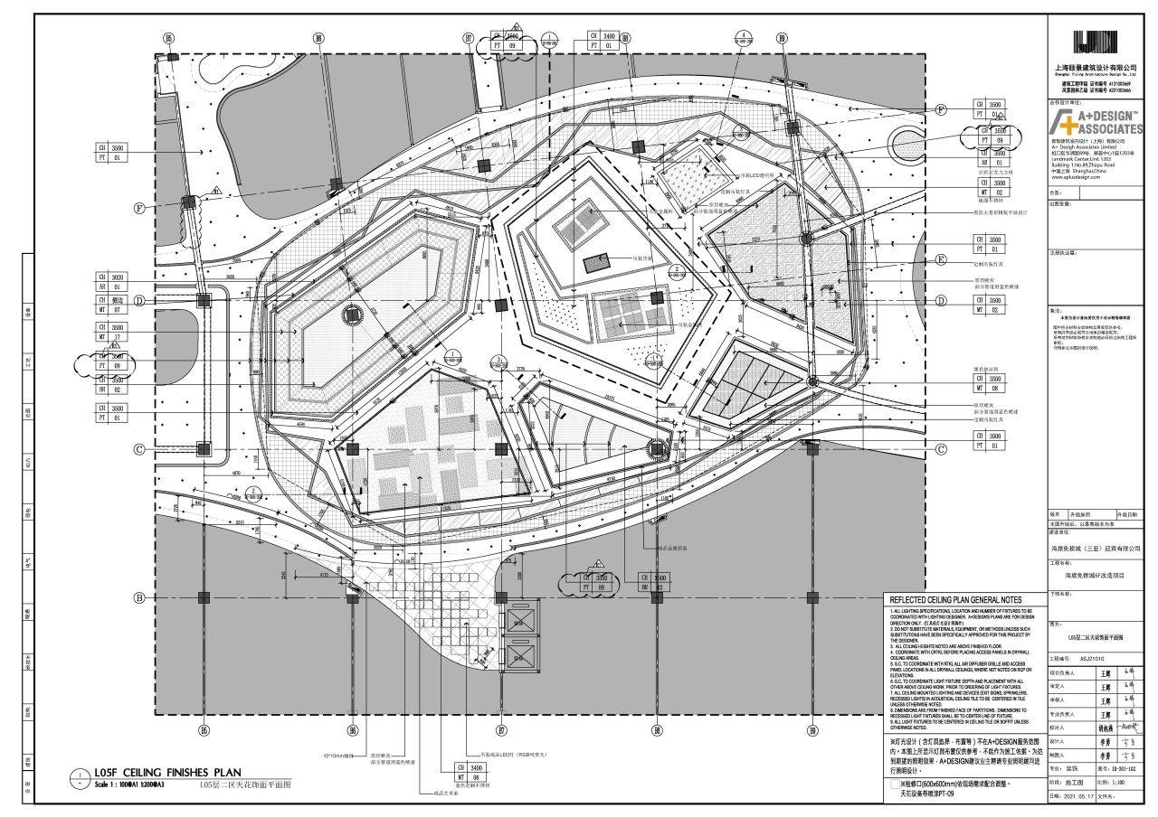
天花造型的设计能够改变空间的视觉高度,营造不同的空间感,在吊顶中嵌入灯光也可以营造出温馨的氛围,利用吊顶的材质和形状可以引导光线的传播,打造不同的视觉效果。





深化施工图
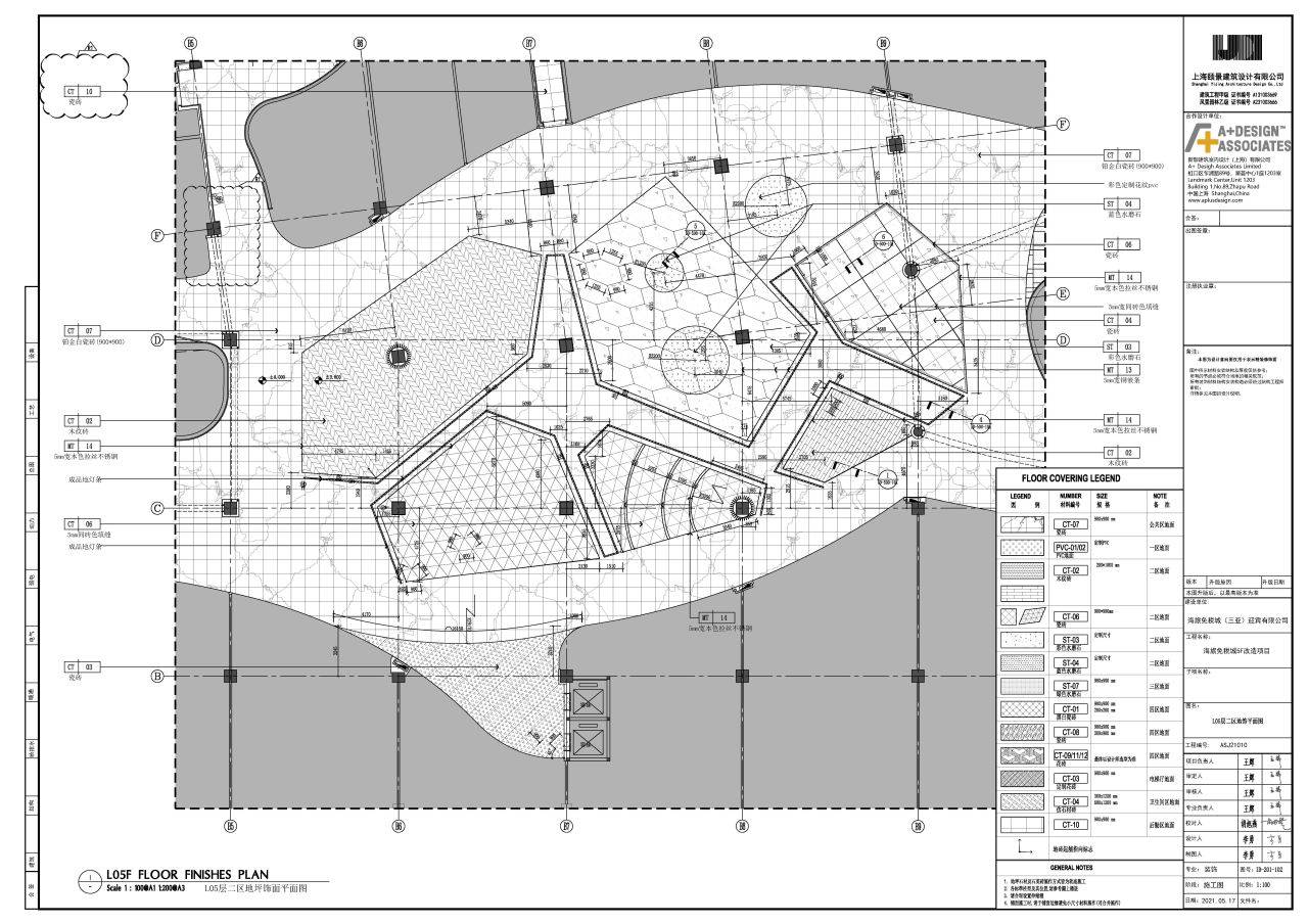
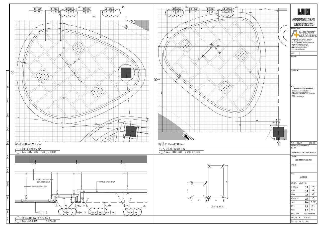
地面铺装设计是室内设计中不可或缺的一环,整个空间的点睛之笔,衬托不同的情绪氛围,也增强了空间节奏感。




深化施工图
02. dop设计在项目中的价值
www.shejidedao.com丨联系VX:dop024 回复“公众号”加群
结合场地设计条件,全专业深化设计进行综合判断,根据不同的功能进行更细致的考量,从多个方面探讨项目的深化设计重点,深化设计过程中的每一个细节都至关重要,它关乎到最终呈现出的效果是否能够达到高品质的标准。
本次海旅免税城5F潮牌商业空间设计的项目呈现过程中,dop设计团队针对项目整体落地性的把控上,充分发挥自身优势,通过与各方协调合作,化解了项目所产生的种种难题,使得项目最终得以完美落地。
dop设计团队明确项目工期节点,合理安排深化设计周期与团队配置,为项目顺利推进赢得先机。
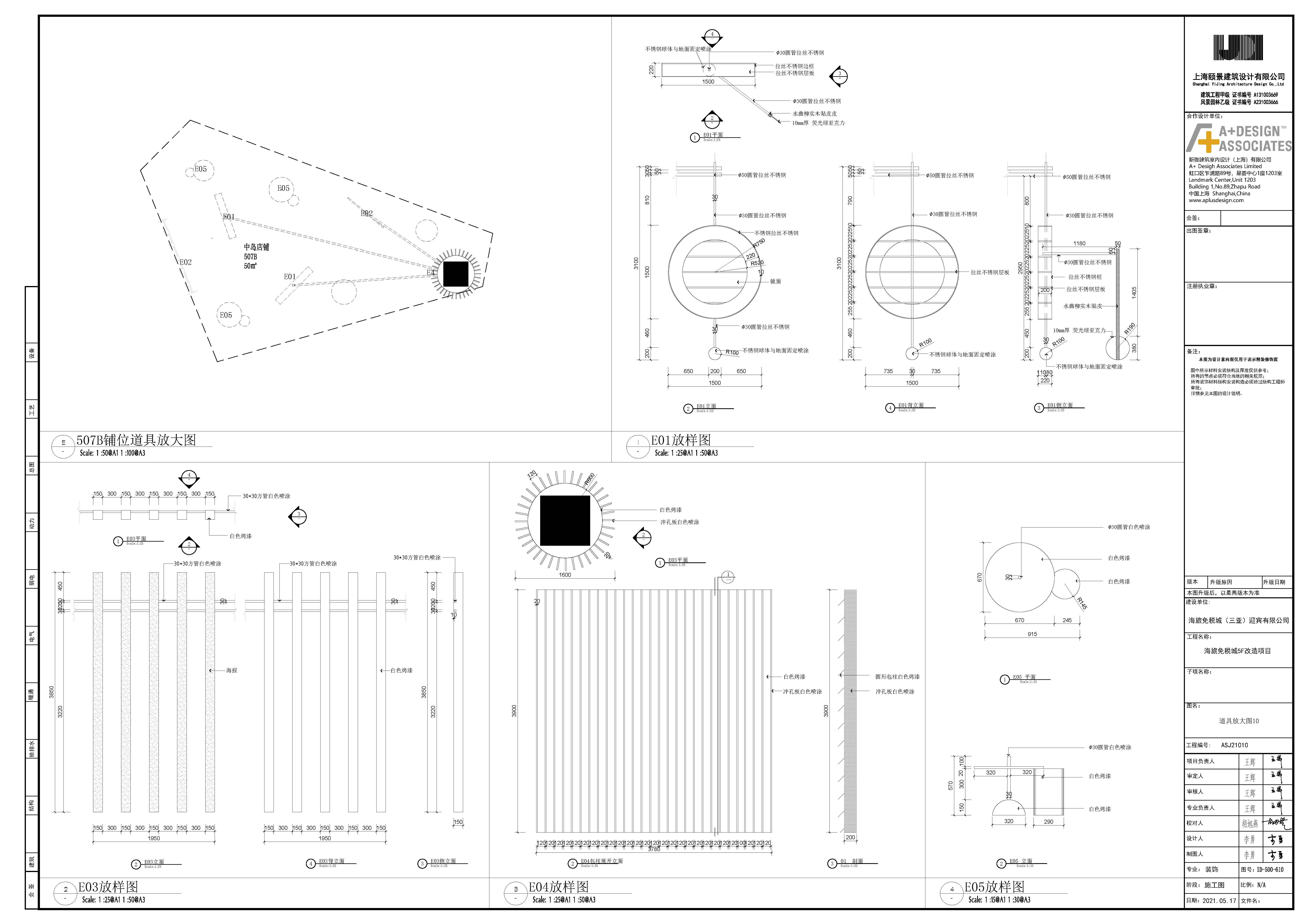
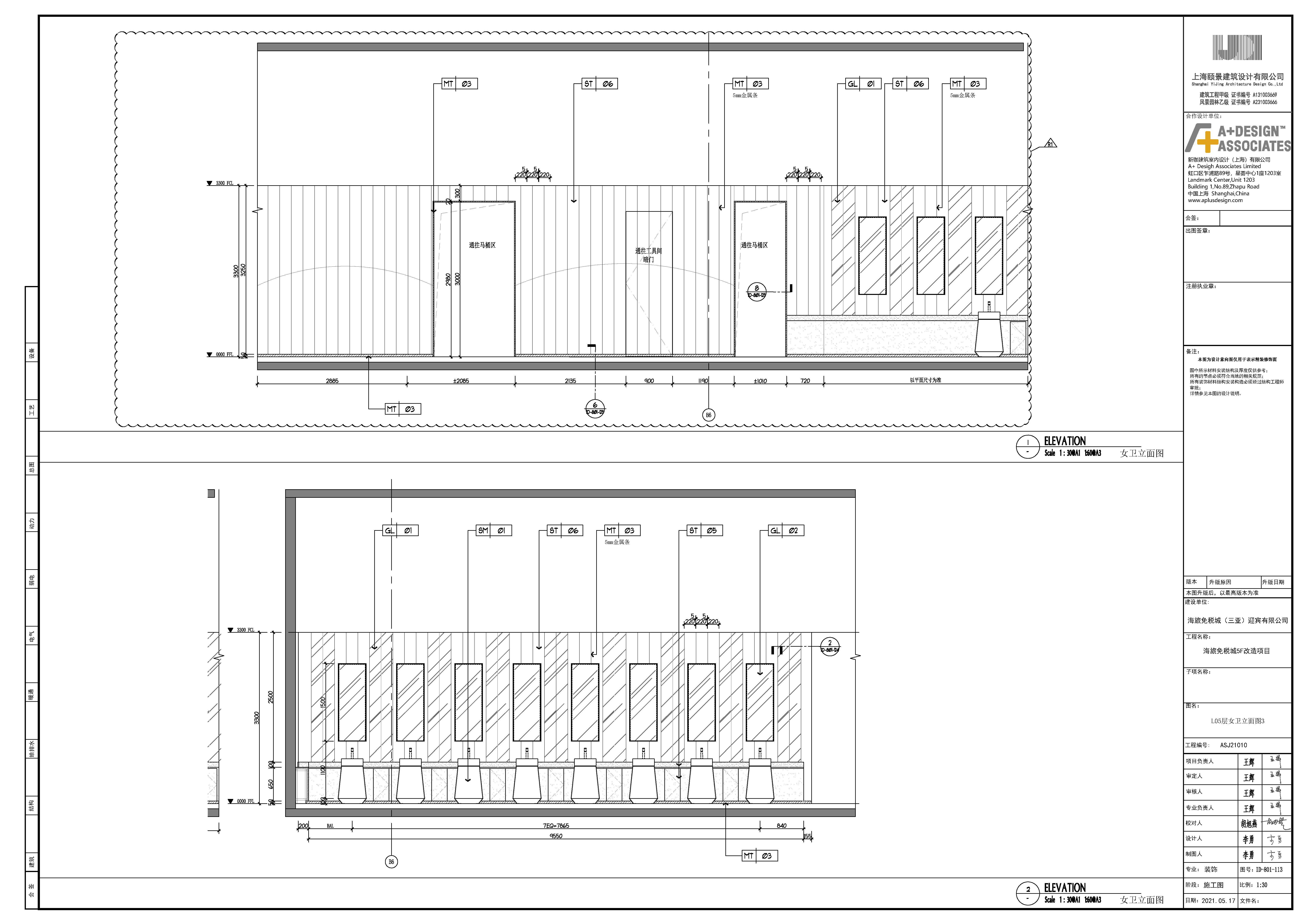
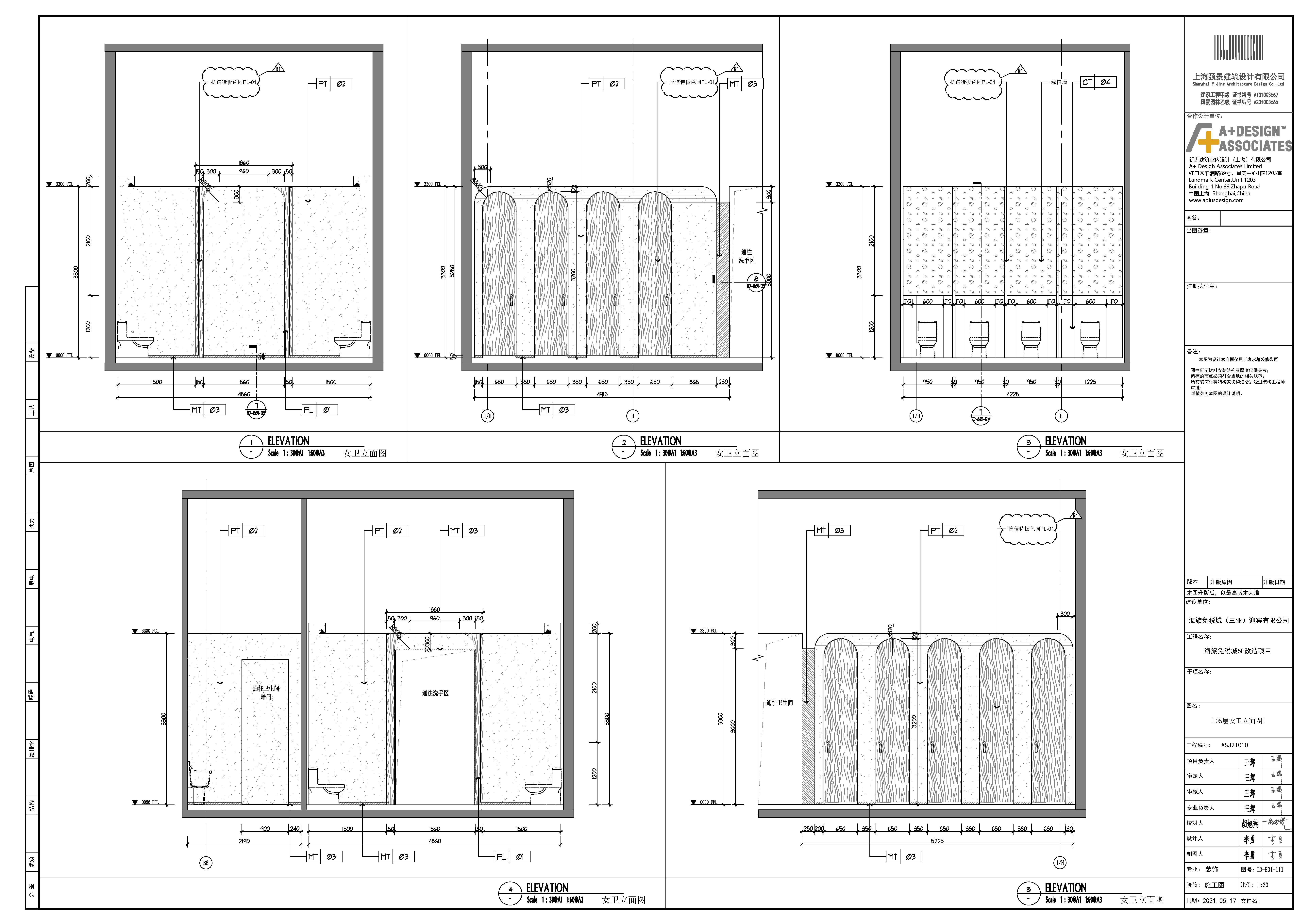
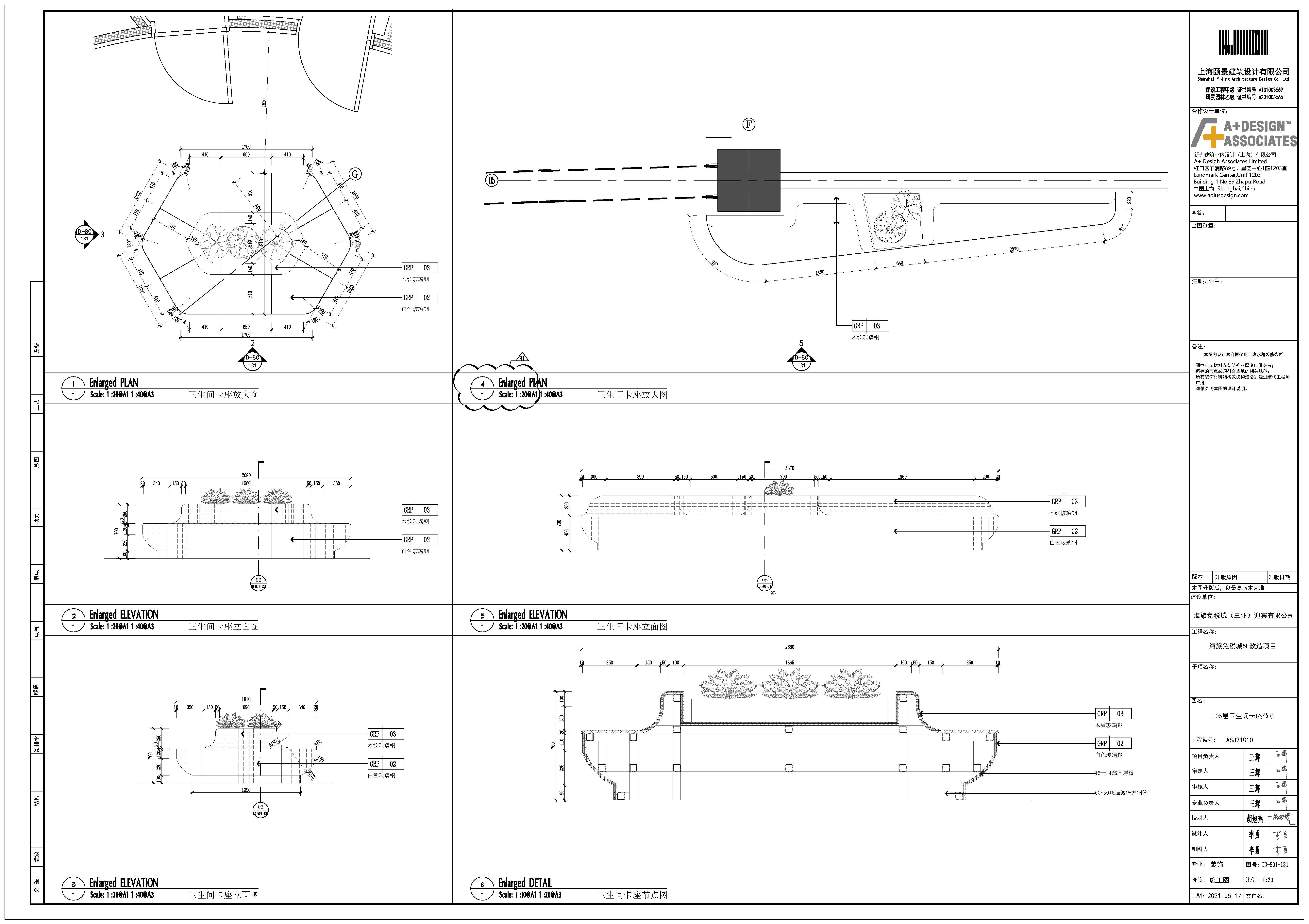
↓↓↓ 其它图纸(部分)展示 ↓↓↓



大堂立面图








项目档案
dop设计
2010年成立于上海,是百强设计企业中,唯一一家入围的深化设计公司;公司合作伙伴主要为全球知名的设计公司、地产公司以及其他知名企业。

项目合作联系人:卞先生
dop设计项目案例展示

△重庆怡置光环

△上海黄浦——新天地南里商场改造

△上海漕河泾——赵巷园区科技绿洲

△上海W酒店

△蔚来汽车展厅

△苏州四季酒店

△杭州之门

△松江印象城

△嘉兴五芳斋
- End -
文中部分图片源于网络,如有侵权,请联系小编~


