dop设计丨上海松江印象城

印象城作为印力集团旗下的知名商业品牌,致力于打造集购物、餐饮、娱乐、文化等多功能于一体的大型商业综合体。每个印象城项目都承载着提升城市商业品质、满足消费者多元化需求的使命。

我们就以上海万科松江印象城为例,看在商业空间中有哪些深化要点,我们从以下三个区域带你了解:
1、商业空间卫生间深化
2、商业空间中庭深化
3、商业空间电梯厅深化
01.商业空间卫生间深化
www.shejidedao.com丨后台 回复“公众号”加群


用于潮湿区域的石膏纤维板(即石膏板)应为防水级别(WR) 石膏纤维板。所有油漆用于潮湿地区应为应防霉类型油漆。
潮湿区域应包括严格遵照生产商的书面指示和建议安装专用的防水膜。
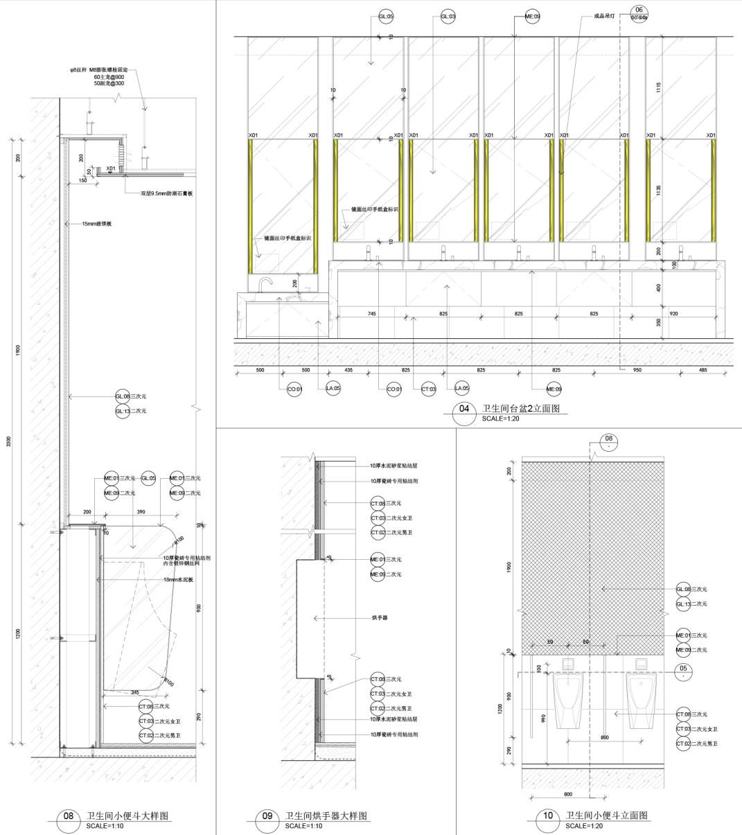
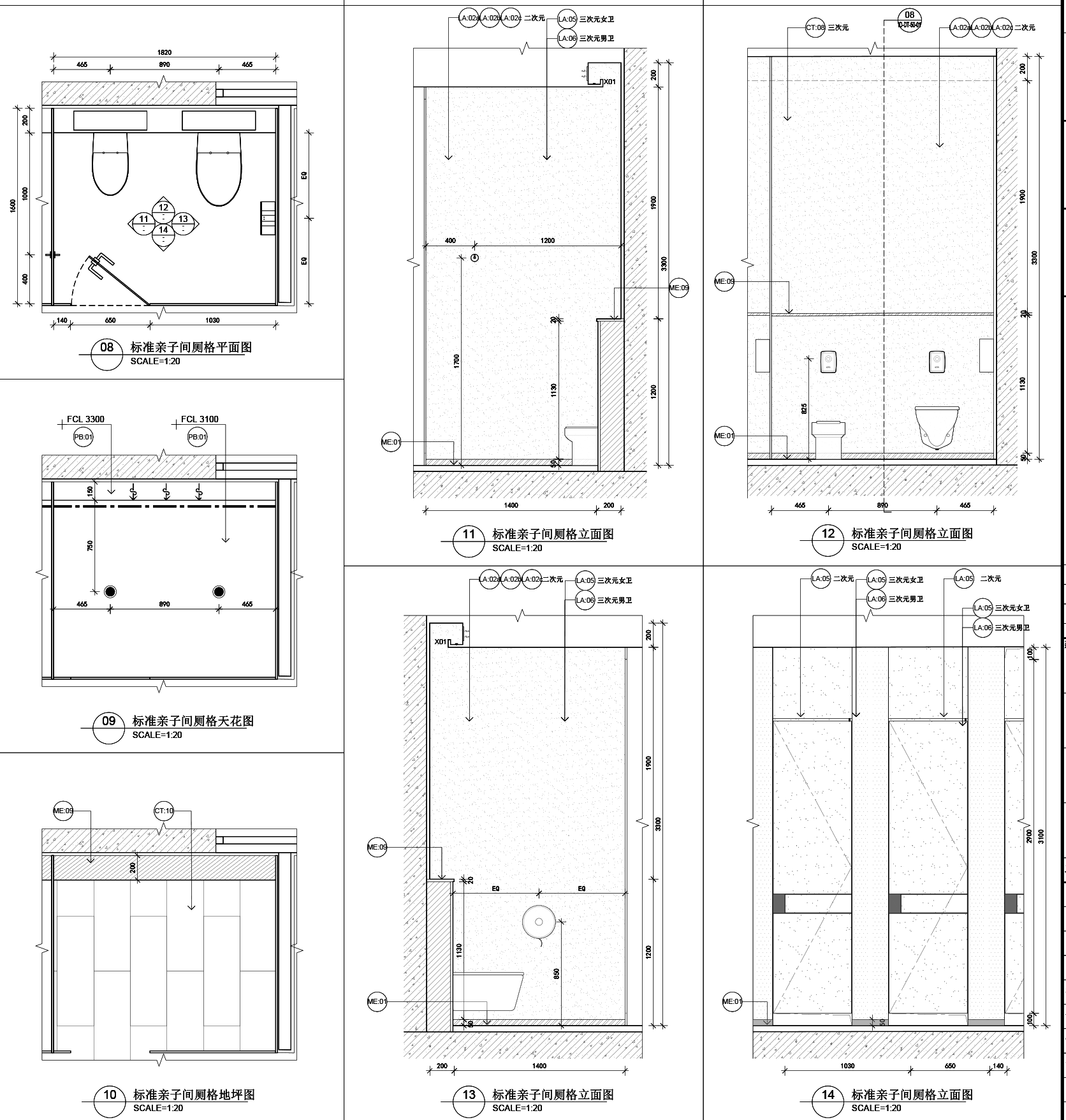
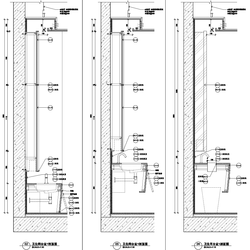
卫生间墙面主要采用了:
二次元洗手间:浅灰色瓷砖(600*600*8mm)和深化灰色仿石瓷砖(900*300*8mm);三次元洗手间:深色仿大理石瓷砖(600*600*8mm);儿童洗手间:水磨石花纹瓷砖(600*600*8mm)。
墙面铺贴材料:使用10mm厚瓷砖专用粘结剂。


马桶间采用930mm间隔,比标准间距提升了舒适度。
镜柜安装高度1050mm,抽纸盒定位距地850mm。

机电点位感应设备:
小便斗感应器(H=1090mm)。
灯带与设备:LED灯带(ME:09)、排风口与喷淋头协调布置。
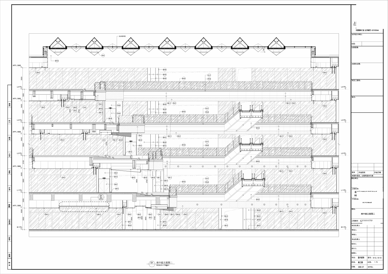
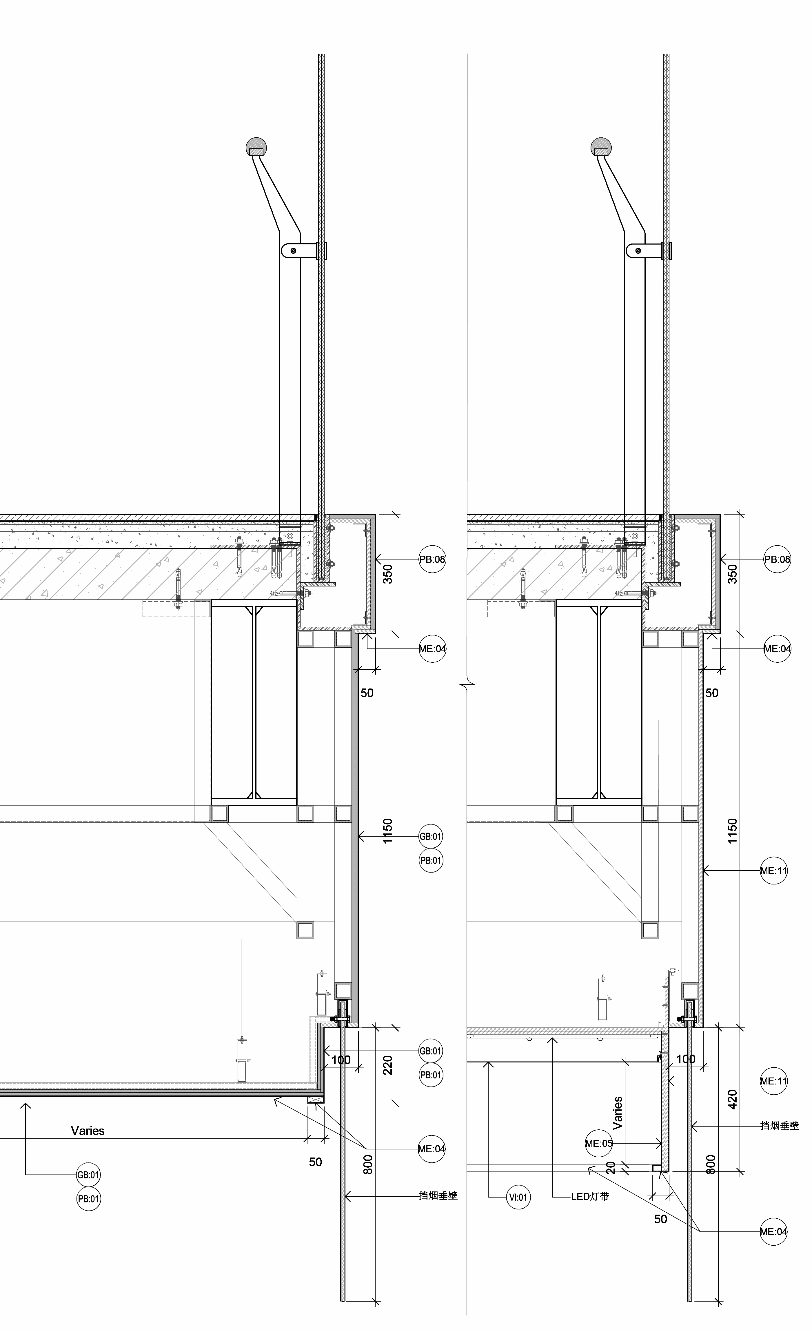
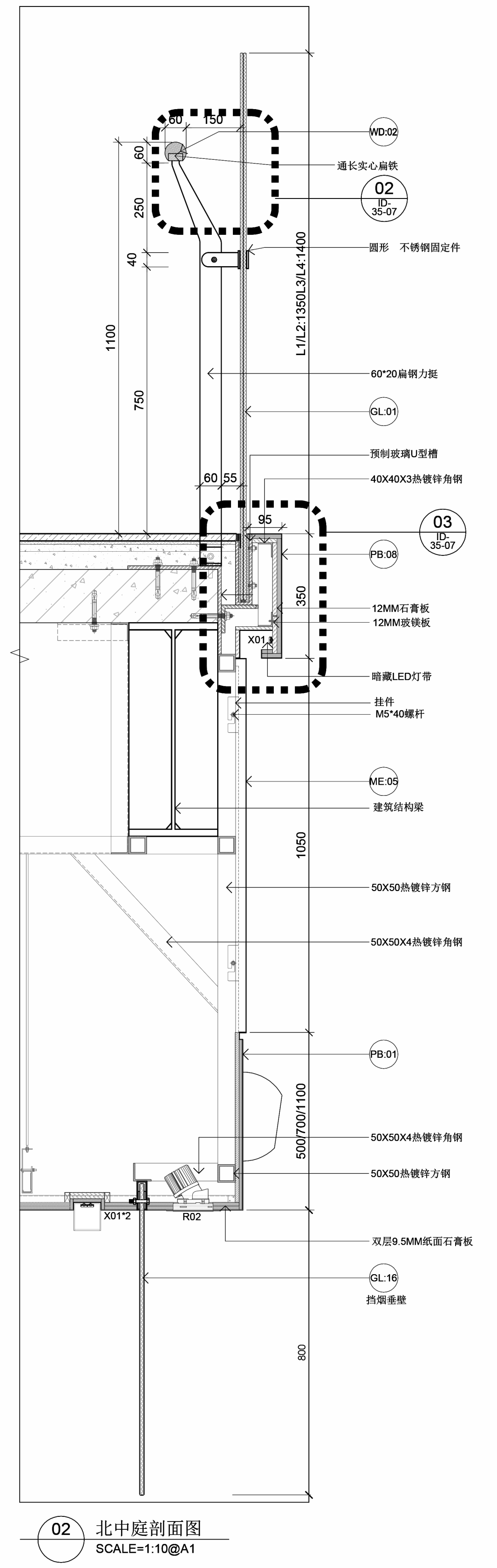
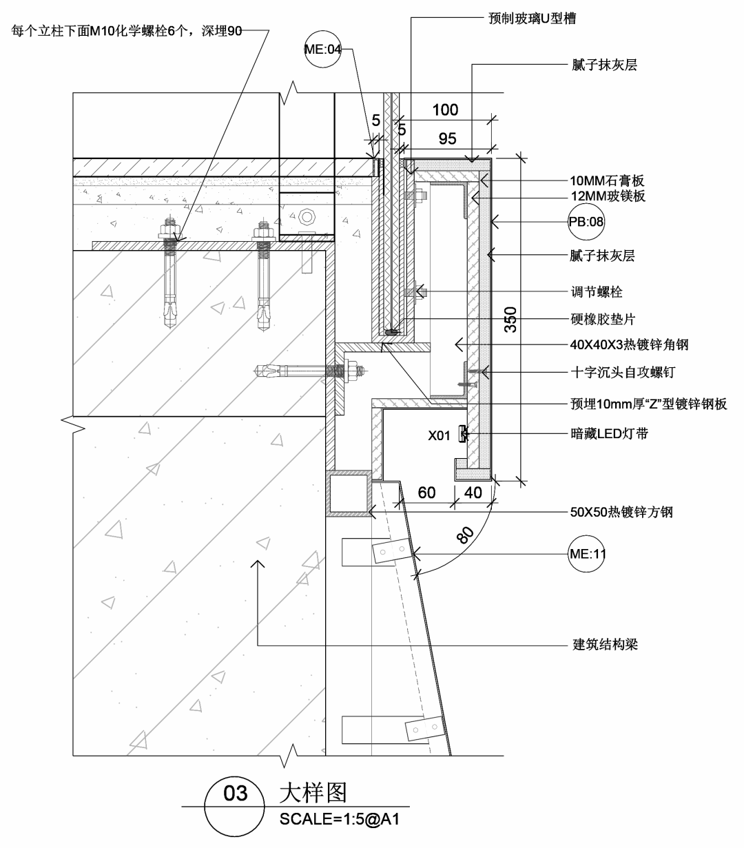
02. 商业空间中庭深化
www.shejidedao.com丨后台 回复“公众号”加群


中庭部分每个深化细节,都要预先整理出结构、材料、机电、消防、装饰等方面的要点,确保没有遗漏。

同时结合中庭特有的设计,如玻璃U型槽、金属结构、照明系统等,综合分析施工图要点,让方案精准落地。
金属框架系统:
主龙骨采用50×50×4热镀锌角钢,间距@1500mm;副龙骨为50×50热镀锌方钢,间距@300mm。

天花内置暗藏LED灯带,需配合双层9.5mm纸面石膏板及12mm玻镁板衬底。
预制玻璃U型槽固定需用不锈钢挂件,螺栓固定(M5×40螺杆),要求镀锌处理。

挡烟垂壁安装:
挡烟垂壁设于中庭周边(编号GL-16),安装高度符合消防规范。
玻璃栏河节点:
栏河采用不锈钢固定件(圆形/方形),扁钢力挺(60×20通长实心扁铁),表面抗指纹处理。

安装偏差限值:
金属结构垂直度偏差≤3mm,天花平整度无起伏(波纹<2mm)。
玻璃栏河接缝宽度误差≤10mm,阳角处无拼接缝(L型整体切割)。
隐蔽验收:
LED灯带预埋需通长连续,通电测试无断点;管线穿梁处防火封堵严密。
暖通通风:
中庭顶部布置条型风口(色同周边材质),侧回风口与顶面排风口结合消防排烟系统。风管隐蔽于石膏板吊顶内,需与结构框架协调,避免冲突。

dop设计公司拥有一支由15位超过20年行业经验的合伙人和近100名专业设计师组成的核心团队。
这些设计师在商业空间设计领域积累了丰富的经验,能够精准把握市场需求和消费者心理。
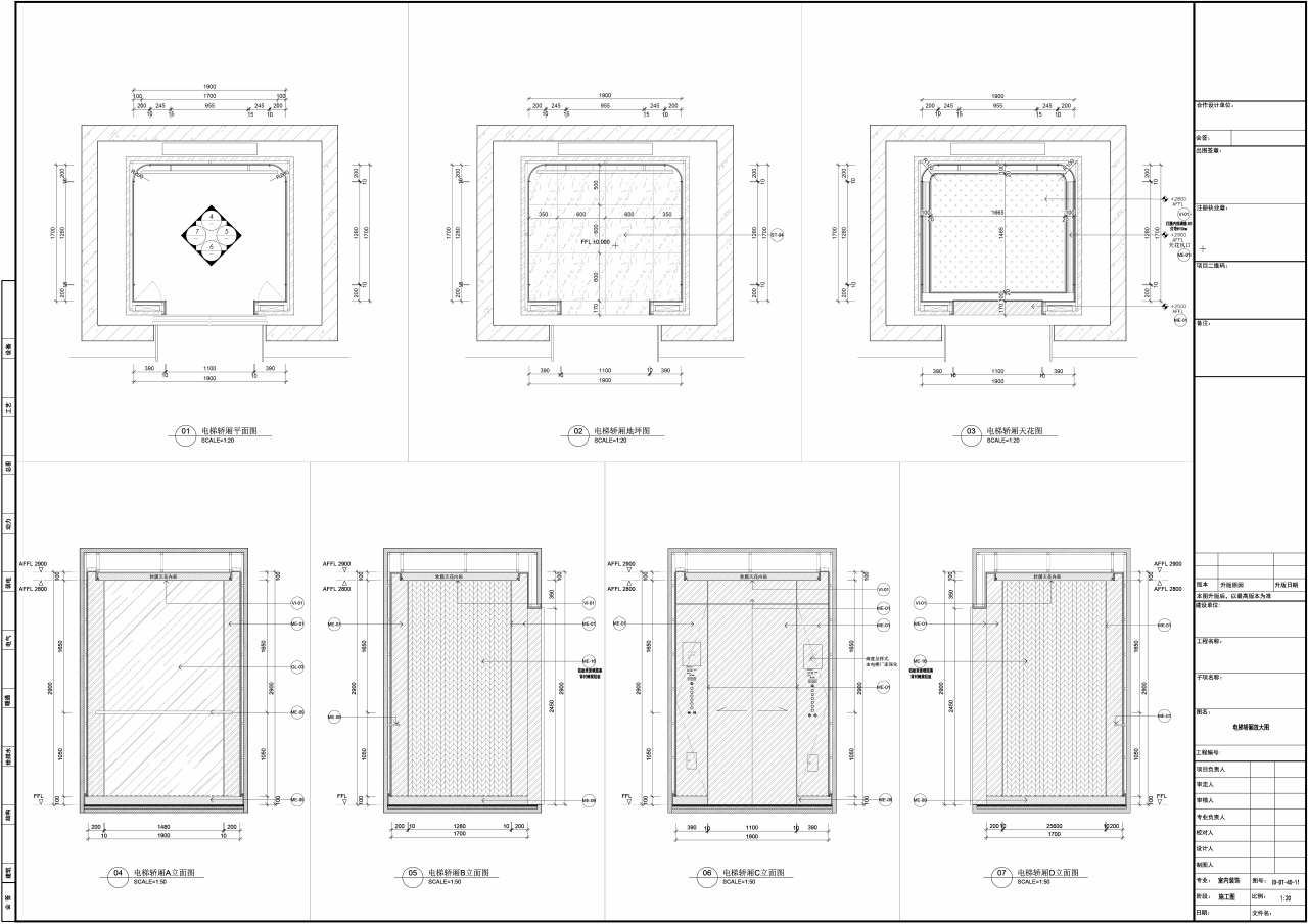
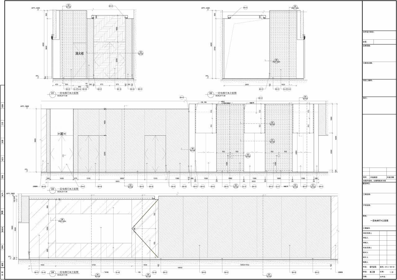
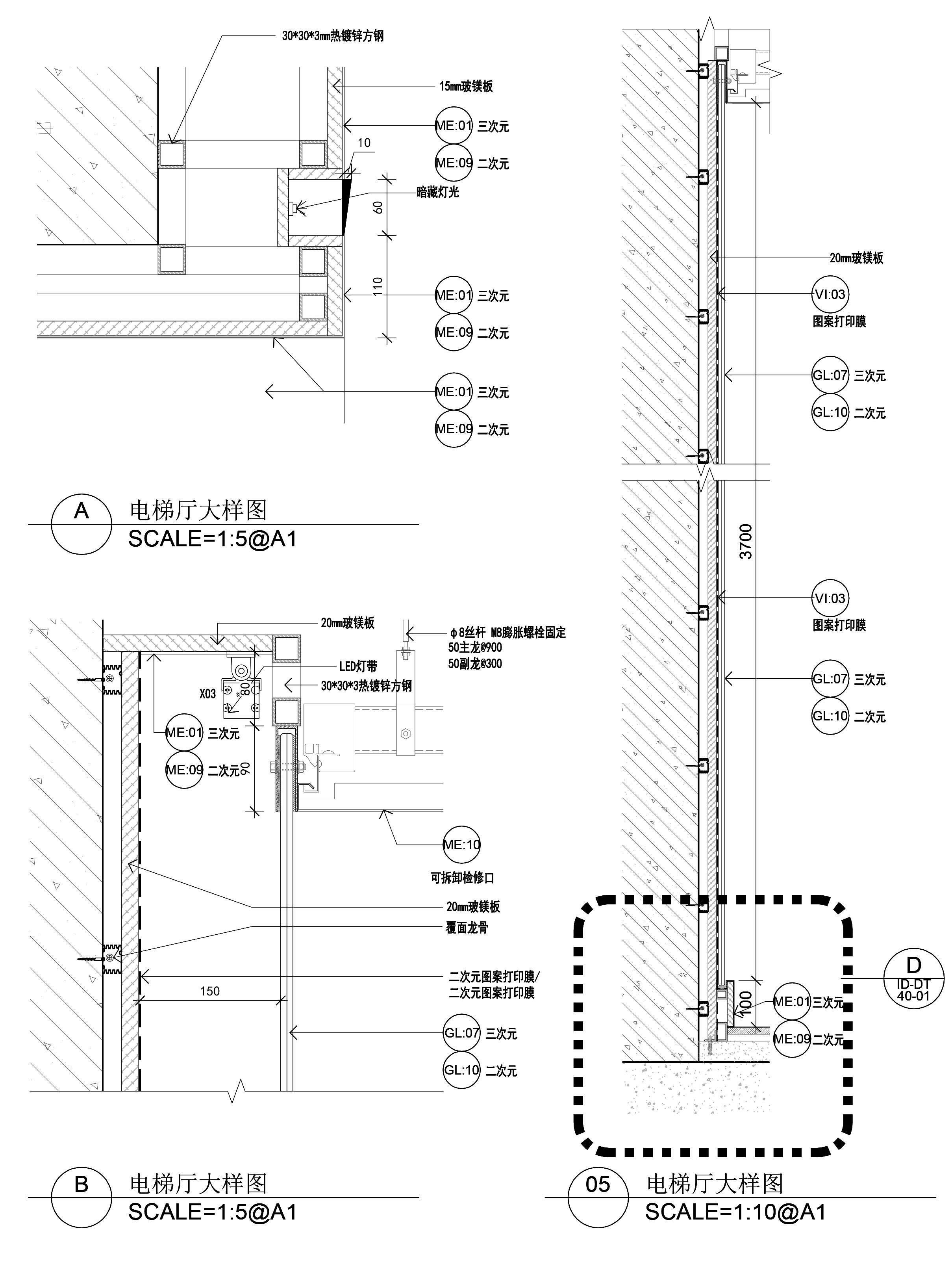
03. 商业空间电梯厅深化
www.shejidedao.com丨后台 回复“公众号”加群


电梯轿厢内饰面:铝板打印菱形花纹和镜面玻璃,电梯厅地面菱形切边,嵌实心黄铜条。墙面主要采用拉丝香槟不锈钢,表面需抗指纹处理。

电梯门尺寸:标准乘客电梯门宽950-1050mm。
等候区宽度:电梯厅走道宽度4450mm。
天花高度:电梯厅吊顶高度为3900mm。

天花铝板厚度≥3mm(A级防火),局部嵌条采用定制金属型材。

干挂石材钢骨架需专业机械弯折,槽口注胶饱满,石材净厚度≥6mm。墙面装饰构件(电梯按钮框、门套)垂直度误差≤3mm,安装高度偏差≤10mm。

玻璃幕墙(GL系列)需由专业厂商深化节点,超白夹胶玻璃接缝胶条隐形处理。

在印象城项目中,dop设计团队充分发挥其专业优势,为项目提供了从概念设计到施工图设计的全方位服务。

dop设计公司在参与印象城项目时,深知甲方对项目的期待值,并将其融入到深化设计中,力求为消费者提供一个舒适、便捷、富有吸引力的购物环境。
dop设计
2010年成立于上海,是百强设计企业中,唯一一家入围的深化设计公司;公司合作伙伴主要为全球知名的设计公司、地产公司以及其他知名企业。
项目档案
上海松江印象城
项目地点:上海松江区广富林街道新城主城B单元B06-03号地块商业项目
项目类型:商业
项目面积:精装面积:22313㎡;其中商场公区20606㎡,后场物业1707㎡。
甲方公司:上海力狮置业有限公司
设计顾问:ECE
设计时间:2019年11月-2021年9月
室内深化设计:上海大朴室内设计有限公司(dop设计)
设计亮点:南中庭空间层次丰富,造型时尚,适合举办各种展览及临时展厅,营造氛围,打造时尚打卡地。电梯厅及卫生间也都有独特的设计语言,给人留下时尚、高级的印象。
dop设计项目案例展示

△重庆怡置光环

△上海黄浦——新天地南里商场改造

△上海漕河泾——赵巷园区科技绿洲

△上海W酒店

△苏州四季酒店

△杭州之门
- End -
文中部分图片源于网络,如有侵权,请联系小编~


