小项目可以用BIM吗?200㎡餐饮项目带你了解!(BIM实战项目一)
△星标 ☆dop设计,不错过每一篇干货文章
这两年,被问到最多的就是:室内这个行业还能不能干?底薪熬到吐都接不到好项目?转行没方向,“滴滴外卖”不甘心,继续死守又看不到希望,想要解决这个问题,还要从源头出发。

今天我不聊假大空式的理论,用一个200㎡的餐厅项目,带大家完整走一遍项目新流程。看完你就会明白,新技术不是“额外负担”,而是能让你效率翻倍的“破局利器”。
一、项目概况

项目名称:餐饮
项目地址:三线城市
室内面积:200㎡
设计周期:4天
修改周期:1天
设计需求:效果图+施工图+算量清单,后期少跑工地
设计师:1人
使用软件:Revit/D5
第一步:方案阶段,1个“模型”打通所有环节
很多人觉得REVIT建模比CAD麻烦,其实是没找对方法。不说虚的,先上图:
自动建模,加质不加“量”:

REVIT在放图的时候就能以双线的形式出现,设置好间距之后,直接画线,门窗等构件也是直接放,联动修改,而且附带的三维模型像是Revit的“赠品”一样,可以通过软件自带的功能,用来做净高分析,空间分析,日光分析,动线分析,面积分析等,这些分析功能也是CAD不具备的。

同时,这里的三维“赠品”也为后期效果图模型和施工图的立面框架提供了基础。
族库复用,多模态适配:
平面图中的家具可以直接从REVIT族库调用,也可以自己制作专属模型保存备用,同样也可以使用CAD图块代替revit模型,后期出效果图时直接拿SU和3D的模型代替。

多专业协同,提前避坑:对于现场比较复杂的项目,如改造类的项目,也可以在这一阶段把现场不可逆的构件通过建模形式提前搭建出来,避免了后期施工时的拆改浪费。这是CAD二维图纸永远做不到的“可视化协同”。

完成方案建模后,一个包含所有空间信息的三维模型就成型了,这不是简单的“布平面”,而是为后续所有工作打下数据基础。
第二步:效果图输出——告别“建模-渲染”割裂感

REVIT本身具备渲染功能,目前市面上大多数常用的渲染器都可以适配,能实现“建模即渲染”,加上在前期方案阶段的空间框架和布局定位,效率直接提升50%。
空间建模,打造核心“资产”:

revit的建模不同于SU和3D MAX,在创建的时候即可选择是否创建基层构造,搭建出来的硬装模型也是可以反复使用,同样收口方式,材料的搭接,工艺节点做法都可以做成“模型资产”,新来的小白在不需要了解工艺的情况下也能做出全套图纸,这点在连锁店项目上已经发挥的淋漓尽致。
材质赋予,还原真实质感:

在REVIT中直接为构件赋予材质贴图及施工图所显示的填充纹理,每个材质的光泽度、纹理都能精准调节。这里要注意,赋予材质时关联的参数会直接影响后续的算量精度。
实时渲染,快是迭代方案:

这一阶段我们可以在revit里面创建空间角度,链接渲染器后,revit里确定好的视角能被渲染器识别,坐等出图就可以了。如果出完图觉得灯光不合适,我们当场调整灯具功率参数,效果图同步更新,为落地效果做到心中有数;除此之外,视频漫游,AI渲图等也是轻松拿捏。
最关键的是,在这个环节中,平面图和三维模型是”一体化”生成的,不会出现CAD平面和3D MAX模型不一致的问题,后期修改时也不用两边反复调整、核对
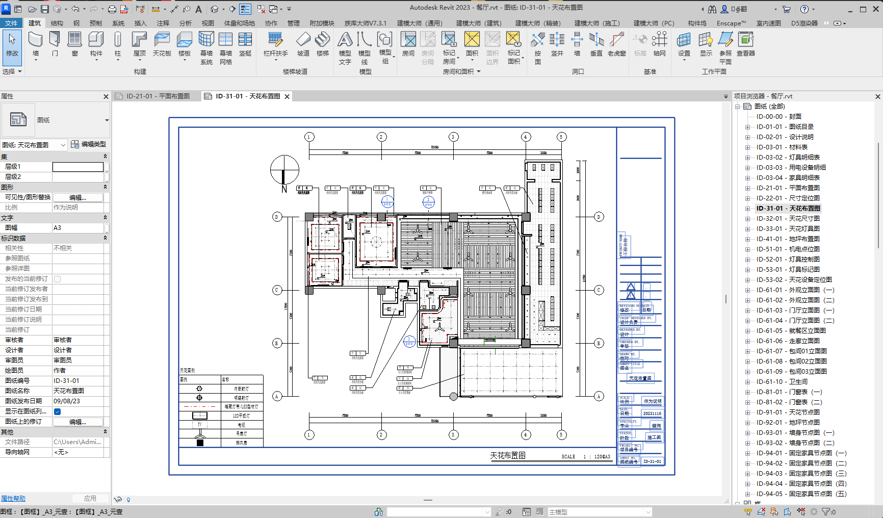
第三步:施工图绘制——精准到毫米的专业输出

施工图是设计落地的核心,也是最考验设计师专业度的环节。用REVIT出施工图,最大的优势就是“三维模型驱动二维图纸”,杜绝错漏碰缺。
自动生成平立剖图纸:

基于之前的三维模型,直接生成平面布置图、天花图、立面图和剖面图。所有图纸的尺寸都是关联的,比如调整了包间门的位置,立面图和剖面图会自动同步,再也不用人工核对尺寸,避免了CAD中“图纸对不上”的低级错误。
专业图纸一键导出:

可以根据施工要求分别导出各专业的CAD和PDF版本图纸,既能保证项目需求,又能提高工作效率,能生成图纸目录和材料清单,直接对接施工方和采购方,流程更规范。
第四部:算量计价,让数据说话,告别“不靠谱”

很多设计师在算量环节栽跟头,要么漏算构件,要么数据不准,导致预算超支被甲方追责。而REVIT的参数化模型,自带“数据属性”,算量环节能实现“精准高效”。
实物计量自动提取:

REVIT能直接提取墙体体积、地面面积、吊顶面积等基础数据,如常用的家具表,洁具表,五金表,灯具表等,如果项目需要,还能基于材质提取每种材料用了多少平方。
造价清单智能生成:

revit生成的清单可以套用计算公式,在每个生成的计量后面加入单价,即可完成预算工作,除了自定义单价以外,结合算量插件还可以做到构件扣减规则自动执行,模板面积、抹灰面积等复杂工程量统计工作,并且符合工程要求
技术迭代不可怕,固守陈规才危险!
室内行业的内卷,本质上是“低水平竞争”的内卷。当别人还在CAD里逐段改图、手动算量时,你用REVIT一天完成别人三天的工作,用精准数据赢得甲方信任,自然能跳出内卷的漩涡。技术并不会带来公平,它只是加快了比赛结束哨声的到来。
好了,本期的dop干货就到这儿~


