dop设计丨嘉兴南湖天地五芳斋节令食坊

来源:dop设计
深化设计是行业细分的结果。作为一家专业的深化设计公司,上海大朴室内设计有限公司(dop设计)自2010年成立至今,一直用严格的标准来要求自己,秉持着严谨的工作态度,认真对待着每一个项目。
正是这份严于律己的坚持,成就了大朴如今的荣耀。dop设计始终坚守初心,追求匠人精神,不断地为行业贡献着自己的光和热。

来源:www.baidu.com
细数大朴过往的设计项目,在所涉猎的五星级酒店、商业综合体、总部办公楼及相关地产项目等众多领域中,商业空间的设计总伴随着大胆而新颖的主题。
在色彩、材质、理念、艺术性上,既要求保持前卫,还需要保证空间的实用与功能。每个设计都有自己不同的方式来探索空间的主题。

项目概况及亮点
南湖天地是嘉兴重要的商业生态圈,以精致零售、高品质餐饮为依托,打造漫步式城市生活空间,开放式的街区商业设计语言,坡屋顶形制与现代化建筑立面的古今交融,缔造出南湖天地的传统建筑美感。
1、项目概况
五芳斋节令食坊坐落于嘉兴文旅商业超级IP南湖天地,开放式的空间,小桥流水的江南水乡神韵,与嘉兴城市新风貌定位紧密吻合。传统的文化元素,融入现代的设计手法,让整个空间从外到内都散发着光彩。

实景图
来源:嘉兴日报-嘉兴在线
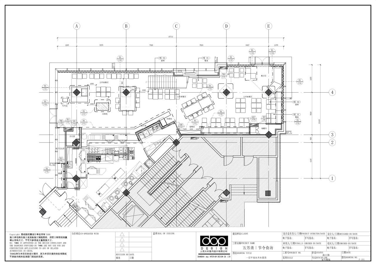
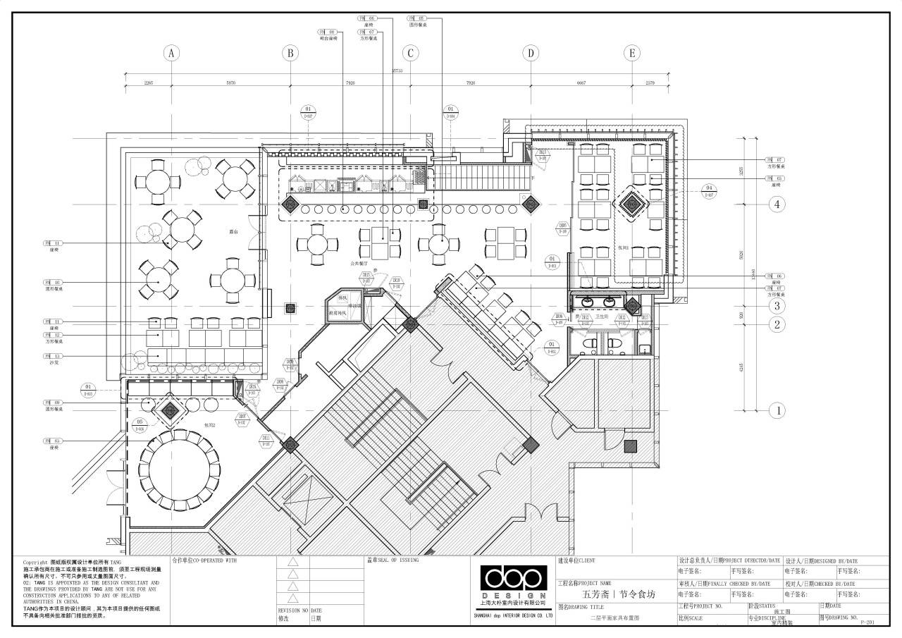
此次项目面积1400㎡,分为上下两层。从功能划分来看,一层主要是零售带简餐,二层则兼备了餐饮和酒吧的功能。

一层平面布置图
来源:dop设计

二层平面布置图
来源:dop设计
2、项目亮点
a、Led灯糯米墙打破传统,打造一场光与影的盛宴。
糯米墙集合了近5000个艺术框架和约2700个灯光装置,通过不同的排列组合,构建出一个全新的世界。糯米墙可根据不同的季节主题、节日主题变幻灯光的颜色,并组合成相应主题的像素风格画面,有需求的话还可以定制有趣新鲜的艺术主题幕墙。

实景图
来源:dop设计
Led灯墙的应用,打破了传统建筑材料样板的造型,摒弃单调、无互动性的设计,灯光的变化给使用者从视觉、触觉甚至听觉等多方面带来全新的体验。

室外效果图
来源:dop设计
外景内借,大面积的落地玻璃幕墙,配以柔和、灵动的灯光,模糊了室内外空间界限。
以光为载体,通过视觉化的形式,倾诉自然之形与人文之意的诗意交汇。光影浮动,吹纱如雾,绿植焕发勃勃生机,灵动抒叙生命之美。

室内效果图
来源:dop设计

深化施工图
来源:dop设计
b、丰富的设计元素
由内而外竖向排列的格栅,井然有序,为空间增加了节奏感。错落有致的小壁灯点缀其上,宛如深邃的竹林,优雅而宁静。

实景图
来源:dop设计
传统的方形吊灯,独具东方韵味。暖黄色的灯光,平添了几分暖意,让食客彻底的放松下来,卸下一身尘劳,享受这难得的时光。


深化施工图
来源:dop设计
独特的24节气造型墙,将自然界的材料运用于室内,淡雅节制,充分体现了五芳斋“顺应自然,好好吃饭”的文化理念。

实景图
来源:dop设计
楼梯和造型柱采用了斯卡帕形式,通过片段的有序并置与分离,层层而上,以现代的空间力量及仪式感形成空间结构的特色。


室内效果图
来源:dop设计


深化施工图
来源:dop设计
c、大胆的运用红色。
五芳斋节令食坊在继承五芳斋百年品牌优良传统的同时,不断挖掘进化品牌力,将传统与革新进行碰撞,着力打造一个创新混融的就餐空间。
被广泛用于顶面和墙面的微水泥材质,热烈又饱满的红色,细腻的肌理,重重脉络悉见设计的初衷。


室内效果图
来源:dop设计

深化施工图
来源:dop设计
延伸至二楼的红色,通过深色不锈钢的收融,使得空间的猛烈气势在此得到缓冲与消解。通过块面的区分,材质肌理间的明暗对比使之得以被重新诠释。

实景图
来源:dop设计


深化施工图
来源:dop设计

dop设计在项目中的价值
在此次项目中,由于设计方是日方的设计团队,前期给到的提资里,扩初图并不能满足深化施工图的要求,对我们的工作开展极不方便。
而且由于设计前期没有我们的介入,方案团队在设计时,没有把厨房区域的排烟排风等机电信息考虑进去,使得原有的设备不满足现实需求。而新增设备的话对现有方案又影响很大,这就使得施工图纸又经过了多次反复的调整,才最终得已完成。
dop设计团队克服重重困难,充分发挥自身优势,与各方协调合作,为项目解决多重问题,力求设计的完美落地,积极发挥了深化设计在项目中的绝对作用。
↓↓↓ 其它图纸(部分)展示 ↓↓↓

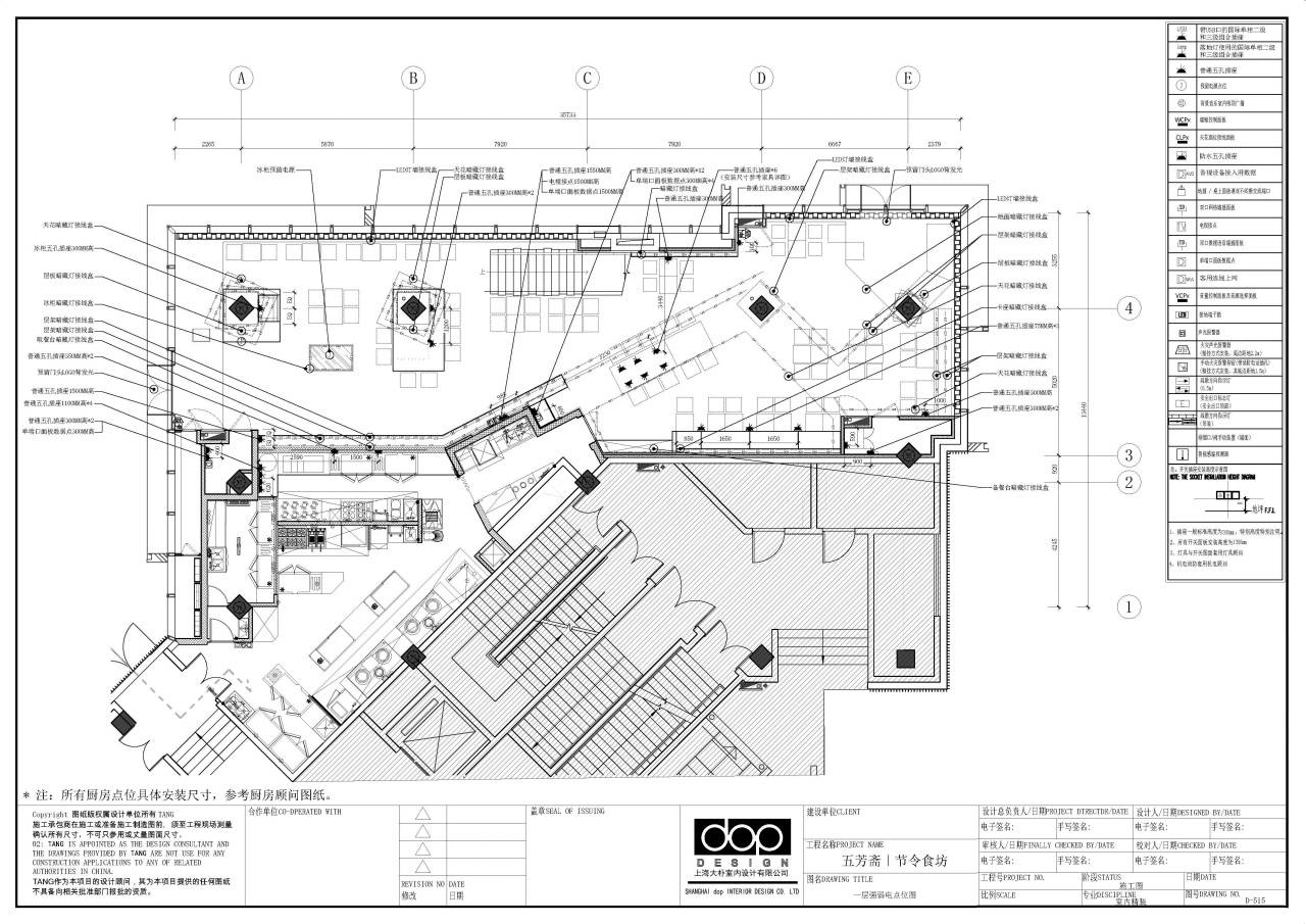
一层强弱电点位图

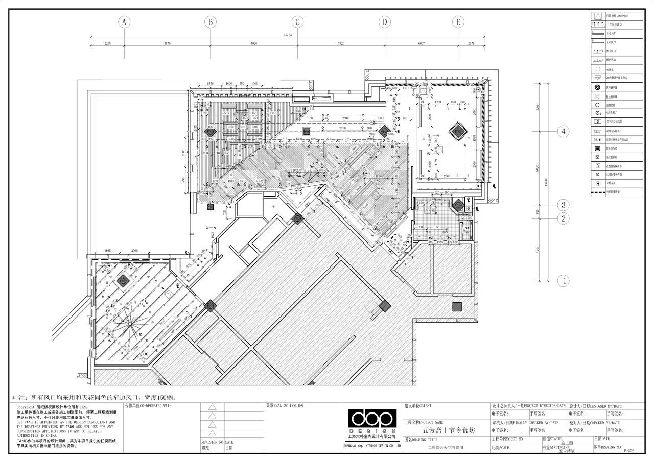
二层综合天花布置图

一层立面图

二层立面图

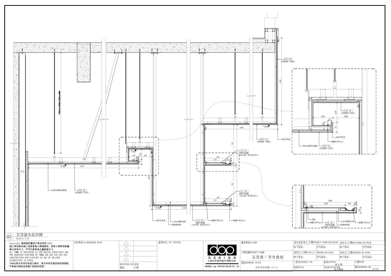
天花节点详图

固定家具详图

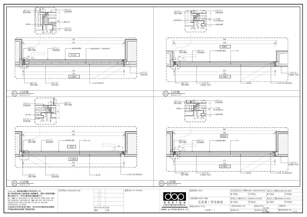
门详图
以上施工图纸均来源于dop设计
项目档案
-End-
文中部分图片源于网络,如有侵权,请联系小编~
dop设计项目案例展示

△重庆怡置光环
https://mp.weixin.qq.com/s/huPXundb9sGRcA1DZqEnPg

△上海黄浦——新天地南里商场改造
https://mp.weixin.qq.com/s/NEVeINAwRJj_QhYfmD3aVA

△上海漕河泾——赵巷园区科技绿洲
https://mp.weixin.qq.com/s/UrubePmr1RHmlbsFWY1aXA

△上海W酒店

△蔚来汽车展厅

