dop设计丨海南南燕湾斯攀瓦酒店

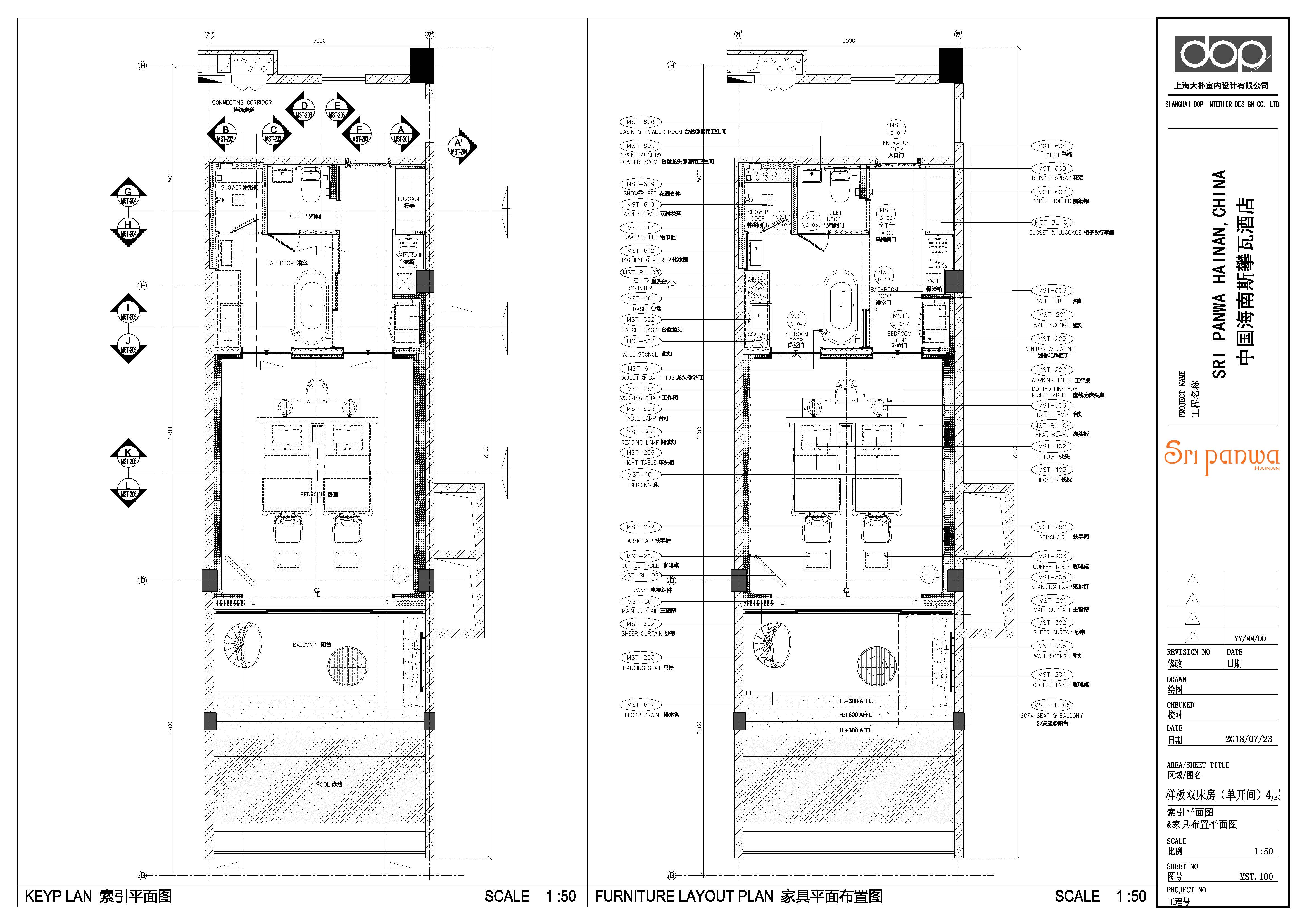
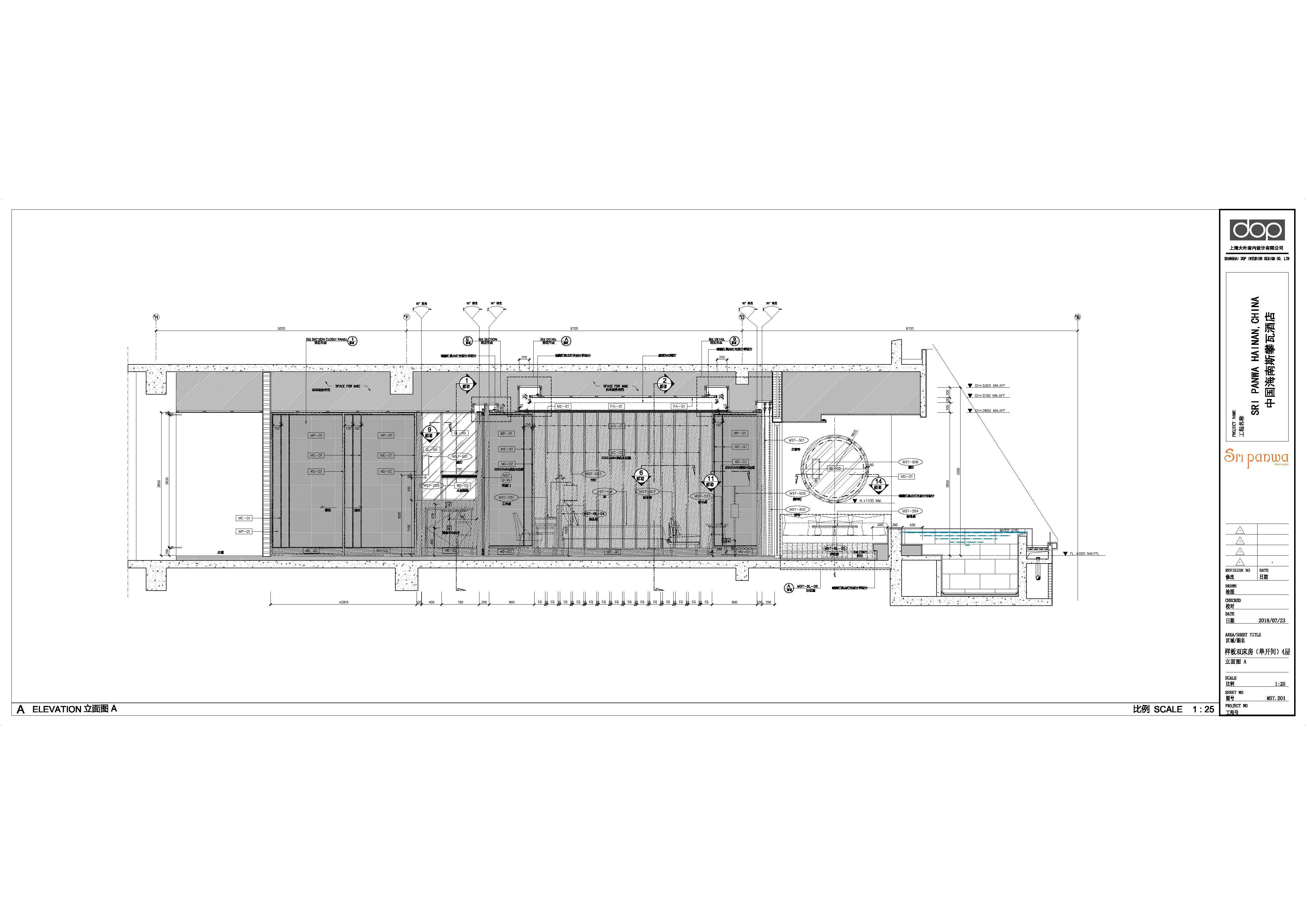
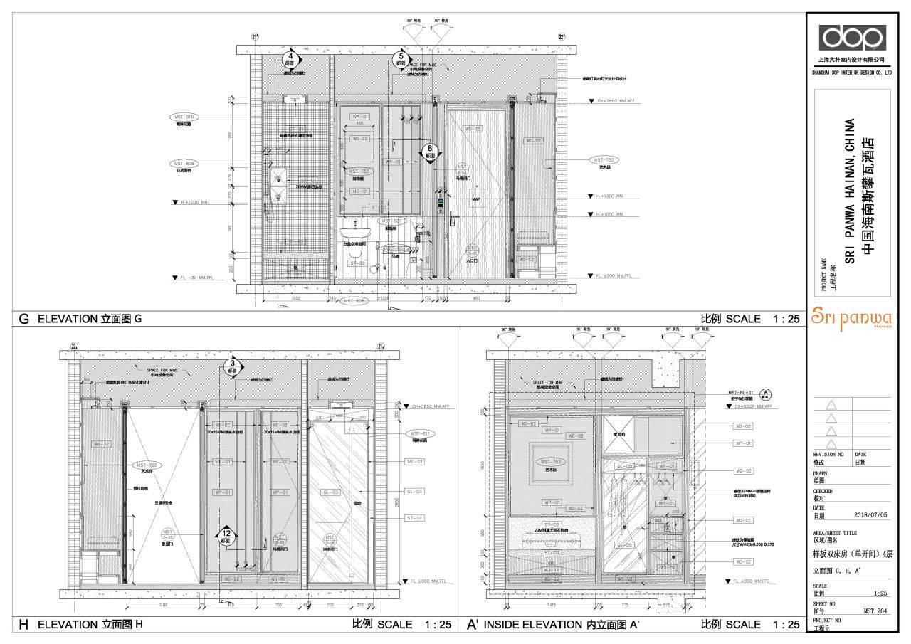
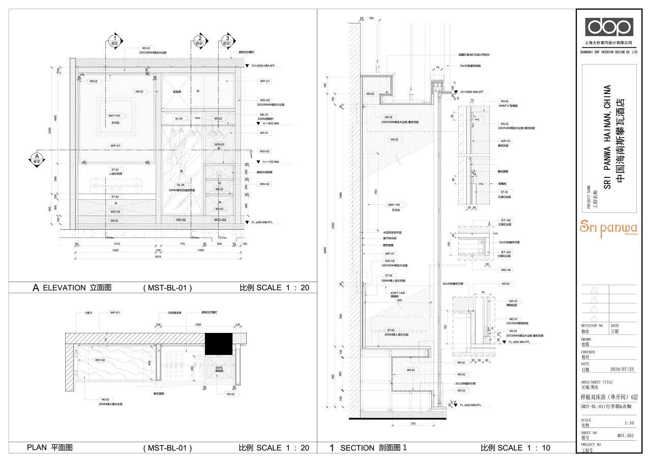
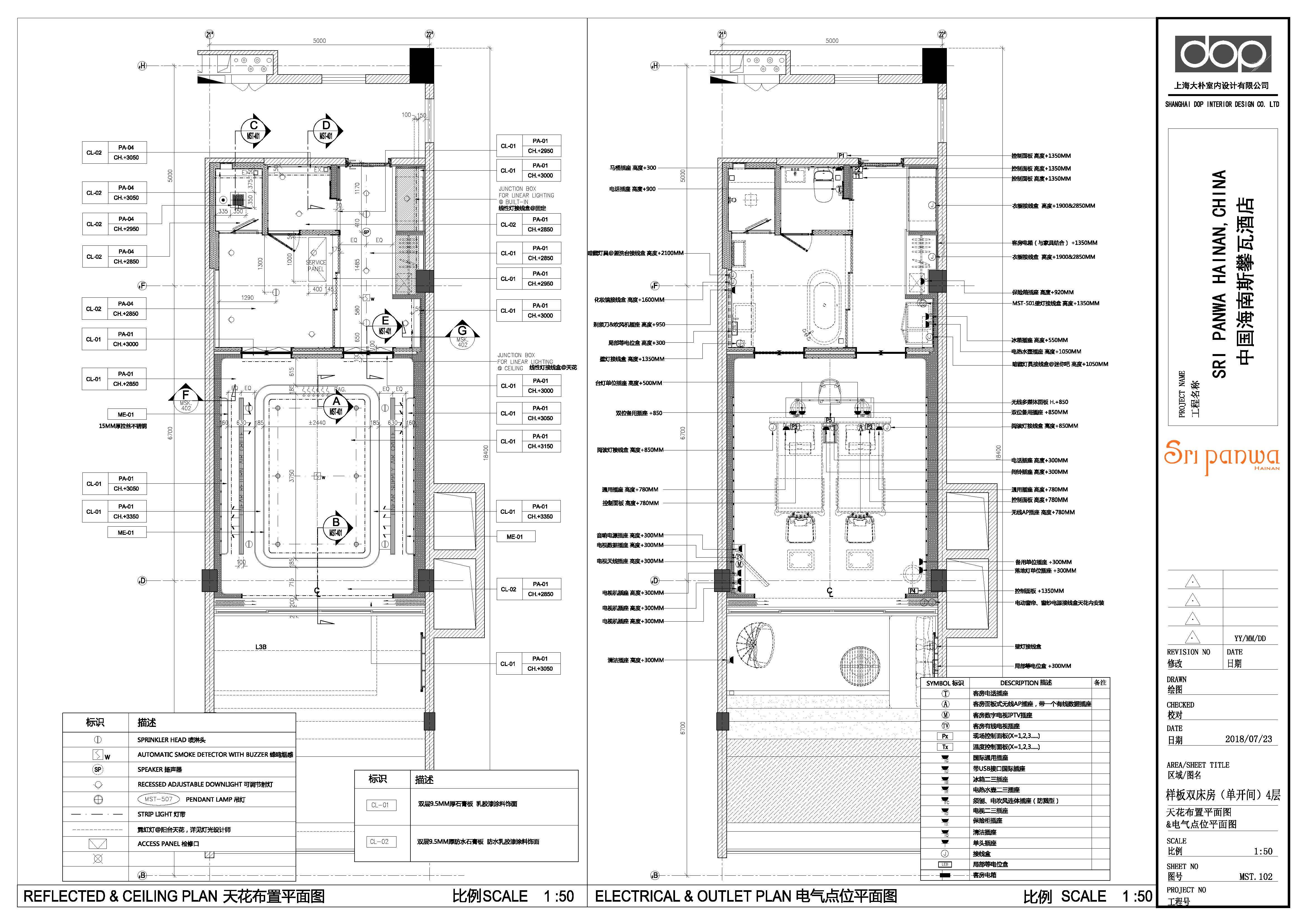
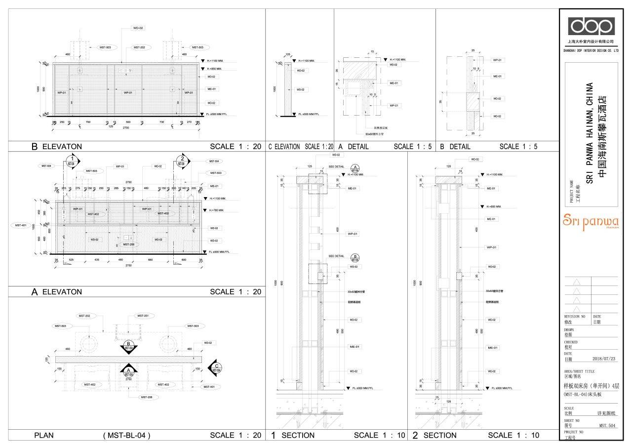
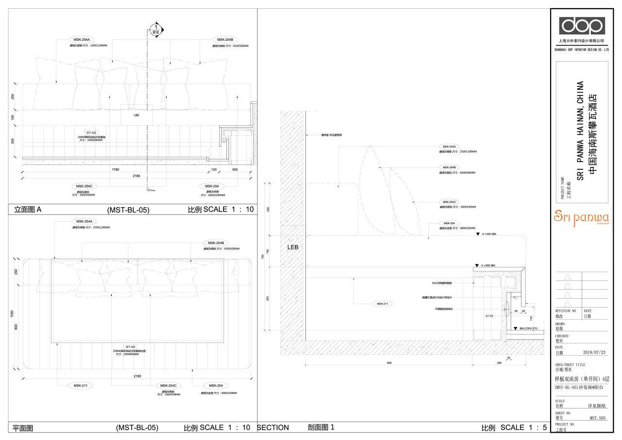
深化设计是行业细分的结果,作为一家专业的深化设计公司,上海大朴室内设计有限公司(dop设计)自2010年成立至今,一直用严格的标准来要求自己,秉持着严谨的工作态度,认真对待着每一个项目。 正是这份严于律己的坚持,成就了大朴如今的荣耀。dop设计始终坚守初心,追求匠人精神,不断地为行业贡献着自己的光和热。 01. 项目概况及亮点 www.shejidedao.com丨联系VX:dop024 回复“公众号”加群 1、项目概况 海南南燕湾斯攀瓦度假酒店项目,由泰国奢华度假酒店SRI PANWA,泰国HABITA、PLA、P49三大国际顶尖设计团队共同打造。项目位于海南东线沿海开发热点——石梅湾、南燕湾、神州半岛三湾核心。 周边配套设施丰富,星级酒店群、滨海高尔夫球场、顶级游艇会、高端休闲娱乐和商业生活服务设施俱全,可满足超星级度假的全方位需求。 内装风格通过材料及色彩运用透露着不露锋芒的品味,倡导简约的轻畅风格。 作为深化设计方,上海大朴室内设计(dop设计)的任务很明确:把国际团队的创意方案“翻译”成能直接施工的图纸,同时协调酒店精装区域(客房、大堂、水疗)和后勤区的装饰设计落地。 2、项目亮点 酒店每一间客房的景观露台上都设有私人泳池,退台式设计在保证了私密性的同时仍可享受无敌海景。 室内设计受海南热带岛屿自然元素的启发,并结合现代艺术将迪斯科球、涂鸦墙、波普艺术和斯攀瓦酒店专属的强烈对比色叠加使用,引入有机的造型、肌理和光影。 夜幕降临,酒店便是另一面风情,从其他任何地方都无法体验到的充满活力的炫丽灯光,和高能音乐将展现在客人面前。 这背后的施工图深化图纸,也是需要相当专业的经验,才能让每一处细节展现出来。 02. dop设计在项目中的价值 www.shejidedao.com丨联系VX:dop024 回复“公众号”加群 dop设计团队负责从概念方案到实际施工,这中间需要经历无数细节的转化与衔接。这正是我们深化设计存在的意义。dop设计深化团队,在酒店、商业空间领域深耕十余年。 我们深知:酒店客房对空间利用要求严苛,1厘米的尺寸偏差可能导致家具无法安装或动线不畅。 深化设计的核心在于对细节的极致把控。在这个项目中,我们从材料的选择到施工工艺的优化,都进行了严格的把控。 每个插座高度都与家具平面图严格对应:床头柜上方的USB插座精准避开台灯底座,浴室镜前灯的线路预埋避开给水管位。 国际化设计团队的协作: 与泰国SRI PANWA以及HABITA、PLA、P49三大国际顶尖设计团队的合作,是一次非常宝贵的经验。在项目中,我们深度解读了国际化的设计理念,还通过深化设计将这些理念落地,确保了设计与施工的完美结合。 作为从业14年的深化团队,我们最深的体会是:高端项目拼的不是创意多炫,而是细节多稳。 一套完整的施工图,能让工人知道“螺丝往哪拧”,而不是靠经验猜测; 一张精准的节点图,能省去现场返工的三天时间,避免材料和人工的浪费; 一次彻底的图纸交底,能让国际设计师的方案在国内规范框架下“安全着陆”。 在行业精细化分工的今天,深化设计早已不是“画图民工”,而是串联创意与现实的“专业翻译官”。 项目档案 -End- 文中部分图片源于网络,如有侵权,请联系小编~























