设计师去施工现场,到底应该做什么?看什么?
很多设计师都有这样的经验感受:每天都在画施工图、做设计、出方案...但是真的到了施工现场却一脸蒙圈...因为不知道该从哪下手?该做什么?看什么?
今天就带小伙伴看一下大型装饰工程深化项目的现场勘察流程,希望可以给到大家一个去施工现场的学习方法。本篇文章主要解决一下问题:
1、为什么要去施工现场?
2、到施工现场应该做什么?
3、到施工现场需要准备什么?
4、有哪些注意要点?
01. 为什么要去看施工现场?
1、发现问题
你一定碰到过这样的情况:建筑图纸上没有加固的结构柱,但实际现场却有;图纸上显示有管弄井,但现场没有...
类似于如上问题,就是诱导我们要去现场核对的最核心的原因之一。很多时候我们不能太过依赖建筑设计图纸。
因为在建筑施工过程中,可能会因工期紧张更换部分建筑功能、施工方偷工减料而漏掉管线或墙体,从而导致你所去到的施工现场与图纸是存在差异的,如果这些问题没有及时发现,可能会对你的设计方案造成很大影响。
2、解决问题
在现场发现问题后就够了吗?当然不是,如果只是发现问题,我们完全可以通过现场相机和远程监控了解现场的这些问题,但是,面对这些情况,不实时跟进怎么行呢?
比如:工人师傅没有按照设计图纸进行施工或施工不到位;前期设计的选材用料很好,但实际不能落地...面对这样的情形,是只有我们能够在现场才能解决的。
3、现场灵感
还有一点就是现场灵感。
就像:你明明设计了一间12平方的空间,在图纸上放完桌椅板凳后,感觉空间完全够用,结果到了现场后,看到地面的墙体定位放线后,发现现场尺度太小,需要调整空间大小。
再比如:通过SU模型判断认为3m的层高,配Loft风非常完美,结果现场考察后,由于光线和楼层结构原因,发现土的一逼...
02. 到施工现场应该做什么?
不同项目类型,不同现场阶段去到现场的目的是不同的,因此,在不同目的下,去到现场需要关注的点也是不一样的。
可能多数设计师最困难的点在于:在项目还没有开始时,跟着领导去做现场勘测时会一头雾水。住宅、别墅这类小型项目可能还好一些,但是,一旦涉及到类似办公、餐饮或商店这种中、大型项目,可以说现场勘测阶段对于设计师来说绝对是一个灾难。
经常会出现同样一个项目在勘测阶段来回折腾好几遍的情况,为了便于你在现场勘测阶段不漏项,给你准备了一份现场勘测核对清单,希望你下次去到现场可以把它当成清单,逐步核对;
1、复核建筑墙(柱)体、二次砌筑墙体,门、窗洞尺寸
2、复核建筑结构梁及标高
3、复核管井位置及尺寸,检修门位置及尺寸
4、复核消火栓、配电箱位置
5、复核天花上部排烟口位置、大风管走向
6、复核雨水管、暖通立管的位置
7、复核幕墙与地面的高差,幕墙与楼板连接方式
8、对已经装修的区域进行测量
03. 到施工现场需要准备什么?
知道了到施工现场需要做什么了,接下来我们就需要准备相应的资料、工具,还要知道具体的勘察方法。
1、原建筑图纸
2、机电图纸(与建筑图配套)
△暖通管线图
3、卷尺、红外线测距仪、不同颜色的笔、本子、相机(没有可用手机)
04. 有哪些注意要点?
1、柱子
① 需要确定结构柱的距离与建筑图是否一致,至少测3个不同的位置;
② 结构柱柱身尺寸、是否有柱础、高层的柱子(高区和低区柱子的尺寸可能有不同);
③ 确定结构柱的材料,有的柱子可能已做装饰,需在图纸上要标注清楚(有些柱子外面包的是方的,内部结构可能是圆的);
④ 需要注意柱子上是否有梁托,会对层高有影响。
2、墙体
① 需要注意现场墙体与图纸墙体的位置是否一致,不同的位置要标注出来,并测量尺寸;
② 确定现场门、窗洞位置与图纸是否一致,包括检修门的位置;
③ 墙体是否有开洞和风口等设备,若有需把尺寸测量清楚,并标注好;
④ 确定管井位置,核对建筑图纸,再看现场是否有楼板开洞;
⑤ 设备房位置,有些设备房的现场尺寸与图纸有不同(家装一般不需要)
3、幕墙、窗台
① 玻璃幕墙开启窗扇的位置,此范围内不能做墙进行遮挡;
② 玻璃幕墙靠室内一侧防火封堵是否施工完毕、防火棉是否填充、外部封闭铝板是否安装完成;
③ 玻璃幕墙外栏杆的安装形式、尺寸及高度;
④ 窗台是否有飘窗、确定窗台高度和宽度;
⑤ 玻璃幕墙与地面的高度差、收口方式(有些玻璃幕墙下边缘与结构楼板高度有误差或坡度)
4、门
除了常规门,还需注意防火门和检修门的位置、尺寸、开启方向。
5、梁
① 确定梁的布置形式(主次梁、井字梁、钢梁)、最大梁的位置、梁底的标高(最低梁和一般梁的标高)
② 楼板是否有降板,特别是卫生间、地下室;
③ 注意梁的大跨度区域(长度超过10m),梁可能会变截面、梯形梁;
④ 中庭区域梁的分布形式、标高、有无突出楼板以及管线在天花上的最低点位置。
6、地坪
① 地面是否有开洞、有降板;
② 现场地坪的材质,需要保留的要记录铺贴范围尺寸、高差;
③ 地坪与扶手电梯、电梯门处的高差
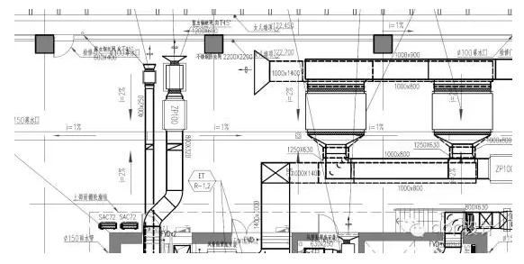
7、机电
① 消火栓位置和配电箱位置
② 竖向管道位置,特别是在柱子周边
③ 消防卷帘位置及形式(垂直或侧向、双道或单道)、卷帘箱高度;
④ 大型风口位置:排烟口、回风口、排油烟口位置;
⑤ 管线留洞位置、管线的性质(雨水管、排水管、消防管、给水管),为与机电设计沟通做准备;
⑥ 风管标高和走向、管道的性质(空调送回风、排风、排烟、新风、排油烟);
⑦ 是否有煤气管道,管道一般为黄色,要在图纸上标注出来。
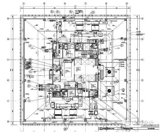
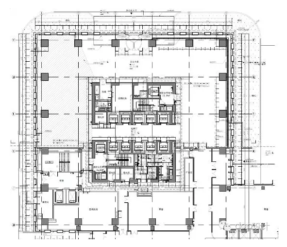
8、记录勘查成果
△呈现形式1
△呈现形式2
同时在跟进完现场后,为了便于更直观的记忆,可以通过上图所示的方式来进行记录,通过可视化的形式,把现场勘查的结果,所有有问题的地方反映到图纸上。用云线标注出有问题的区域,配合现场照片,力求直观表达现状。
小结.
最后,提醒小伙伴们去施工现场一定要注意安全。
好了,今天的内容就讲到这了,咱们来总结一下:
那么,大家对去施工现场还有哪些疑问和见解呢?欢迎在下方留言哦~
- End -

