预埋式极简风口怎么装?
△星标 ☆dop设计,不错过每一篇干货文章
在现代室内设计中,空调风口的处理已成为衡量设计品质的关键细节。

传统风口往往因突出的边框,和明显的分割线而破坏空间整体性。

而预埋式极简风口通过技术创新,实现了风口与吊顶的完美融合,成为高端项目的标志性选择。
本文将带你系统解析预埋式极简风口,主要从以下3个问题切入:
1、什么是预埋式极简风口?
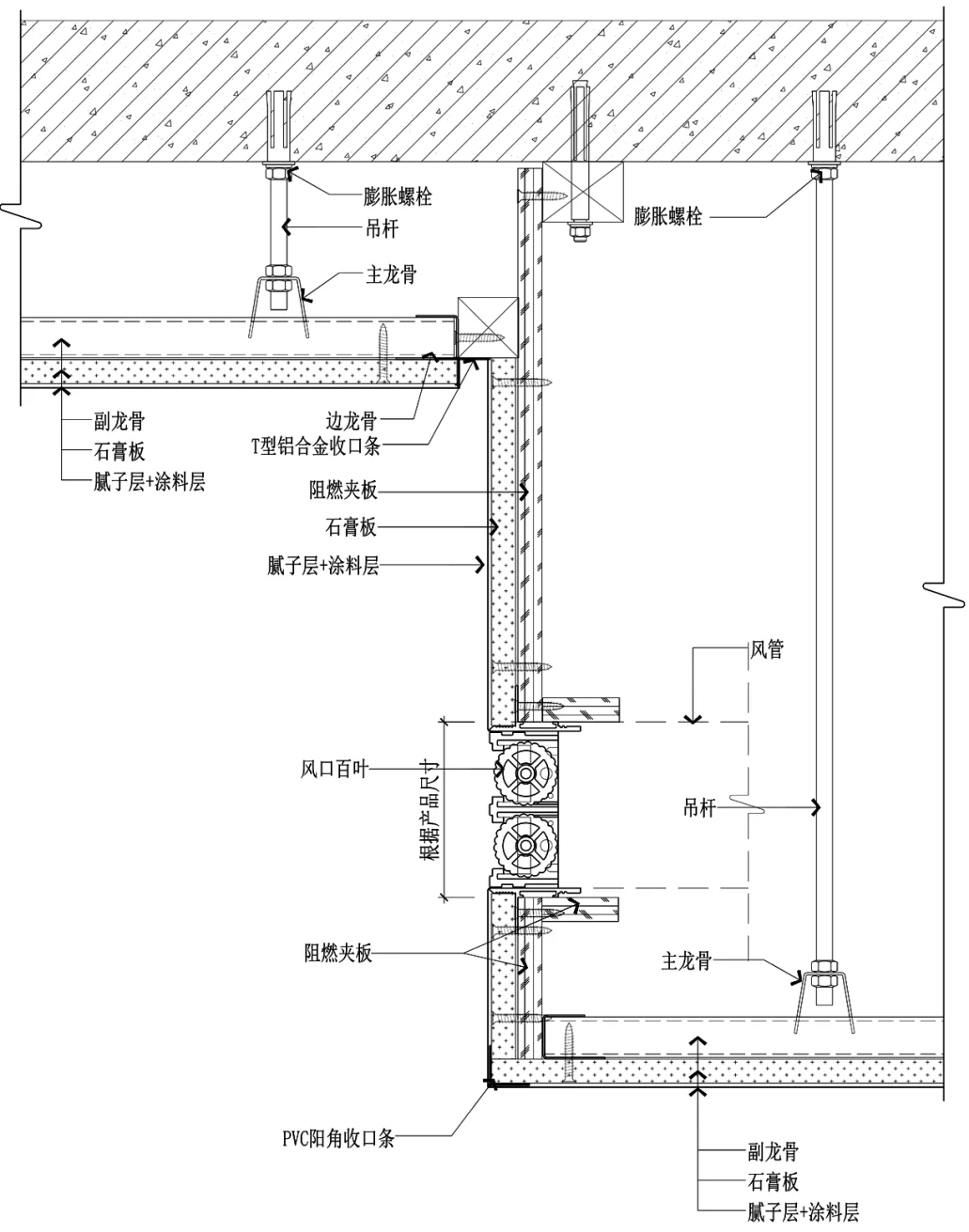
2、预埋式极简风口如何施工?
3、极简风口的注意事项有哪些?
01. 什么是预埋式极简风口?
www.shejidedao.com丨dop设计公众号回复“社群”加群
预埋式极简风口是采用"先预埋后安装"的创新工艺,将边框提前嵌入石膏板基层,最终实现无边框的极简效果。


这种设计理念源于对空间纯净度的极致追求,通过将功能性构件转化为隐形设计,让空调风口不再成为顶面的视觉干扰点。
02. 预埋式极简风口如何施工?
www.shejidedao.com丨dop设计公众号回复“社群”加群
预埋式风口的施工质量直接决定最终效果,主要是五步施工法。


第一步:精确定位,要求木工根据设计图纸在吊顶预留风口位置,开孔尺寸需比实际风口四周大,为边框预埋留出精确空间。切口平整度误差需控制在2mm以内,确保后期安装无偏差。

第二步:边框安装需要使用专用自攻螺丝固定,安装后需用水平仪检测平整度。

第三步:石膏板封板尤为关键,9.5mm厚石膏板的切割必须精准,确保完全覆盖边框而又不阻碍叶片安装。
第四步:腻子施工需要严格控制厚度在3mm以内,施工前必须用分色纸保护风口内部。
最后一步:叶片安装要确保调节灵活,风口与顶面平整度误差不大于2mm。

整个施工过程需要空调专业与木工、油漆工种的精密配合,任何环节的疏忽都会影响最终效果。
03. 极简风口的注意事项有哪些?
www.shejidedao.com丨dop设计公众号回复“社群”加群
超长风口的处理是常见的技术难点:

当风口长度超过标准尺寸需要分段时,必须使用专用连接条进行拼接,拼接缝宽度不应大于1mm。
对于不同空间功能,需要采用不同的送回风方式:

侧送下回适用于吊顶进深小的空间,而下送下回则更适合吊顶空间充足的场合。
防结露措施需要系统化解决方案:

除了选择ABS材质外,风口内部及风管应进行黑色喷涂处理,减少冷量损失。
最后:
预埋式极简风口通过系统化的设计思维和技术创新,为我们室内设计师提供了实现极致美学的技术支撑。掌握这一专业技术,不仅能够提升项目品质,更能体现设计师对细节的深度把控能力,在高端设计市场中建立专业优势。
好了,本期的dop干货就到这儿,如有帮助,评论区扣“日拱一卒”,支持一下dop~


