dop设计丨长飞光纤产业大楼
dop设计(ID:dopdesign)原创
作者丨dop设计
编辑丨丽子
深化设计是行业细分的结果,作为一家专业的深化设计公司,上海大朴室内设计有限公司(dop设计)自2010年成立至今,一直用严格的标准来要求自己,秉持着严谨的工作态度,认真对待着每一个项目。

正是这份严于律己的坚持,成就了大朴如今的荣耀。dop设计始终坚守初心,追求匠人精神,不断地为行业贡献着自己的光和热。
01. 项目概况及亮点
www.shejidedao.com丨联系VX:dop024 回复“公众号”加群
1、项目概况
长飞光纤产业大楼室内设计装修工程,由贝加艾奇(上海)建筑设计咨询有限公司提供室内设计服务。项目位于武汉市未来光谷的核心区,并处于国家级开发区东湖高新区的中心区域——西边邻光谷大道,南临光谷创业街。


该设计延续了“智慧联接美好生活”的品牌使命,体现了“客户责任创新共赢”的企业核心价值观,并打造了协作促创新、绿色可持续的行业办公总部设计典范。


其室内设计的灵感,来自光纤及其制造生产阶段形态。透过建筑外立面洒进室内的自然光束,与室内色彩、中庭雕塑般的空间线条相结合,仿若光纤制作过程的艺术化呈现。

作为深化设计方,上海大朴室内设计(dop设计)的任务很明确:把设计团队的创意方案“翻译”成能直接施工的图纸。
2、项目亮点
本项目的中央中庭是员工社交、互动和共享的中心,它是一个动态灵活空间。自然光搭配人性化材料的色调及质感,为空间提供了一种舒适平和的氛围。


在家具和软装选择中,为了整体效果,设计师加入了更丰富的图案和颜色,创造了一个有凝聚力和激励性的环境。


餐厅室内设计使用了明快色彩和强烈视觉装饰,增加了空间活力,具有吸音功能的面板减少了噪音,营造出愉快的用餐氛围。

该项目独特的室内设计和建筑元素,可以激励员工和访客尽情享受富有创造力和活力的办公空间,收获美好工作体验。
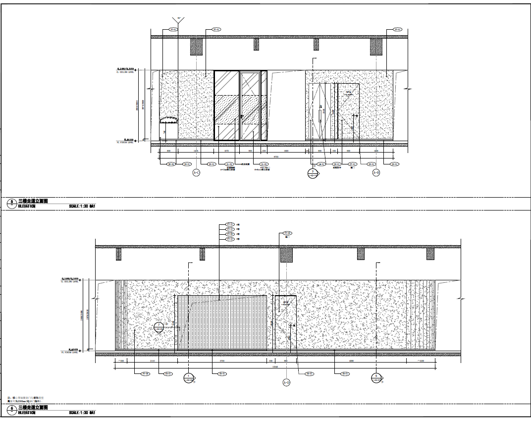
这背后的施工图深化图纸,也是需要相当专业的经验,才能让每一处细节展现出来。
02. dop设计在项目中的价值
www.shejidedao.com丨联系VX:dop024 回复“公众号”加群
dop设计团队负责从概念方案到实际施工,这中间需要经历无数细节的转化与衔接。这正是我们深化设计存在的意义。dop设计深化团队,在办公、酒店、商业等空间领域深耕十余年。



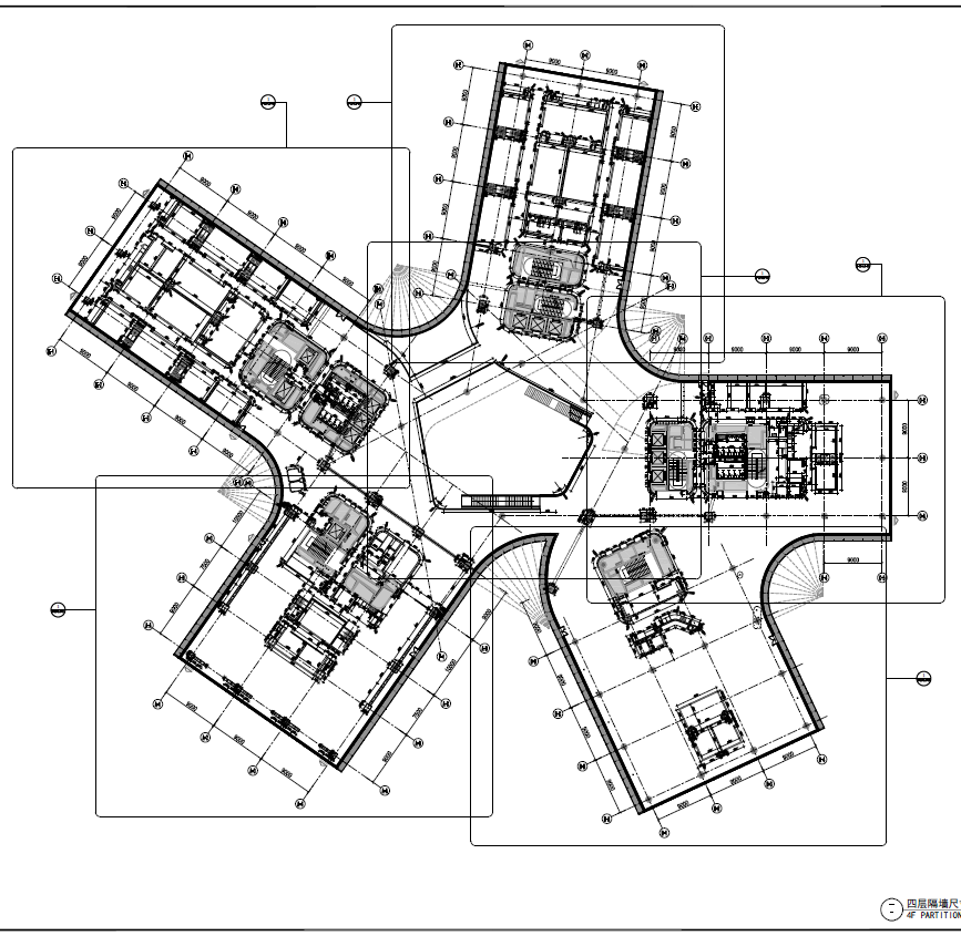
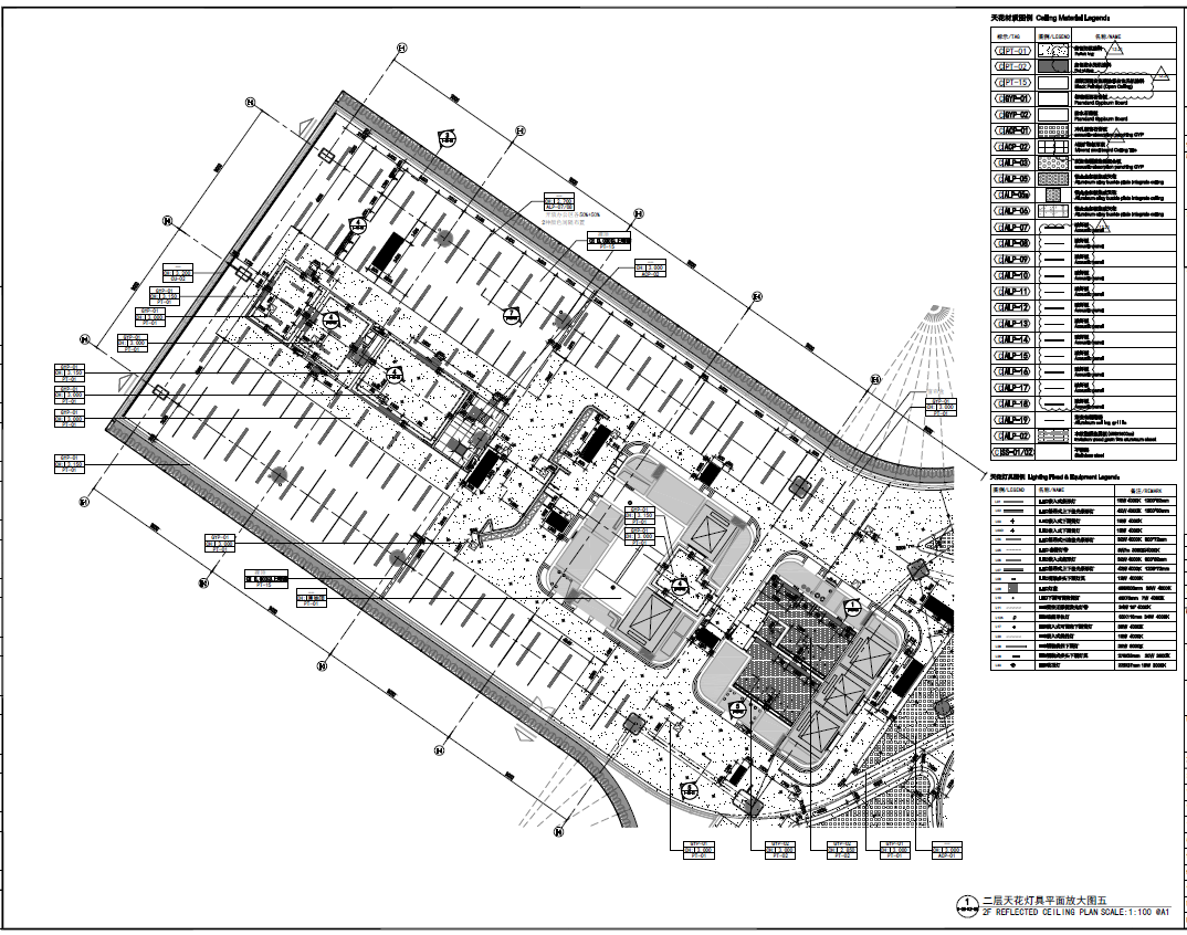
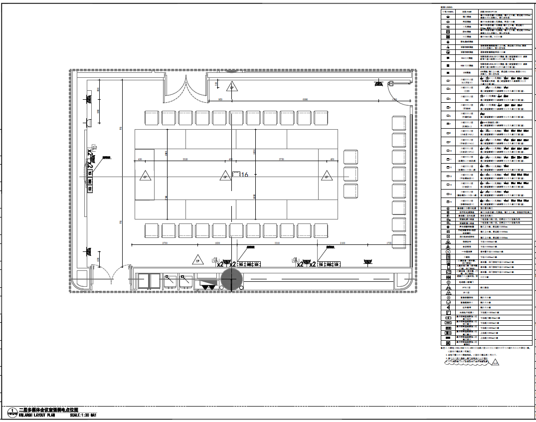
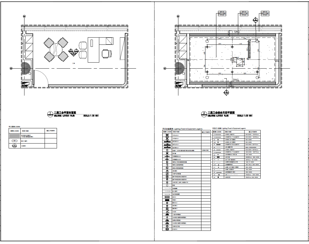
我们深知:办公空间对点位布置要求严苛,灯具排布、插座布置等细节的不合理,将会严重影响办公环境舒适性及员工的工作效率。

深化设计的核心在于对细节的极致把控。在这个项目中,我们从材料的选择到施工工艺的优化,都进行了严格的把控。

每个插座点位都与家具平面图严格对应:根据办公室所用电器的功率选择相应的插头插座,办公区、会议室等位置的插座点位内嵌于家具桌面面板内,排线通过蛇形管或家具桌腿等与面板连接,隐藏弱化插座面板及电线。


与设计团队的协作:
与贝加艾奇(上海)建筑设计咨询有限公司的合作,是一次非常宝贵的经验。在项目中,我们深度解读了其设计理念,还通过深化设计将这些理念落地,确保了设计与施工的完美结合。






作为从业14年的深化团队,我们最深的体会是:高端项目拼的不是创意多炫,而是细节多稳。

一套完整的施工图,能让工人知道“螺丝往哪拧”,而不是靠经验猜测;
一张精准的节点图,能省去现场返工的三天时间,避免材料和人工的浪费;
一次彻底的图纸交底,能让方案设计师的创意在规范标准的框架下“安全着陆”。
在行业精细化分工的今天,深化设计早已不是“画图民工”,而是串联创意与现实的“专业翻译官”。
项目档案
-End-
文中部分图片源于网络,如有侵权,请联系小编~
dop设计项目案例展示

△重庆怡置光环

△上海黄浦——新天地南里商场改造

△上海漕河泾——赵巷园区科技绿洲

△上海W酒店

△蔚来汽车展厅

△苏州四季酒店

△杭州之门

△松江印象城

△嘉兴五芳斋
dop设计
2010年成立于上海,是百强设计企业中,唯一一家入围的深化设计公司;公司合作伙伴主要为全球知名的设计公司、地产公司以及其他知名企业。

- End -
文中部分图片源于网络,如有侵权,请联系小编~



