一个好的平面,应该具备哪些特点?

dop设计(ID:dopdesign)原创
作者丨黑皮皮
编辑丨行之
“平面为王”这句话很多设计师都听过,一个成熟的平面方案,对于整个空间设计最后效果呈现十分重要。好的设计方案单从平面上就可以让人联想出空间的效果,所以平面是空间的生成元。
但对于一个优秀的平面来说,只从表面上满足客户需求往往是不够的,在满足功能及美观需求外,“效率”便是下一步我们需要赋予平面方案的,如果空间不够高效,那住在里面的人也会变得低效率。
今天,咱们就通过一个案例的以下几个方面来聊一下:对于平面方案,决定它高效的要素是什么?
1、不同的空间模块之间应该是怎样的关系?
2、空间的动线是由什么决定的?动线真的是越短越好吗?
3、什么是辅助空间?为什么决定一个空间的效率在于它的辅助空间?
01. 平面图结构分析
www.shejidedao.com丨联系VX:dop050 回复“公众号”加群
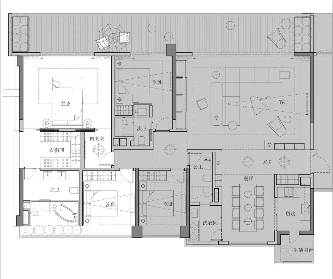
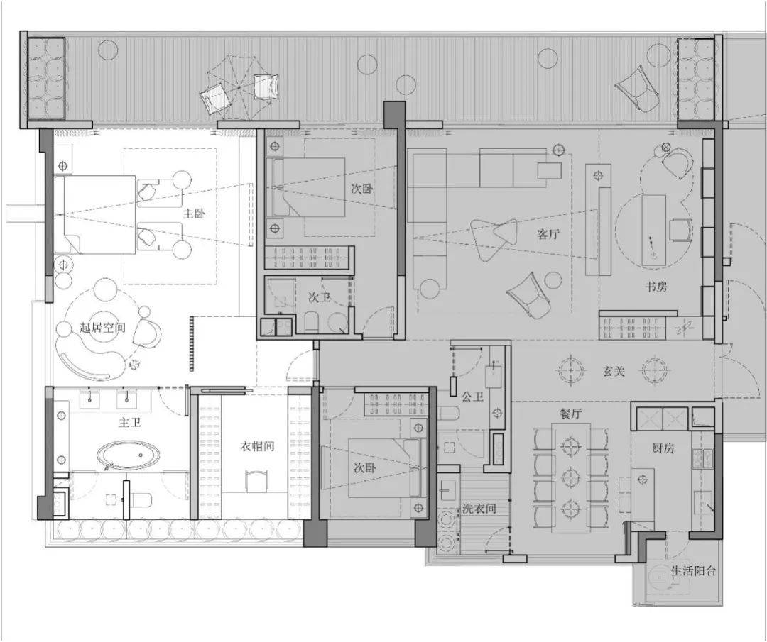
△原始结构图
从原始结构图可以看出,开发商对于原户型整体的格局做的还是比较完善的,各个空间区块所处的位置相对也比较合理,下面我们大致分析一下原户型的格局的优缺点以及改进思路:
1、原户型优点分析
a、四房户型:首先在大框架下,南向休闲阳台方向的采光是最好的,承重墙正好分割出公区和候场区,这样做的好处是动静分离互不干扰;
b、北边与客厅相对的位置比较方正,划分出餐厨空间、公卫和洗衣间,这是一个整体区块;
c、三间次卧室都有采光,其中还有一间是套卫;
d、主卧、衣帽间、主卫三者串联,空间足够开阔。
2、需优化的区域
a、公区部分

① 入户玄关过于狭小;
② 走廊部分单调,死板。
b、候场区部分

① 南面次卧卫生间占比过大导致卧室区域过小;
② 主卧空间入口区域狭长且封闭;衣帽间占比过大导致卧室区域过小。
分析完问题,下面进入正题:如何提高空间效率进行重新规划?并将开篇的三个问题穿插其中。
02. 公共部分空间布局方案
www.shejidedao.com丨联系VX:dop050 回复“公众号”加群
1、布局方案一

a、玄关变大并使公卫的墙延伸成为进门的端景墙,同时减少走廊空间,开辟出公区与候场区的过度空间使原走廊富有层次。使进门玄关相对有完整空间并充当串联客厅空间与厨房空间的媒介。
b、将整个客厅与餐厅并为一体,增强社交属性,空间完整且开阔。
c、配合社交性客厅规划出社交性半开放式厨房(设立移门灵活性强),将吧台与厨房并置,增强趣味性。
空间意向


2、布局方案二

a、将客厅更加释放且与书桌并置,大尺度家具撑满整个客厅空间,使空间更具有张力。
b、将餐厅回归原餐厨空间,封闭式厨房与餐厅自成一体,动线最短。
c、玄关去除了方案一实墙的格挡显得更加通透,被客厅与餐厅两大模块包围依然营造出入户尊贵之感。
空间意向


3、布局方案三

a、如若需要书房相对有一点独立性,一面干净的电视墙可以充当分割屏障,这时书房便是一个灵活的空间。
双动线进入的方式既加强了客厅与书房的互动性,使其成为客厅的一部分,当想独立使用书房时,更可以移动两边内藏移门,安静的使用书房。
b、餐厅依然在厨房板块旁边,但此时可以规划出一个精巧的吧台与厨房联合使用。
c、将走廊部分更加精简,所有房间入口动线在有效的空间全部被消化。
空间意向


4、布局方案四

a、原户型的玄关十分窄小,如果仍然希望保留也可以将玄关以实做虚,功能区块保留但视线仍然可以穿透。
b、玄关与客厅的关系更加直白,故意将玄关做小来体现客厅的开敞未尝不是一个有趣的对比。将书房以房间的形式固定比起方案三会更有独立性。
c、由于玄关压缩,餐厅板块更加独立与开敞,因此更具有正式与仪式感。
空间意向


5、模块关系与动线分析(以公区为例)
a、空间模块的亲密度决定了不同的空间模块组合的紧密度,而人的行为习惯与生活方式又决定了空间模块的亲密度。
例如:餐厅既可以与客厅组合又可以与厨房组合,但决定它们的在于使用者对于做饭的频率。
如果是高频率那么餐厅在厨房旁边会更加有效率,此时厨房最好可开可闭,要考虑油烟问题。反之,餐厅并置客厅可做大空间展示,此时厨房可为开放式,增强社交属性。

b、动线是指人在室内移动的点,连结起来就是动线。由于人的行动轨迹复杂,相同的空间也可以有多种进入方式,所以动线的合理性是需要设计的。
例如:由玄关进去客餐厅的动线,前三个方案与方案四差别在于,前三个方案是玄关串联客餐厅,方案四是玄关串联客厅,客厅串联餐厅。
两者其实并无好坏差别,不同的在于,前者讲究高效,一条动线同时解决两个空间。后者在于空间叙事,进入方式层层展开,迂回婉转。

c、一个空间的有主要功能,但也有次功能,主要的功能为被辅助空间,次要的为辅助空间,辅助空间越多,被辅助空间效能越高,后文会做具体分析。
03. 候场区部分布局方案
www.shejidedao.com丨联系VX:dop050 回复“公众号”加群
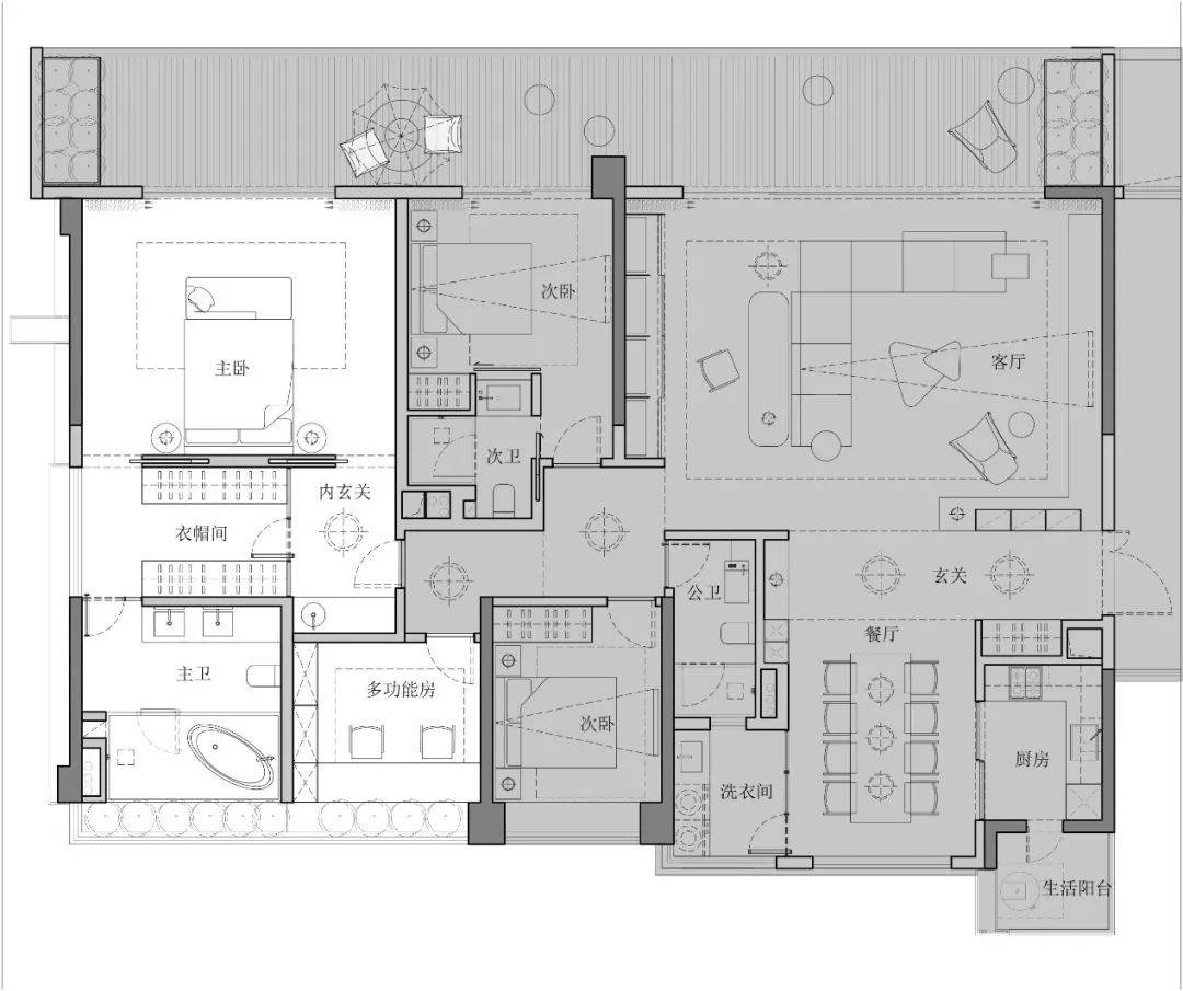
1、布局方案一

a、调整主卧内玄关与衣帽间比例,将更多空间释放于床品区,墙内隐藏两道移门使空间私密性更强。
b、南面次卧同样缩小卫生间比例,释放空间给床品区。
c、主卫将淋雨与浴缸结合,占最小的空间做最高的效能。
方案一优化进阶版

a、主卧衣帽间与床品区做成洄游动线,使进门去主卫动线大大缩短,增加效率,灵活多变。
b、增设内水吧台,完善功能。
c、使北边一间卧室变成多功能间,增强主卧与之互动性。
空间意向


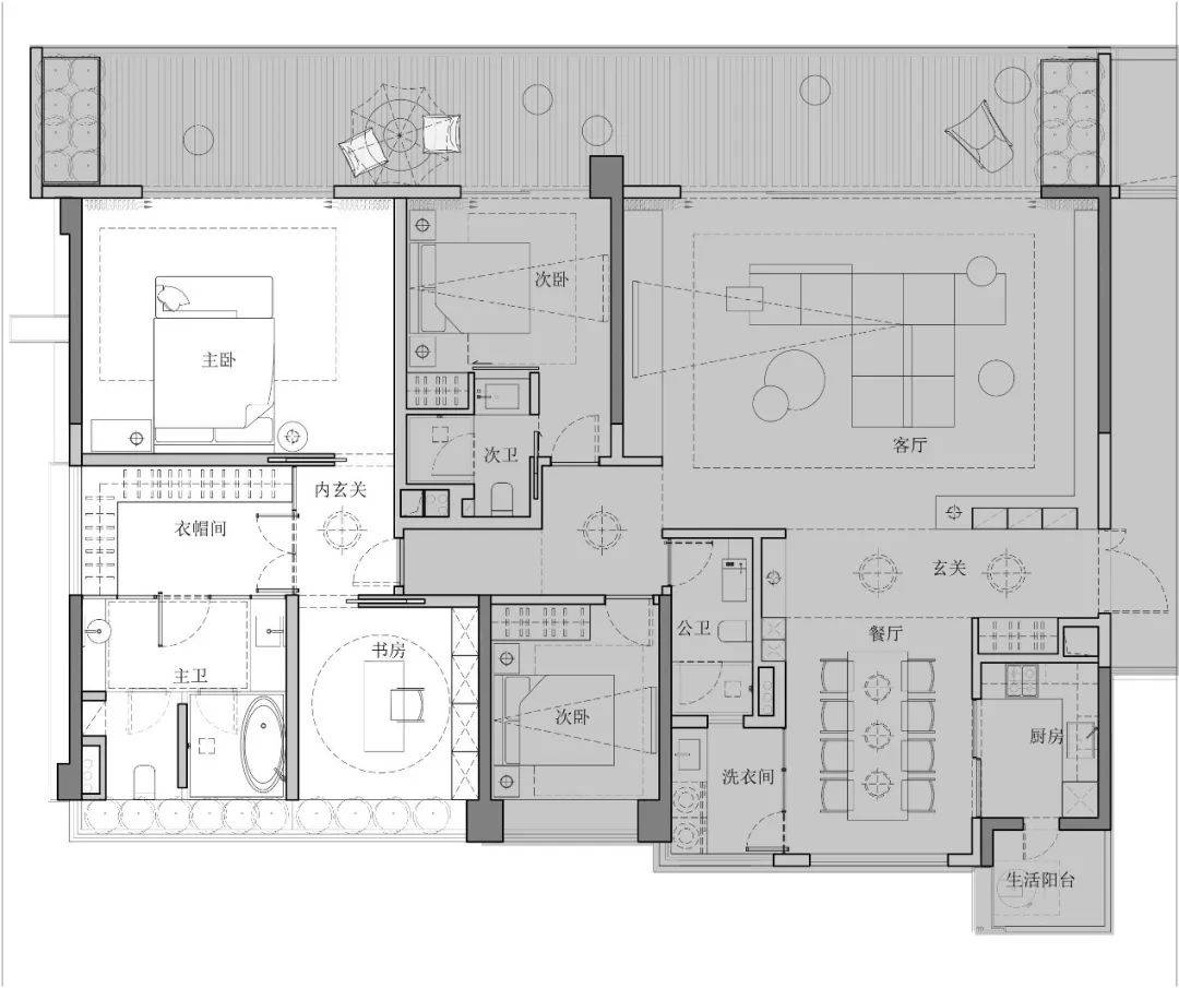
2、布局方案二

a、取消洄游动线,将内玄关作为主卧的核心枢纽,同时解决四个空间的出入问题。
b、将原北边卧室变成书房并置于主卧内,使其成为套房,丰富主卧功能。
c、主卫四件套区块全分离,功能更加明晰,同时使卫生间进一步开阔。
方案二优化进阶版

a、主卧门后移,扩大内玄关空间,使其成为一个独立空间并将北边卧室完全纳入成为起居空间。
b、床品区、衣帽间、卫生间三者一条动线串联,更加精简,效能最大化。
空间意向


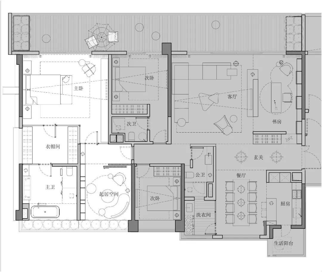
3、布局方案三

a、倘如此卧室为样板间或度假酒店布局,则展示功能将更为重要。
b、将床品区与起居空间横向并置使其整个为一个超大空间。
c、衣帽间作为单独区块展示,可开可闭。主卫则将浴缸单独展示增强戏剧感。
方案三优化进阶版

a、彻底打开床品区面向景观阳台,将书桌做结合完善功能。
b、卫生间与衣帽间结合,展示功能更加强大。
c、整个空间全部采用洄游动线,大到主要功能区块,小至台盆浴缸,所有元素可以独立出来看作艺术品单独展示。
空间意向


4、模块关系与动线分析(以候场区为例)
a、空间模块的组合一定意义上也取决于该空间的性质。包括该模块占该空间的比例,所容纳指定功能的多少。
例如:主卧室如果是私宅,那方案一和二是比较实用的,因为大量的储物空间是必须的,且有一间独立的书房或起居室会方便生活。
如果是酒店性质,那展示功能会更多一些,储物量相对减小,将起居空间和床品并置则可以将空间放大,而相对来说衣帽间则可以适当缩小。

b、空间动线同样也会取决于空间性质。
例如:有些时候设计师为了追求效果利用洄游动线规划私宅,因为洄游动线非常占用空间,所以势必会浪费很多储物空间。
而动线的长短也要看空间体验,例如方案二的进阶版将玄关动线拉长是为了配合一个有气势的起居室,所以不能一概而论。

c、就主卧而言,如果所有配置都是围绕床品展开,那么床品区则为被辅助空间,其他统称为辅助空间。所以当越多的辅助空间来辅助主要空间,主空间也会更加舒适。

方案一中主卧增加水吧台区,那它可以辅助夜晚起夜冲泡饮品,省去去餐厅的时间。
而方案一与方案二对于第三空间(书房或起居室)的利用区别在于前者没有将其纳入,后者进行纳入,所以后者主卧将更加舒适,这也是主卧效率提高到表现。
小结.
www.shejidedao.com丨联系VX:dop050 回复“公众号”加群
本文主要讲解了平面方案高效的的要素,通过一个案例讲到以下几个方面:
1、不同的空间模块组合是由不同的空间性质决定的,并且也与人的行为习惯密切相关,合理的组合才能提高空间使用效率。
2、动线有多种方式,具体动线要根据空间属性来规划,不一定动线越短就越好,要根据设计方的意图以及使用者的习惯来规划。
3、一个完整的空间是由辅助与被辅助空间构成的,辅助空间是决定整体空间是否高效的重要因素。
更多关于平面优化的方案讲解,大家可以深入学习一下我们的《室内方案特训营》,涵盖家装工装5大业态空间,用空间式思维操作平面布局,工具带练、方法实践,学练一体,搞定多业态方案设计难题。

- End -
如有帮助,还请 点赞、在看、转发 支持一下
文中部分图片源于网络,如有侵权,请联系小编~
加dop050,领“dop设计大礼包”



