石材/瓷砖干挂,如何做方管选型?
△星标 ☆dop设计,不错过每一篇干货文章
在现代建筑装饰中,瓷砖干挂技术已成为墙面施工的重要工艺。它不仅解决了传统湿贴法带来的空鼓、脱落、返碱等问题,更为大面积墙面装饰提供了安全可靠的解决方案。

今天就带你掌握瓷砖干挂的规范要点,能让你在设计方案中选择最合适的工艺,确保项目质量与安全。
01. 瓷砖干挂的本质要点?
www.shejidedao.com丨联系VX:dop024 回复“公众号”加群
瓷砖干挂是一种采用金属挂件将瓷砖直接固定于墙面或钢骨架上的机械固定工艺。

它与传统湿挂法最根本的区别在于完全不需要用水和水泥砂浆,而是通过预埋膨胀螺栓、安装钢结构骨架及不锈钢挂件形成完整的受力支撑体系。
瓷砖干挂的主要优势:
购买和维护成本低于天然石材;重量轻,减轻建筑负荷;不含放射性物质,更加环保;吸水率低,不易变形;耐酸碱性好,具有自洁特性;色泽均匀,装饰效果统一。
干挂工艺能更好地保护瓷砖性能,确保瓷砖稳固牢靠、不易变形,尤其适用于大面积墙面设计。
瓷砖干挂的规范应用范围与关键参数


《建筑装饰室内石材及瓷板干挂技术规程》↑
根据相关规范,干挂工艺适用于建筑高度不超过100米,抗震设防烈度不大于8度的建筑。对于室内墙面,瓷板高度不超过6米时可采用干挂工艺;超过6米则必须采用干挂系统。
瓷砖厚度要求:

若使用陶瓷厚板,其厚度范围通常在14-30mm之间。单块板材面积限制也需要特别注意:采用挂贴方式时,单块陶瓷厚板面积不应大于1㎡;采用干粘或湿贴时,单块板面积不宜超过0.3㎡,高度不应大于5m。
02. 瓷砖干挂工艺做法
www.shejidedao.com丨联系VX:dop024 回复“公众号”加群
瓷砖干挂主要有以下几种方式,各有特点及适用场景。
背栓式干挂:

砌块墙瓷砖背栓干挂竖剖节点↑
通过在瓷砖背面精确钻孔并植入背栓,通过连接件将瓷砖固定于骨架上的方法。

砌块墙瓷砖背栓干挂横剖节点↑
背栓孔径不宜小于6mm,孔深不应超过板厚的2/3,且不应小于7mm。


背栓距离板端不应小于50mm。每个板件的挂点不宜少于四个,以保证受力均匀。这种方式适用于大面积、大规格瓷砖的安装,安全性高。
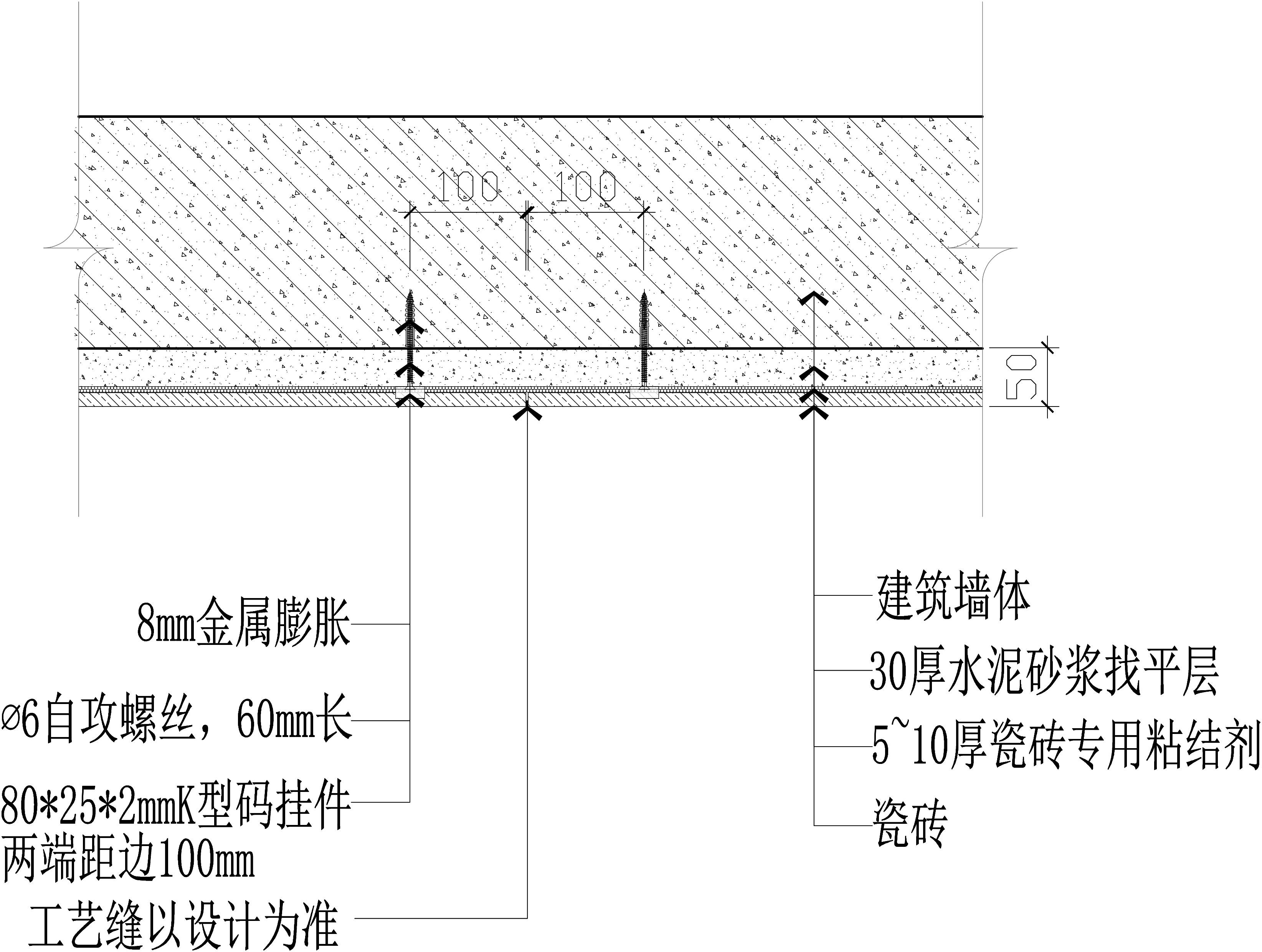
K型码挂件系统:

墙面瓷砖湿挂竖剖节点↑

墙面瓷砖湿挂横剖节点↑

使用特殊的K型挂码固定瓷砖,安装相对简便,适用于规则排列的墙面设计。这种系统在室内墙面应用较为广泛。
角码与双钩组合系统:

墙面瓷砖干挂竖剖标准节点↑

墙面瓷砖干挂横剖标准节点↑
通过角码和双钩的配合,实现瓷砖的灵活安装,特别适用于需要多角度调节的复杂墙面。

对于室内设计师,在选择干挂方式时需综合考虑瓷砖规格、基层条件、设计效果和造价因素,选择最合适的系统。
注意:
传统的短槽干挂、蝶型、T型、胶粘等工艺将被全面淘汰,图审阶段将无法通过。



大空间、高挑空区域、重质瓷砖(如岩板)优先推荐背栓式,因其安全性最高。
延伸阅读:
最后:
设计师在概念阶段就应考虑后续的施工工艺,合理选择瓷砖规格、表面处理和接缝设计。与施工团队密切沟通,确保设计理念能够通过适当的技术手段实现。掌握瓷砖干挂技术的规范与要点,能让你的设计更具可行性和持久性。
好了,本期的dop干货就到这儿,如有帮助,评论区扣“日拱一卒”,支持一下dop~


