设计课程
训练营
设计文章
设计工具
图纸代画
社区
更多
设计文章
其他图文
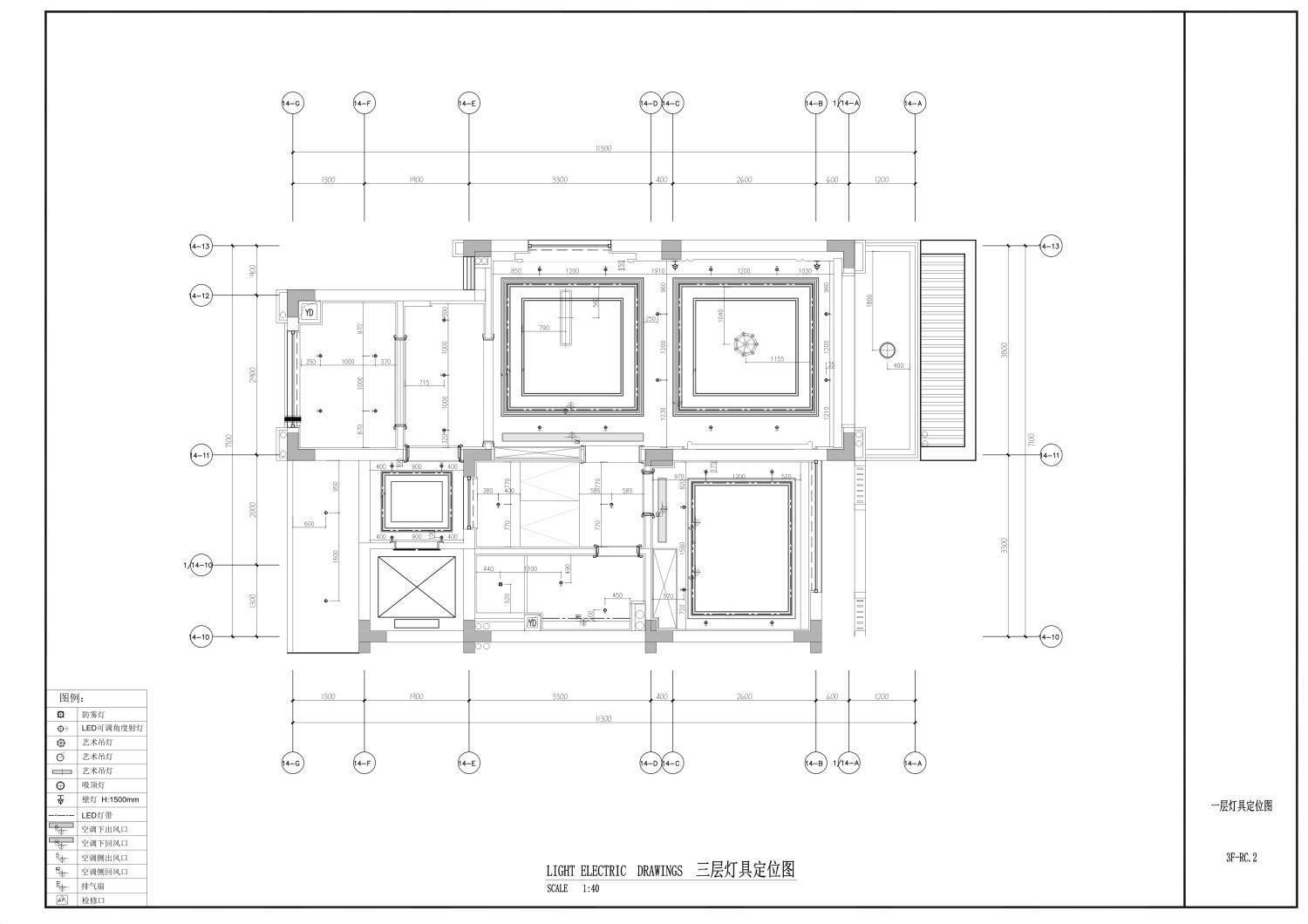
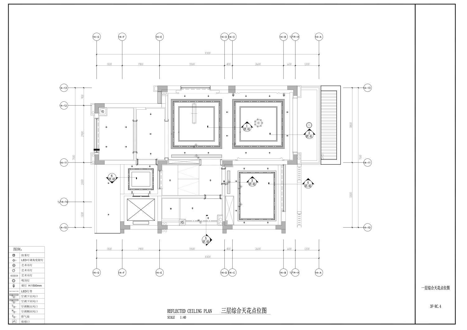
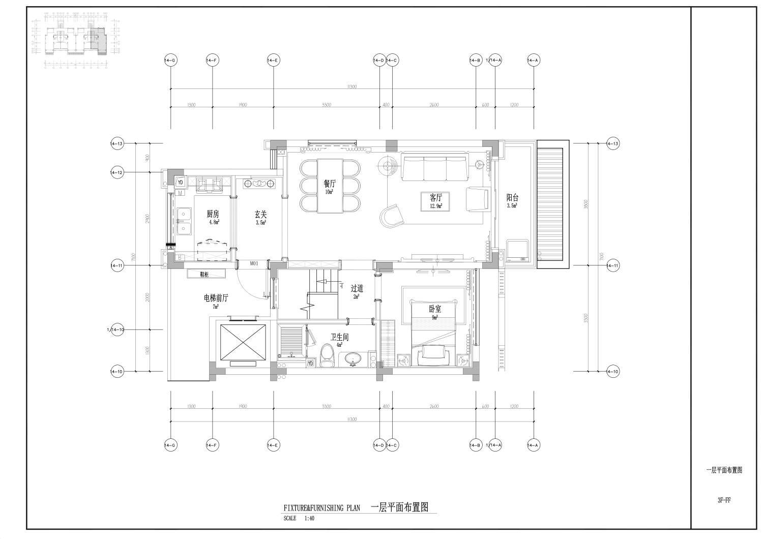
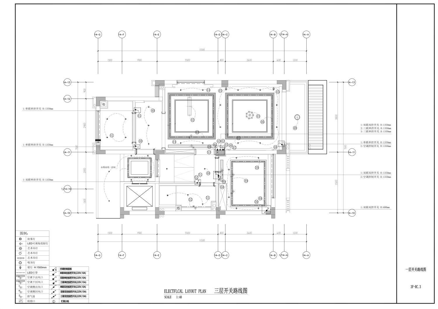
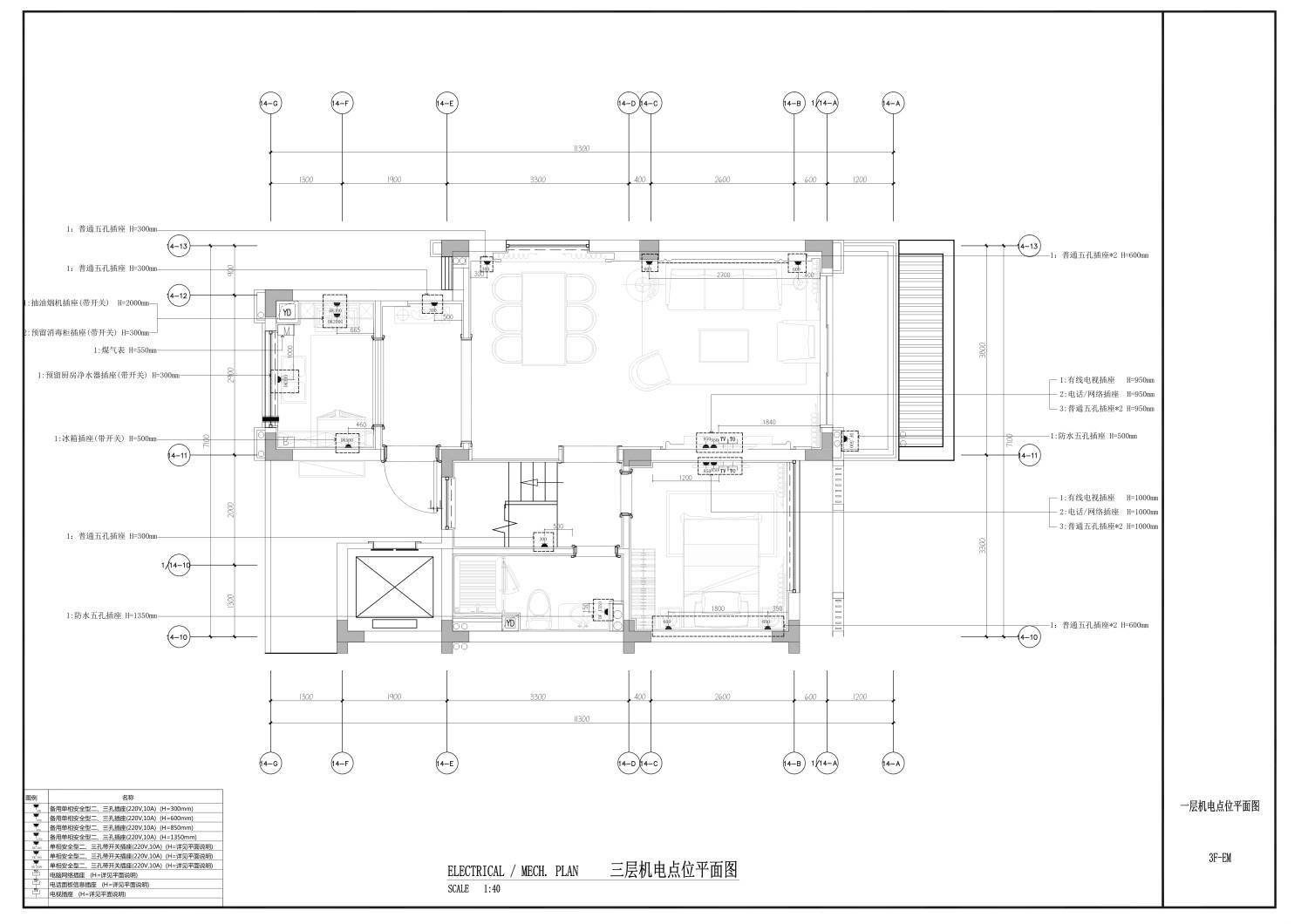
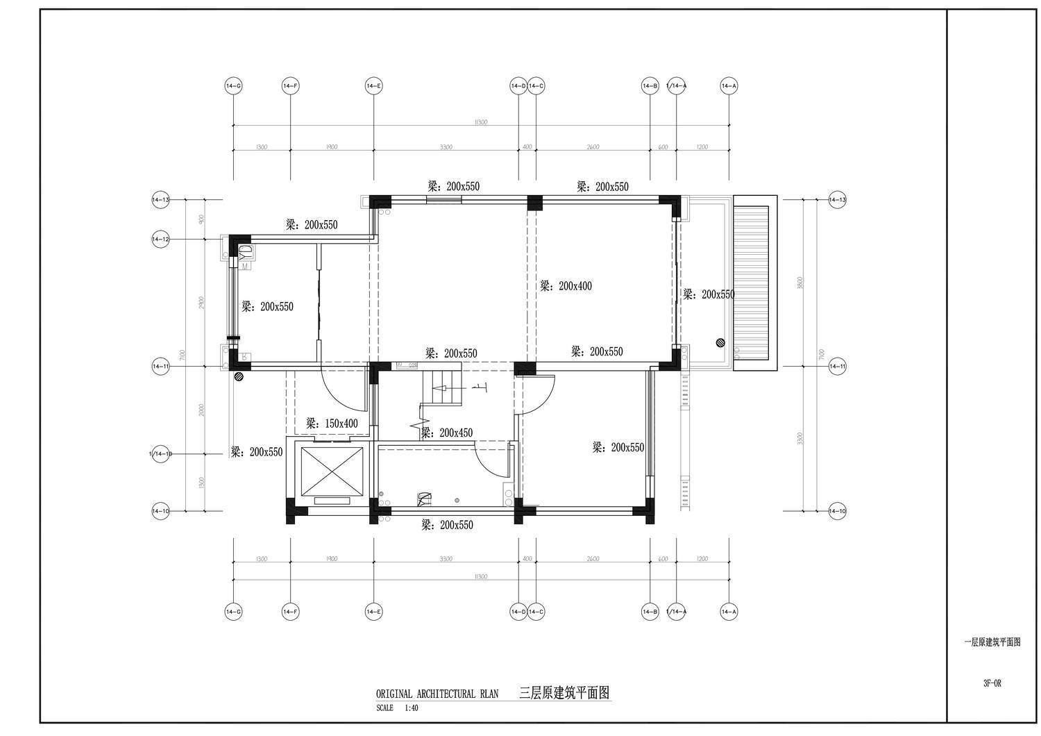
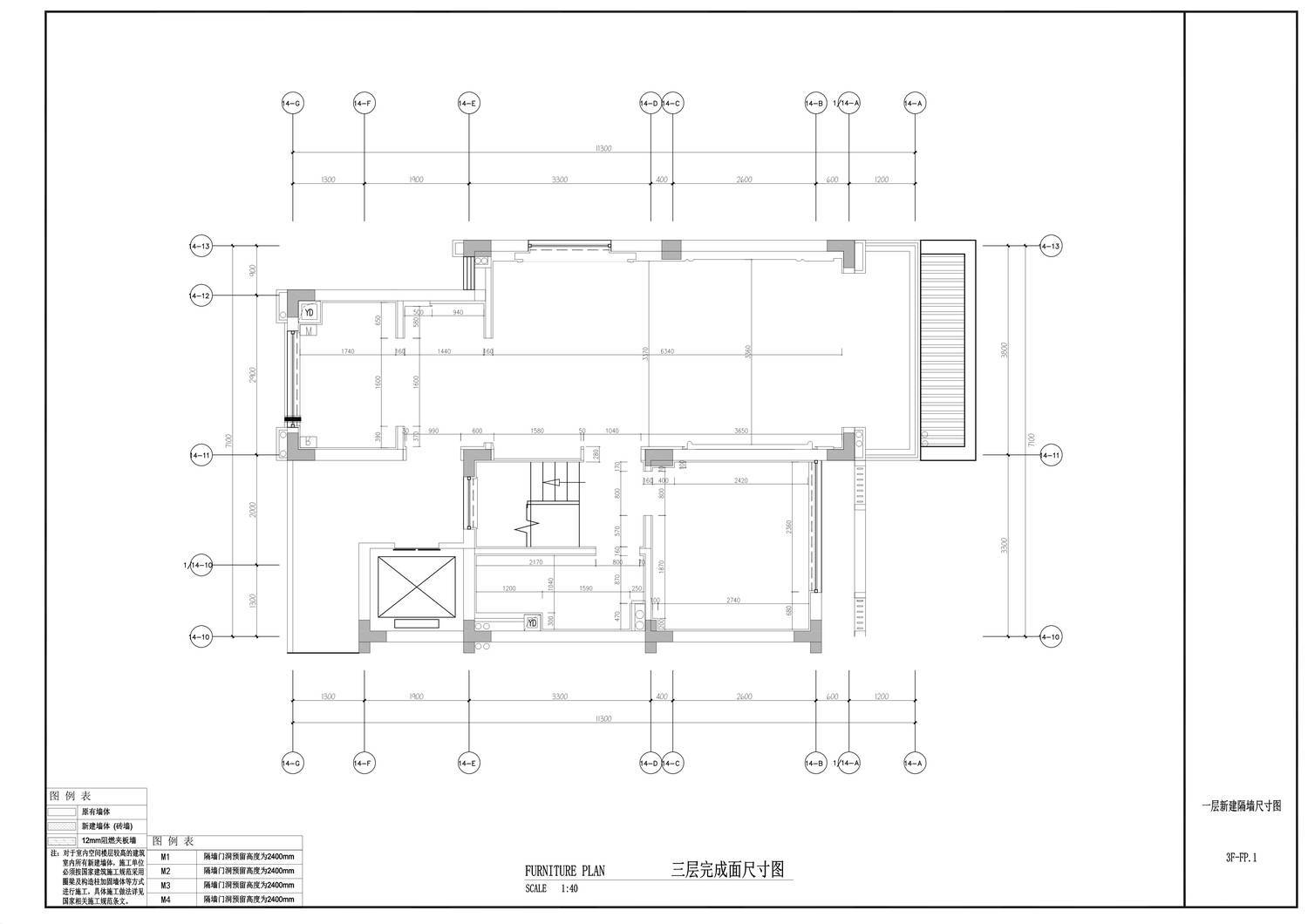
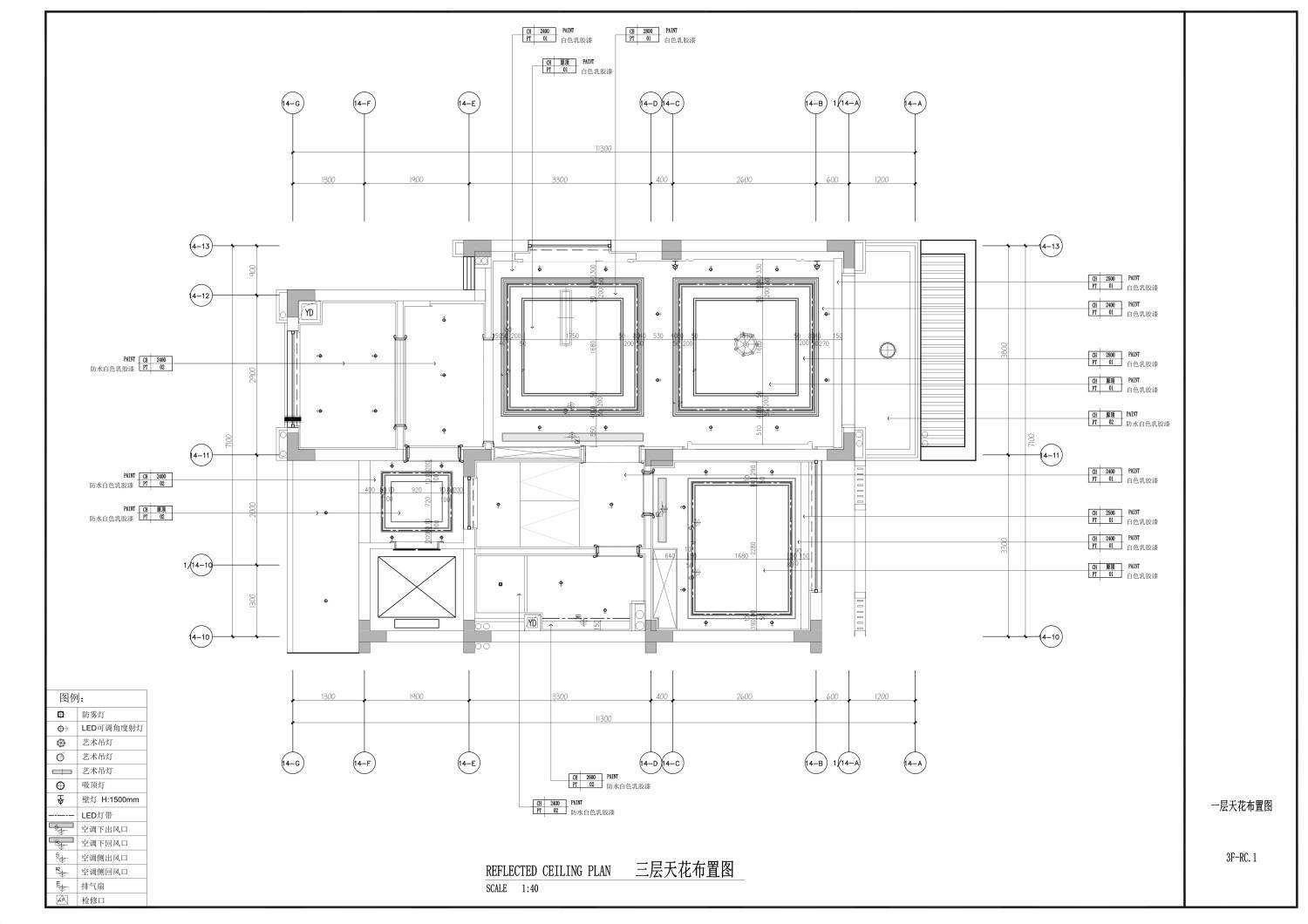
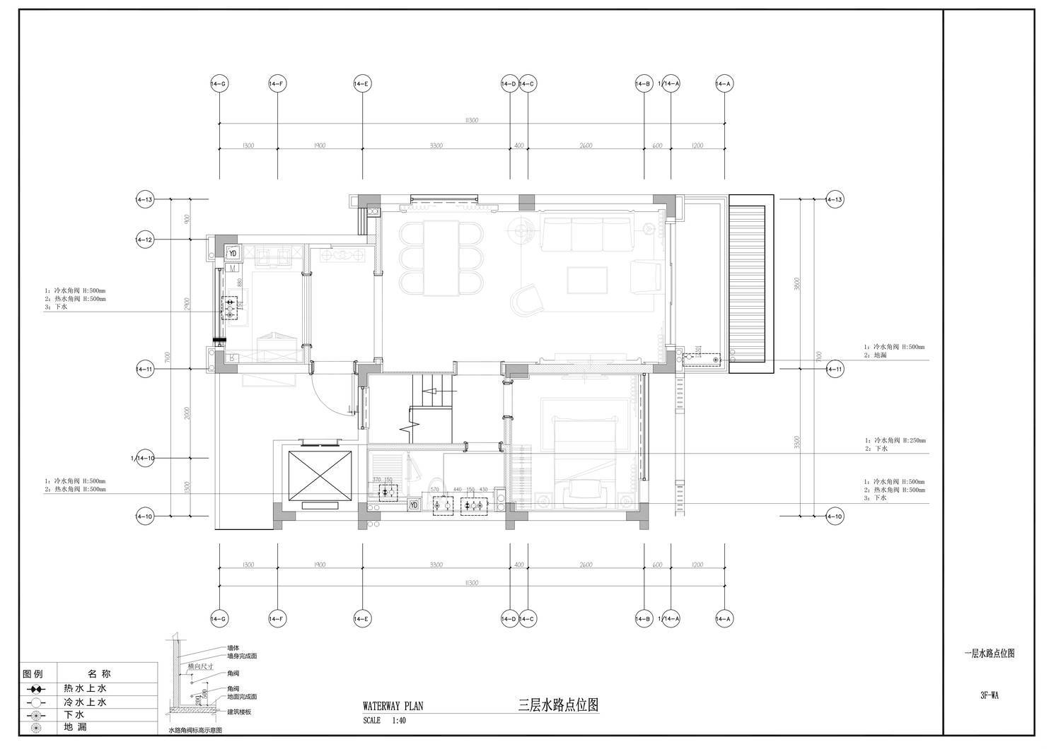
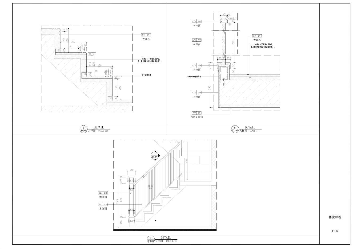
施工图学员作品丨客厅效果图2
发布于2022-08-24
浏览
8
点赞
0
评论
0
收藏
0
评论 (0)
0/9
发布
暂无评论,快来留下一条吧~
课程小助手
Ta 很懒,还没有写简介
957
人气
0
帖子
0
资料
27
图文